Eladó Lakás
Hirdetéskód: 9249677
Trendi Ingatlan
Felújításhoz személyi kölcsönt keres? Kalkuláljon itt! →
Ez a hirdetés megfelelhet a FIX 3%-os programnak.
Tudj meg többet a részletekről itt.
79.00 m2
ALAPTERÜLET4
SZOBASZÁMnincs megadva
ÉPÍTÉSnincs megadva
FŰTÉS
A+++
A++
A+
A
B
C
D
E
F
G
H
I
Az ingatlan leírása
2026-ban átadás! Már csak ez a lakás szabad!
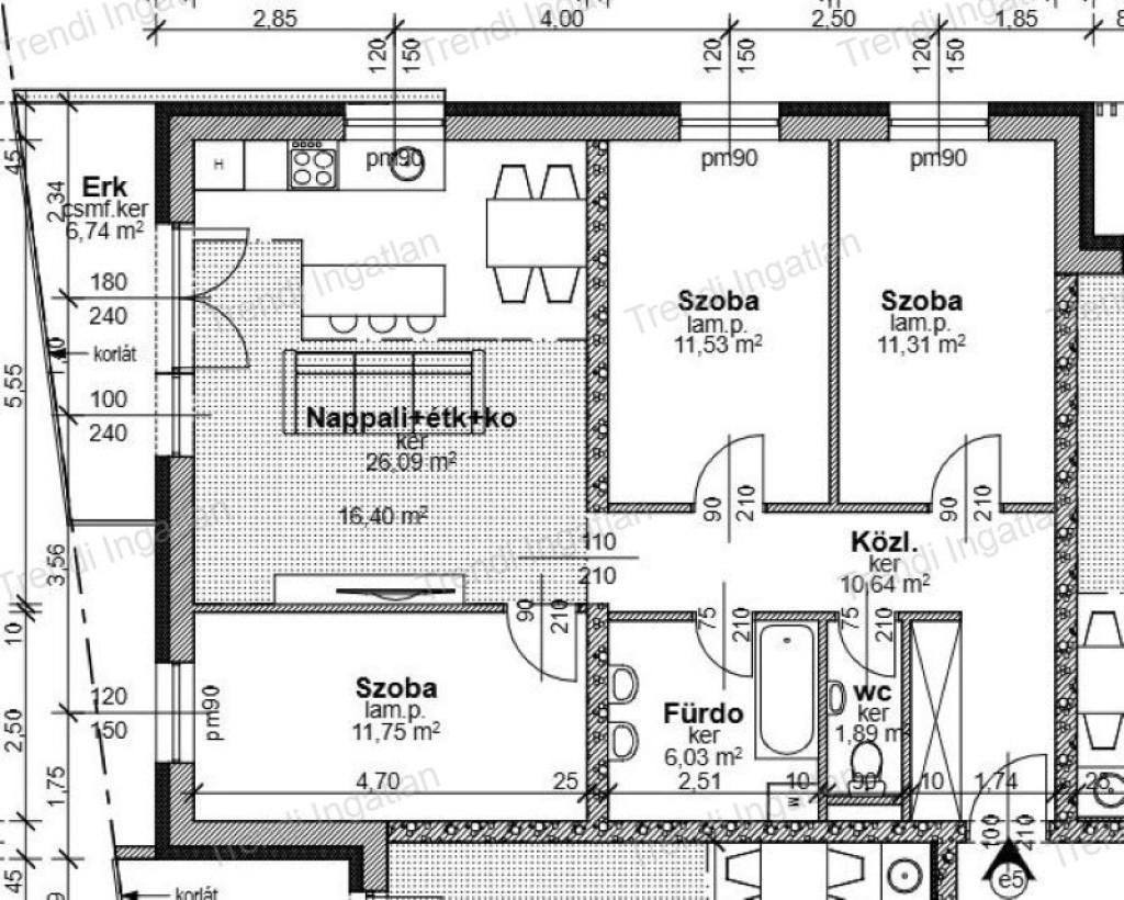
Győr-Belvárosától pár perces autóútra, Szitásdomb új kialakítású részén új építésű 29 lakásos társasházban nappali + 3 szobás lakás eladó.
Az 1. emeleten található 79,24 nm-es ingatlanban amerikai konyhás nappali, 3 szoba, fürdőszoba, külön WC, közlekedő, előtér kerül kialakításra. A nappaliból 6,74 nm-es erkély nyílik.
Az ingatlan fűtéskész ára: 67.990.000 Ft. Kulcsrakész befejezés kérhető.
Gépkocsibeálló ára: 1.700.000 Ft
Lehetőség van tároló vásárlására is, ára: 1.500.000 Ft-tól.
A társasház Szitásdomb új lakóparkjában épül. A földszinti lakások terasszal, az emeleti lakások erkéllyel/terasszal rendelkeznek. A társasház zárt udvarán felszíni parkolók kerülnek kialakításra. A társasház 30 cm-es falazóelemből, 20 cm-es homlokzati hőszigeteléssel épül. A műanyag, hőszigetelt nyílászárók 6 légkamrásak, 3 rétegű üvegezéssel rendelkeznek. Az ár tartalmazza a redőny előkészítését lefutókkal, az elektromos kiépítés felár ellenében kérhető. A társasház fűtését hőszivattyú biztosítja. Lakásonként egyedi hőmennyiségmérő, a fürdőszobában törölközőszárító radiátor kerül. Klímakiépítés igény esetén felár ellenében kérhető.
A társasház átadásának tervezett időpontja: 2026 nyár
Bővebb információkért keressen bizalommal!
Hétköznap és hétvégén is várom hívását!
A hirdetésben feltüntetett képek illusztrációk.
Győr-Belvárosától pár perces autóútra, Szitásdomb új kialakítású részén új építésű 29 lakásos társasházban nappali + 3 szobás lakás eladó.
Az 1. emeleten található 79,24 nm-es ingatlanban amerikai konyhás nappali, 3 szoba, fürdőszoba, külön WC, közlekedő, előtér kerül kialakításra. A nappaliból 6,74 nm-es erkély nyílik.
Az ingatlan fűtéskész ára: 67.990.000 Ft. Kulcsrakész befejezés kérhető.
Gépkocsibeálló ára: 1.700.000 Ft
Lehetőség van tároló vásárlására is, ára: 1.500.000 Ft-tól.
A társasház Szitásdomb új lakóparkjában épül. A földszinti lakások terasszal, az emeleti lakások erkéllyel/terasszal rendelkeznek. A társasház zárt udvarán felszíni parkolók kerülnek kialakításra. A társasház 30 cm-es falazóelemből, 20 cm-es homlokzati hőszigeteléssel épül. A műanyag, hőszigetelt nyílászárók 6 légkamrásak, 3 rétegű üvegezéssel rendelkeznek. Az ár tartalmazza a redőny előkészítését lefutókkal, az elektromos kiépítés felár ellenében kérhető. A társasház fűtését hőszivattyú biztosítja. Lakásonként egyedi hőmennyiségmérő, a fürdőszobában törölközőszárító radiátor kerül. Klímakiépítés igény esetén felár ellenében kérhető.
A társasház átadásának tervezett időpontja: 2026 nyár
Bővebb információkért keressen bizalommal!
Hétköznap és hétvégén is várom hívását!
A hirdetésben feltüntetett képek illusztrációk.