Eladó Lakás
Hirdetéskód: 9311266

Eger Kertész utca 25 - OTP Ingatlanpont Iroda

Felújításhoz személyi kölcsönt keres? Kalkuláljon itt! →
FIX 3% Program

Ez a hirdetés megfelelhet a FIX 3%-os programnak.
Tudj meg többet a részletekről itt.

87.00 m2
ALAPTERÜLET
3
SZOBASZÁM
nincs megadva
ÉPÍTÉS
Gáz (cirkó)
FŰTÉS
  • CSOK igénybe vehető nem
  • Tetőtér beépíthető nem
  • Építés éve 1993
  • Fűtés Gáz (cirkó)
  • Klíma nem
  • Szigetelt nem
Energetikai besorolás: Nincs meghatározva
A+++
A++
A+
A
B
C
D
E
F
G
H
I

Az MBH Bank személyi kölcsön ajánlata

Fizetett hirdetés
1 millió Ft
6 évre
20 585 Ft/hó
THM: 14.5%
Részletek →
2 millió Ft
6 évre
41 169 Ft/hó
THM: 14.5%
Részletek →
3 millió Ft
6 évre
61 754 Ft/hó
THM: 14.5%
Részletek →

A tájékoztatás nem teljes körű és nem minősül ajánlattételnek.

Az ingatlan leírása

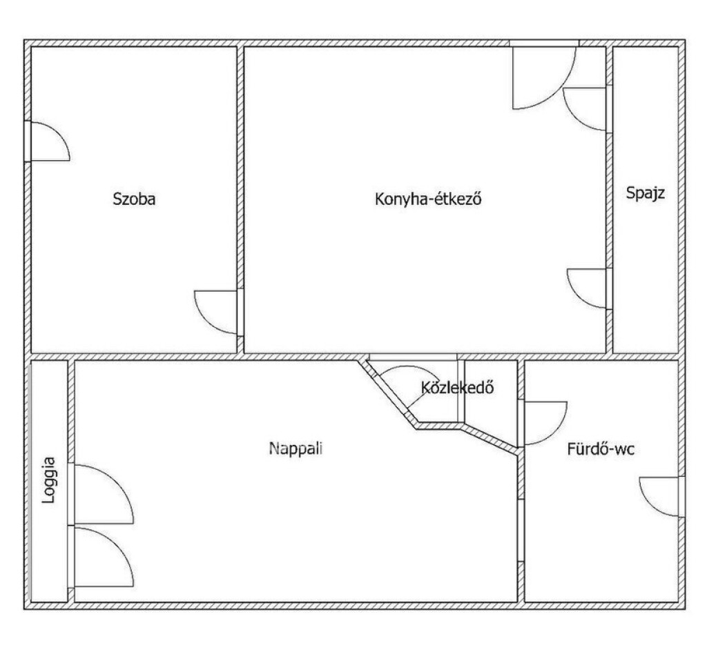
Gyöngyösön, belvárosi lakás új tulajdonosát várja!
Az épület Gyöngyös belvárosában található, egy tetőtéri, belső kétszintes, 87 m2-es lakás, amely frissen festett, megóvott állapotú, és akár azonnal költözhető.
Ideális választás lehet családoknak, pároknak vagy befektetésnek is, hiszen a belvárosi elhelyezkedés miatt minden fontos szolgáltatás könnyen elérhető.
-87 m2 alapterület
- tetőtéri, belső kétszintes kialakítás
-frissen festett, megóvott állapot
-azonnal költözhető
-gázcirkó fűtés
- villanybojler a melegvízhez
- belvárosi elhelyezkedés
Ha egy tágas, belvárosi lakást keres, remek elrendezéssel, érdemes megnézni!
Amennyiben érdekes ezen ajánlatom, keressen bizalommal!

Térkép

Ingatlan adásvétel ügyvédi díja
213 750 Ft
a hirdetésben szereplő ár alapján
  • A vételár 0,45%-a
  • Szerződéscsomag teljeskörű képviselettel
  • Ingyenes tulajdoni lap ellenőrzés
  • Az ÁFA-t már tartalmazza
Érdekel az ajánlat →
A tájékoztatás nem teljes körű és nem minősül ajánlattételnek. Minimum díj: 150 000 Ft, maximum díj: 600 000 Ft. A díj kizárólag lakóingatlan adásvételére vonatkozik.

A hirdető elérhetősége

Eger Kertész utca 25 - OTP Ingatlanpont Iroda

Tari-Tarnai Blanka
+36 30 971