Eladó Lakás
Hirdetéskód: 9294746
5100 Jászberény Szentháromság tér 2. - OTP Ingatlanpont Iroda
Felújításhoz személyi kölcsönt keres? Kalkuláljon itt! →278.00 m2
ALAPTERÜLET8
SZOBASZÁMnincs megadva
ÉPÍTÉSnincs megadva
FŰTÉS- CSOK igénybe vehető nem
- Tetőtér beépíthető nem
- Építés éve 2016
- Klíma nem
- Szigetelt nem
A+++
A++
A+
A
B
C
D
E
F
G
H
I
Az ingatlan leírása
Kiváló befektetési lehetőség Gyömrő frekventált részén!
A Hat lakásos Társasház Gyömrő központi részén helyezkedik el egy 440 nm-es telken! 2016-ban teljes átépítés és bővítés keretében 278 m2-es, több lakásból álló társasházzá alakították. Korszerű, 30-as mátratherm téglából épült, műanyag thermo ablakokkal, szúnyoghálós redőnyökkel, illetve oldalfala 10 cm Drayvit szigetelést, a födém 35 cm szigetelést kapott. A fenntartható energiafelhasználásról 5,4kW-os napelemrendszer gondoskodik, a fűtésről és a melegvízellátásról egy 2021-ben beépített Bosch 27kW kombi gázkazán. Energetikai besorolása: BB.
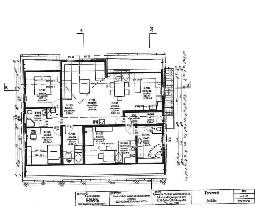
A tetőtér két lakásból áll: egy 25 m2-es egyszobás, kádas fürdőszobás garzonból, valamint egy nagyobb, három hálószobás, kádas fürdőszobás, hatalmas amerikai konyhás étkezős nappalival rendelkező lakásból. Jelenleg a két lakás egy háztartásban található. Minden hálószoba és nappali inverteres hűtő-fűtő klímával felszerelt. A tetőtérbe külön külső lépcső vezet, mely egy 12 m2-es teraszra érkezik.
A földszinten egy 20 m2-es kazánház (wc-vel, zuhannyal, kis konyhával), illetve 4 db kisebb, 1-2-3 hálószobás lakrész található. Mindegyik külön bejáratos, zuhanyzós fürdőszobával, wc-vel, konyhával, amerikai konyhás nappalival, valamint inverteres hűtő-fűtő klímával rendelkezik. A fürdők és konyhák teljes gépesítést kaptak. Valamennyi lakrész saját, térkövezett udvart kapott. Az ingatlan komplex biztonsági rendszerrel (riasztó, kamerarendszer, kivonuló szolgálat) felszerelt.
Az ingatlan társasházi alapító okirattal rendelkezik. Egyben eladó, minden lakás önállóan kiadható, kiváló befektetési lehetőség!
Az M4-es autópálya 4 perc, az M0-ás 8 percre, M31 es főút 2 percre, Bp-től 8 km, a Liszt Ferenc reptértől 12percre van. A környéket kiváló infrastruktúra jellemzi: iskolák, óvodák, orvosi rendelők, bevásárlási lehetőségek , horgasztó , strandfürdő, éttermek, szórakozóhelyek.
A vásárlás finanszírozásában az OTP kedvező hitelkonstrukcióival, CSOK és a támogatott hitel lehetőségével, vagy akár a babaváró hitel ilyen célra történő felhasználásával tud segíteni. Használja ki a lehetőséget, hogy kedvezőbb kamatozású OTP Bank hitelhez juthat, ha az OTP Ingatlanpont kínálatából vásárol. Ingatlant kereső ügyfeleink részére szolgáltatásaink és az ingatlanvásárlással, ingatlan felújítással kapcsolatos hitel ügyintézése ingyenes. Az adás-vétel lebonyolításához korrekt ügyvédi közreműködést tudunk ajánlani. Érdeklődés esetén várom hívását a hét bármely napján, akár hétvégén is!
189000000 Ft
A Hat lakásos Társasház Gyömrő központi részén helyezkedik el egy 440 nm-es telken! 2016-ban teljes átépítés és bővítés keretében 278 m2-es, több lakásból álló társasházzá alakították. Korszerű, 30-as mátratherm téglából épült, műanyag thermo ablakokkal, szúnyoghálós redőnyökkel, illetve oldalfala 10 cm Drayvit szigetelést, a födém 35 cm szigetelést kapott. A fenntartható energiafelhasználásról 5,4kW-os napelemrendszer gondoskodik, a fűtésről és a melegvízellátásról egy 2021-ben beépített Bosch 27kW kombi gázkazán. Energetikai besorolása: BB.
A tetőtér két lakásból áll: egy 25 m2-es egyszobás, kádas fürdőszobás garzonból, valamint egy nagyobb, három hálószobás, kádas fürdőszobás, hatalmas amerikai konyhás étkezős nappalival rendelkező lakásból. Jelenleg a két lakás egy háztartásban található. Minden hálószoba és nappali inverteres hűtő-fűtő klímával felszerelt. A tetőtérbe külön külső lépcső vezet, mely egy 12 m2-es teraszra érkezik.
A földszinten egy 20 m2-es kazánház (wc-vel, zuhannyal, kis konyhával), illetve 4 db kisebb, 1-2-3 hálószobás lakrész található. Mindegyik külön bejáratos, zuhanyzós fürdőszobával, wc-vel, konyhával, amerikai konyhás nappalival, valamint inverteres hűtő-fűtő klímával rendelkezik. A fürdők és konyhák teljes gépesítést kaptak. Valamennyi lakrész saját, térkövezett udvart kapott. Az ingatlan komplex biztonsági rendszerrel (riasztó, kamerarendszer, kivonuló szolgálat) felszerelt.
Az ingatlan társasházi alapító okirattal rendelkezik. Egyben eladó, minden lakás önállóan kiadható, kiváló befektetési lehetőség!
Az M4-es autópálya 4 perc, az M0-ás 8 percre, M31 es főút 2 percre, Bp-től 8 km, a Liszt Ferenc reptértől 12percre van. A környéket kiváló infrastruktúra jellemzi: iskolák, óvodák, orvosi rendelők, bevásárlási lehetőségek , horgasztó , strandfürdő, éttermek, szórakozóhelyek.
A vásárlás finanszírozásában az OTP kedvező hitelkonstrukcióival, CSOK és a támogatott hitel lehetőségével, vagy akár a babaváró hitel ilyen célra történő felhasználásával tud segíteni. Használja ki a lehetőséget, hogy kedvezőbb kamatozású OTP Bank hitelhez juthat, ha az OTP Ingatlanpont kínálatából vásárol. Ingatlant kereső ügyfeleink részére szolgáltatásaink és az ingatlanvásárlással, ingatlan felújítással kapcsolatos hitel ügyintézése ingyenes. Az adás-vétel lebonyolításához korrekt ügyvédi közreműködést tudunk ajánlani. Érdeklődés esetén várom hívását a hét bármely napján, akár hétvégén is!
189000000 Ft