Eladó Lakás
Hirdetéskód: 9302793
Fővállalkozó Balla és Balla Kft
Felújításhoz személyi kölcsönt keres? Kalkuláljon itt! →129.00 m2
ALAPTERÜLET4
SZOBASZÁMnincs megadva
ÉPÍTÉSHázközponti
FŰTÉS- CSOK igénybe vehető nem
- Tetőtér beépíthető nem
- Építés éve 2026
- Fűtés Házközponti
- Klíma nem
- Szigetelt nem
A+++
A++
A+
A
B
C
D
E
F
G
H
I
Az ingatlan leírása
ENERGIATAKARÉKOS 4 SZOBÁS NAGY TERASZOS ÚJ ÉPÍTÉSŰ LUXUSLAKÁS AGÁRDON SAJÁT KERTTEL ÉS KOCSIBEÁLLÓVAL FREKVENTÁLT HELYEN, INTIM KÖRNYEZETBEN.
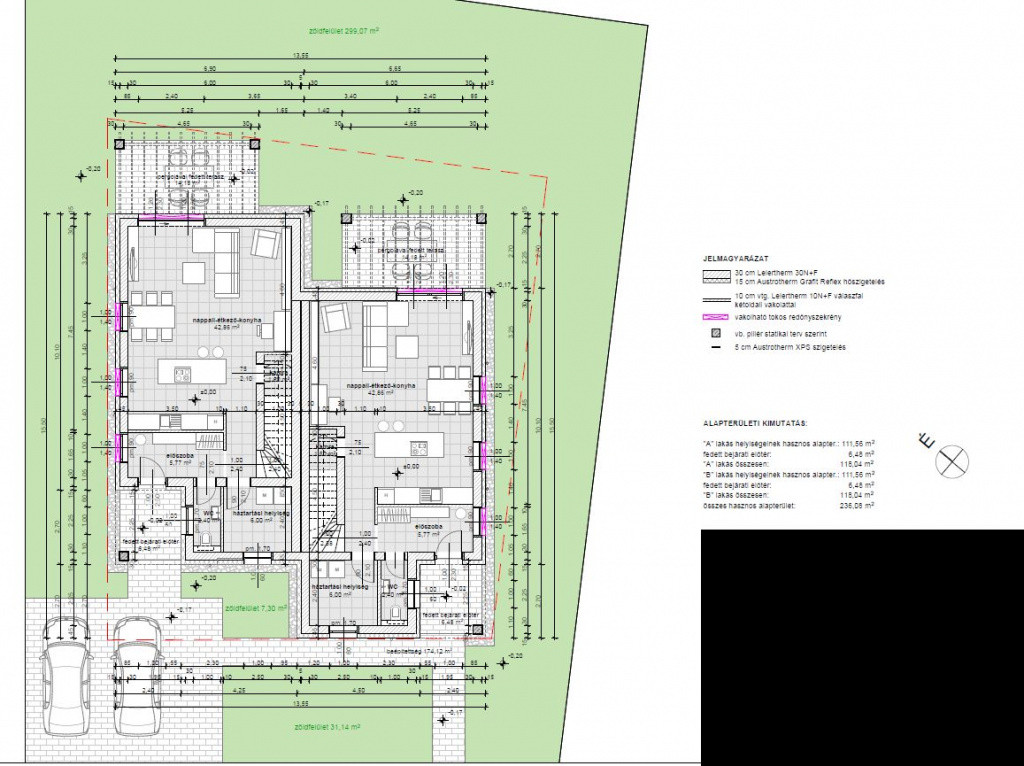
Eladásra kínálunk a Velencei-tónál új építésű bruttó 146 m2 alapterületű lakásokat (a teraszok 50%-ával számítva 129 m2) hőszivattyús modern fűtési hűtési rendszerrel két lakásos zárt társasházban 306 m2 saját telekrésszel és saját gépkocsibeállóval Agárd szívében a Termálfürdő közvetlen közelében a gárdonyi irodalmi sétányon.
A lakásokat magas műszaki színvonal, innovatív megoldások jellemzik.
A lakások okos termosztáttal vezérelhető egyedi padlófűtéssel, különálló melegvíz-ellátással és hűtő-fűtő klíma berendezéssel rendelkeznek.
Háromrétegű alumínium-műanyag homlokzati nyílászárók garantálják a kiváló hő- és hangszigetelést, prémium biztonsági bejárati ajtó, a beltérben pedig modulos szerkezetű ajtók rozsdamentes acél kilincsekkel kerültek beszerelésre.
• Parkosított kertkapcsolat
• Kiváló közlekedés (orvosi rendelő 50 méter, LIDL 500 méter, patika 550 méter, vasút 650 méter, tópart 900 méter stb.)
• Tágas terek, világos, hangulatos otthon, tökéletes beosztás
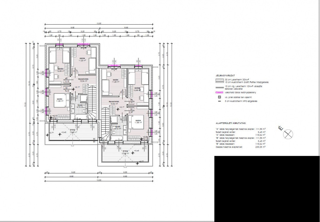
• Ideális beosztás: 3 szoba amerikai konyhás nappalival + fürdőszoba + külön wc.
• Energiatakarékos: padlófűtés - hőszivattyú + 15 cm modern grafit reflex szigetelés + műanyag hangszigetelt nyílászárók.
• Stabil szerkezet: 30-as Leierthem téglafalak + 10-15 cm válaszfalak – vasbetongerendás födém
• Modern megjelenés: Fehér falak és burkolatok - mediterrán cserép, színezett bádogozással (választási lehetőség hideg és meleg burkolatoknál)
Átadási határidő 2026. november 30.
Szeressen bele és vegye meg, amíg kapható!
Eladásra kínálunk a Velencei-tónál új építésű bruttó 146 m2 alapterületű lakásokat (a teraszok 50%-ával számítva 129 m2) hőszivattyús modern fűtési hűtési rendszerrel két lakásos zárt társasházban 306 m2 saját telekrésszel és saját gépkocsibeállóval Agárd szívében a Termálfürdő közvetlen közelében a gárdonyi irodalmi sétányon.
A lakásokat magas műszaki színvonal, innovatív megoldások jellemzik.
A lakások okos termosztáttal vezérelhető egyedi padlófűtéssel, különálló melegvíz-ellátással és hűtő-fűtő klíma berendezéssel rendelkeznek.
Háromrétegű alumínium-műanyag homlokzati nyílászárók garantálják a kiváló hő- és hangszigetelést, prémium biztonsági bejárati ajtó, a beltérben pedig modulos szerkezetű ajtók rozsdamentes acél kilincsekkel kerültek beszerelésre.
• Parkosított kertkapcsolat
• Kiváló közlekedés (orvosi rendelő 50 méter, LIDL 500 méter, patika 550 méter, vasút 650 méter, tópart 900 méter stb.)
• Tágas terek, világos, hangulatos otthon, tökéletes beosztás
• Ideális beosztás: 3 szoba amerikai konyhás nappalival + fürdőszoba + külön wc.
• Energiatakarékos: padlófűtés - hőszivattyú + 15 cm modern grafit reflex szigetelés + műanyag hangszigetelt nyílászárók.
• Stabil szerkezet: 30-as Leierthem téglafalak + 10-15 cm válaszfalak – vasbetongerendás födém
• Modern megjelenés: Fehér falak és burkolatok - mediterrán cserép, színezett bádogozással (választási lehetőség hideg és meleg burkolatoknál)
Átadási határidő 2026. november 30.
Szeressen bele és vegye meg, amíg kapható!