Eladó Lakás
Hirdetéskód: 9198067
Kaposvár Fő utca 15 - OTP Ingatlanpont Iroda
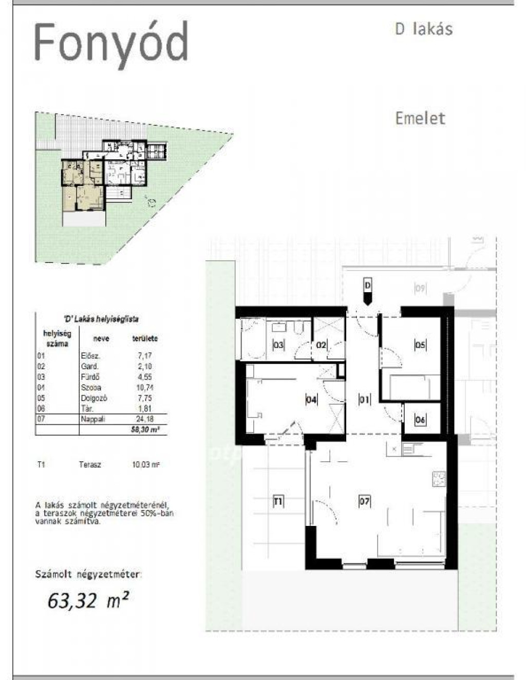
63 m2
ALAPTERÜLET1
SZOBASZÁMnincs megadva
ÉPÍTÉSnincs megadva
FŰTÉS- CSOK igénybe vehető nem
- Tetőtér beépíthető nem
- Építés éve 2025
- Klíma nem
- Szigetelt nem
A+++
A++
A+
A
B
C
D
E
F
G
H
I
Az ingatlan leírása
Somogy vármegye Fonyód településén, nyugodt környéken, a Panoráma lakóparkban eladó egy új építésű ingatlan. A lakópark jól megközelíthető elkerített területen található. Jelenleg az épület szerkezetkész, tetőszerkezettel, azaz kb. 60 %-os készültségi fokon áll. A végső állapot kialakításába bizonyos mértékig és költségkeretig a vevőnek van beleszólása.
Fonyód központ, piac, kikötő 6-7 perc autóval.
Ha valaki gyorsan megrendeli, a karácsonyt már ott töltheti.
Megtekintés kapcsán vagy érdeklődéssel forduljanak hozzánk bizalommal!
Fonyód központ, piac, kikötő 6-7 perc autóval.
Ha valaki gyorsan megrendeli, a karácsonyt már ott töltheti.
Megtekintés kapcsán vagy érdeklődéssel forduljanak hozzánk bizalommal!