Eladó Lakás
Hirdetéskód: 9229890
Nagykanizsa Zrínyi Miklós utca 21 - OTP Ingatlanpont Iroda
36 m2
ALAPTERÜLET1
SZOBASZÁMnincs megadva
ÉPÍTÉSnincs megadva
FŰTÉS- CSOK igénybe vehető nem
- Tetőtér beépíthető nem
- Építés éve 2025
- Klíma nem
- Szigetelt nem
A+++
A++
A+
A
B
C
D
E
F
G
H
I
Az ingatlan leírása
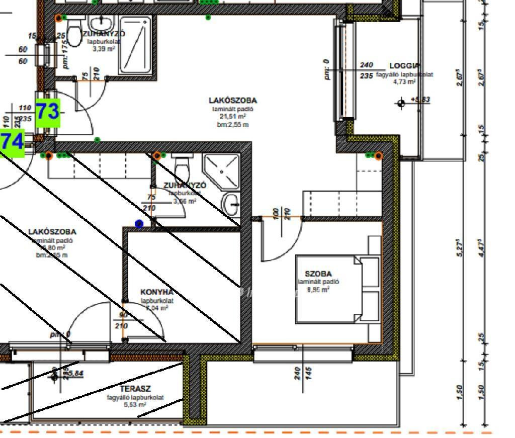
A ütem második emelet 73, 1+1 szoba. Balaton déli partjának egyik leghosszabb szabad strandjának közelében, Fonyódon új építésű lakóparkban kínálunk ingatlanokat kedvező áron. Az 50 lakásból, apartmanból, nyaralóból álló modern épület luxus színvonalú és meghatározó szereplője a környéknek. A tervezés során a magas műszaki tartalom mellett fontos szempont volt, hogy jól funkcionáló, élhető terek legyenek kialakítva elegáns megjelenésű épületben. Minden lakáshoz tartozik terasz, a földszinti lakásokhoz saját használatú zöld terület biztosított. A fűtésről és a lakás hűtéséről fűtő-hűtő hőszivattyú gondoskodik.
A napozó tetőn közösségi tér a jó használhatóságot biztosítja, ezen kívül jakuzzi és szauna kerül kialakításra Balatonra néző panorámával.
A projekt átadása a tervek szerint: 2026. II. negyedéve.
A lakás besorolás: Társasház A lakásvásárláshoz államilag támogatott hitelek, CSOK, kedvezményes hitelek és lakástámogatási termékek igényelhetőek, ennek elérésében díjmentes szolgáltatásunkkal segítjük a vásárlást!
A napozó tetőn közösségi tér a jó használhatóságot biztosítja, ezen kívül jakuzzi és szauna kerül kialakításra Balatonra néző panorámával.
A projekt átadása a tervek szerint: 2026. II. negyedéve.
A lakás besorolás: Társasház A lakásvásárláshoz államilag támogatott hitelek, CSOK, kedvezményes hitelek és lakástámogatási termékek igényelhetőek, ennek elérésében díjmentes szolgáltatásunkkal segítjük a vásárlást!