Eladó Lakás
Hirdetéskód: 9310925

-

Felújításhoz személyi kölcsönt keres? Kalkuláljon itt! →
FIX 3% Program

Ez a hirdetés megfelelhet a FIX 3%-os programnak.
Tudj meg többet a részletekről itt.

119.00 m2
ALAPTERÜLET
3
SZOBASZÁM
Tégla
ÉPÍTÉS
Gáz (cirkó)
FŰTÉS
  • CSOK igénybe vehető igen
  • Belső szintek 2
  • Kilátás Panorámás
  • Tájolás Délnyugat
  • Ingatlan komfort Duplakomfortos
  • Parkolási lehetőség Utcán, közterületen
  • Építés éve 2005
  • Fűtés Gáz (cirkó)
  • Építőanyag Tégla
  • Klíma igen
  • Szigetelt igen
  • Bútorozott igen

Energetikai besorolás: B

A+++
A++
A+
A
B
C
D
E
F
G
H
I

Az MBH Bank személyi kölcsön ajánlata

Fizetett hirdetés
1 millió Ft
6 évre
20 585 Ft/hó
THM: 14.5%
Részletek →
2 millió Ft
6 évre
41 169 Ft/hó
THM: 14.5%
Részletek →
3 millió Ft
6 évre
61 754 Ft/hó
THM: 14.5%
Részletek →

A tájékoztatás nem teljes körű és nem minősül ajánlattételnek.

Az ingatlan leírása

TULAJDONOSTÓL ELADÓ: PANORÁMÁS, 119 nm-es, RAGYOGÓAN VILÁGOS álomotthon a belvárosnál!


LEÍRÁS:
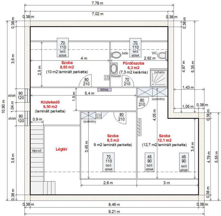
Eladó Esztergom egyik legkülönlegesebb ingatlana! Egy tehermentes, 119 m²-es, újszerű állapotú tégla lakás a belváros közvetlen közelében, amely azonnal költözhető.


Családosoknak ideális, 3+2 félszobás, belső kétszintes lakás Esztergom–Aranyhegyen, csendes, zöld környezetben.


Miért ez a legjobb választás a piacon?
LENYŰGÖZŐ PANORÁMA: A 3. emeleti elhelyezkedésnek köszönhetően zavartalan kilátás és csend fogadja – itt nincs felső szomszéd, aki zavarná a nyugalmát!                  3 OLDALRÓL VILÁGOS: A lakás ritka adottsága, hogy három égtáj felé vannak ablakai, így reggeltől estig természetes fényben úszik minden helyiség.


GÉPESÍTETT KONYHA ÉS BEÉPÍTETT BÚTOROK: A vételár részét képezi a teljes, egyedi tervezésű konyhabútor beépített gépekkel, valamint az összes beépített szekrény. Ez több millió forintos azonnali megtakarítás Önnek!


Alsó szint:



  • előszoba

  • nappali + étkező + konyha egy légtérben

  • nagy hálószoba

  • tágas, kádas fürdőszoba


Felső szint:



  • közlekedő

  • 3 külön nyíló szoba

  • zuhanyzós fürdőszoba


A lakáshoz tartozik, bruttó területen felüli 25 nm-es, burkolt padlástér, amely jelenleg gardróbként/tárolóként funkcionál, valamint egy földszinti, zárható saját helyiség, a házban pedig közös biciklitároló is rendelkezésre áll.


KARBANTARTOTT HÁZ: A 11 lakásos társasház és a lépcsőház 2005-ben teljes körű felújításon esett át (új burkolatok, esztétikai frissítés), így tiszta és rendezett környezet fogadja.


ALACSONY REZSI: A 119 nm-es alapterület ellenére a modern szigetelésnek és a korszerű fűtésrendszernek köszönhetően a fenntartási költségek rendkívül kedvezőek.


INGYENES PARKOLÁS: Közvetlenül a ház előtt mindig van szabad hely, parkolási díj nélkül.


KIEMELT MŰSZAKI TARTALOM:



  • Alapterület: 119 m² (újszerű, azonnal költözhető)

  • Nyílászárók: Minőségi, hőszigetelt fa ablakok és fa biztonsági bejárati ajtó

  • Belső ajtók: Hörmann magas hangszigetelésű fém beltéri ajtók (maximális csend és szeparáció minden szobában!)

  • Fűtés: Új, prémium Viessmann kondenzációs kazán + programozható termosztát

  • Hűtés: Klímaberendezés mindkét szinten kiépítve

  • Rezsicsökkentés: Egyedi mérőórák, rendkívül kedvező fenntartási költségek 



  • Lokáció Belváros, bolt, iskola, óvoda, buszmegálló, orvosi rendelő és sportolási lehetőségek pár perc sétára elérhetők

  • Irányár: 94.99 M



Várom hívását bizalommal, akár hétvégén is:
 +36 20 4111638

Térkép

Ingatlan adásvétel ügyvédi díja
427 455 Ft
a hirdetésben szereplő ár alapján
  • A vételár 0,45%-a
  • Szerződéscsomag teljeskörű képviselettel
  • Ingyenes tulajdoni lap ellenőrzés
  • Az ÁFA-t már tartalmazza
Érdekel az ajánlat →
A tájékoztatás nem teljes körű és nem minősül ajánlattételnek. Minimum díj: 150 000 Ft, maximum díj: 600 000 Ft. A díj kizárólag lakóingatlan adásvételére vonatkozik.

A hirdető elérhetősége

Ambrus Bernadett

+36 20 411