Eladó Lakás
Hirdetéskód: 9289118
Érd Bajcsy-Zsilinszky út 160 - OTP Ingatlanpont Iroda
Felújításhoz személyi kölcsönt keres? Kalkuláljon itt! →64.00 m2
ALAPTERÜLET3
SZOBASZÁMnincs megadva
ÉPÍTÉSEgyéb fűtés
FŰTÉS- CSOK igénybe vehető nem
- Tetőtér beépíthető nem
- Építés éve 2023
- Fűtés Egyéb fűtés
- Klíma nem
- Szigetelt nem
A+++
A++
A+
A
B
C
D
E
F
G
H
I
Az ingatlan leírása
Érd Központjában, vasútállomások közelében, de mégis nyugodt utcában eladó egy 64 m2-es, nappali + 2db hálószobás 1. emeleti társasházi lakás, ami egy 2023-ban elkészült 12 lakásos társasházban található.
Befektetőknek, családoknak egyaránt!
ÚJSZERŰ ÁLLAPOT, KIVÁLÓ INFRASTRUKTÚRA, TÁRSASHÁZ ALAPÍTÓ OKIRAT, ÖNÁLLÓ ALBETÉT.
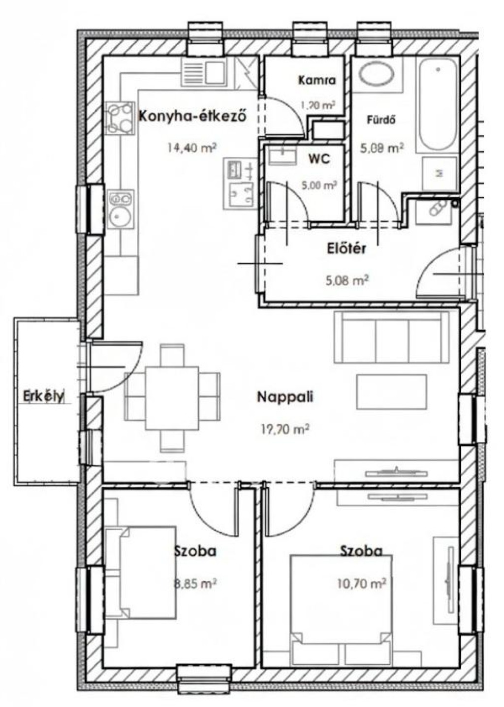
Helyiségek:
Amerikai konyhás nappali 30,9 m2
Szoba 10,9 m2
Szoba 8,4 m2
Fürdőszoba 5 m2
Előszoba 5 m2
WC 1,9 m2
Kamra 1,8 m2
Erkély 3,2 m2
Az épület szerkezete: 30 cm Porotherm falazóblokkból épültek, amelyet 15 cm hőszigeteléssel láttak el. Az ablakok 5 légkamrás, 3 rétegű, hang- és hőszigetelt üveggel ellátottak, antracit színű alumínium redőnnyel szereltek.
Minden lakás egyedi mérőórákkal szerelt, fűtése H tarifás levegő-levegő hőszivattyú (+kiegészítő fűtőpanelek a szobákban és törölközőszárító a fürdőszobában), bejegyzett társasházi lakás, 1/1 tulajdon.
Rendkívül alacsony rezsi!!!
Tartozik hozzá egy udvari parkolóhely, ahova távirányítású kapun keresztül lehet behajtani. A képeken látható gépesített konyhabútor a vételár részét képezi, a többi ingóság kedvezményes áron megvásárolható.
A közelben iskola, óvoda, orvosi rendelő, bevásárlási lehetőségek, a buszpályaudvar és vasútállomás pár perc sétával megközelíthető, ahonnan az M4 metro kb. 10-15 perc alatt elérhető. Gépkocsival az M0, M1, M6 és M7 autópálya 5-10 perc.
Vevőinknek szükség esetén kedvezményes hitelt biztosítunk teljes körű ügyintézéssel!
Az adásvételi szerződés megkötéséhez igény szerint megbízható ügyvédi közreműködést biztosítunk, és segítséget nyújtunk az adásvételhez kapcsolódó ügyek intézéséhez.
Hívjon bizalommal!
Befektetőknek, családoknak egyaránt!
ÚJSZERŰ ÁLLAPOT, KIVÁLÓ INFRASTRUKTÚRA, TÁRSASHÁZ ALAPÍTÓ OKIRAT, ÖNÁLLÓ ALBETÉT.
Helyiségek:
Amerikai konyhás nappali 30,9 m2
Szoba 10,9 m2
Szoba 8,4 m2
Fürdőszoba 5 m2
Előszoba 5 m2
WC 1,9 m2
Kamra 1,8 m2
Erkély 3,2 m2
Az épület szerkezete: 30 cm Porotherm falazóblokkból épültek, amelyet 15 cm hőszigeteléssel láttak el. Az ablakok 5 légkamrás, 3 rétegű, hang- és hőszigetelt üveggel ellátottak, antracit színű alumínium redőnnyel szereltek.
Minden lakás egyedi mérőórákkal szerelt, fűtése H tarifás levegő-levegő hőszivattyú (+kiegészítő fűtőpanelek a szobákban és törölközőszárító a fürdőszobában), bejegyzett társasházi lakás, 1/1 tulajdon.
Rendkívül alacsony rezsi!!!
Tartozik hozzá egy udvari parkolóhely, ahova távirányítású kapun keresztül lehet behajtani. A képeken látható gépesített konyhabútor a vételár részét képezi, a többi ingóság kedvezményes áron megvásárolható.
A közelben iskola, óvoda, orvosi rendelő, bevásárlási lehetőségek, a buszpályaudvar és vasútállomás pár perc sétával megközelíthető, ahonnan az M4 metro kb. 10-15 perc alatt elérhető. Gépkocsival az M0, M1, M6 és M7 autópálya 5-10 perc.
Vevőinknek szükség esetén kedvezményes hitelt biztosítunk teljes körű ügyintézéssel!
Az adásvételi szerződés megkötéséhez igény szerint megbízható ügyvédi közreműködést biztosítunk, és segítséget nyújtunk az adásvételhez kapcsolódó ügyek intézéséhez.
Hívjon bizalommal!