Eladó Lakás
Hirdetéskód: 9313623

-

Felújításhoz személyi kölcsönt keres? Kalkuláljon itt! →
FIX 3% Program

Ez a hirdetés megfelelhet a FIX 3%-os programnak.
Tudj meg többet a részletekről itt.

64.00 m2
ALAPTERÜLET
3
SZOBASZÁM
Tégla
ÉPÍTÉS
Hőszivattyú
FŰTÉS
  • CSOK igénybe vehető igen
  • Kilátás Kertre néző
  • Ingatlan komfort Összkomfortos
  • Parkolási lehetőség Udvari beálló
  • Építés éve 2026
  • Fűtés Hőszivattyú
  • Építőanyag Tégla
  • Erkély, terasz Erkély 4.00m2
  • Klíma igen
  • Szigetelt igen
  • Kábelszolgáltató T-come, One

Energetikai besorolás: A+

A+++
A++
A+
A
B
C
D
E
F
G
H
I

Az MBH Bank személyi kölcsön ajánlata

Fizetett hirdetés
1 millió Ft
6 évre
20 585 Ft/hó
THM: 14.5%
Részletek →
2 millió Ft
6 évre
41 169 Ft/hó
THM: 14.5%
Részletek →
3 millió Ft
6 évre
61 754 Ft/hó
THM: 14.5%
Részletek →

A tájékoztatás nem teljes körű és nem minősül ajánlattételnek.

Az ingatlan leírása

10 % FOGLALÓVAL LEKÖTHETŐ ÚJ ÉPÍTÉSŰ, ENERGIATAKARÉKOS LAKÁSOK! ÉRD- POSTÁSTELEP KERÜLETÉBEN!


58 m2, és 64 m2, 2 szoba + nappalis, emeleti, erkélyes valamint 85 m2 -es 3 háló + nappalis, földszinti TERASSZAL és SAJÁT KERTKAPCSOLATTAL!


HŐSZIVATTYÚS HŰTÉS-FŰTÉS! RENDKÍVÜL JÓ TÖMEGKÖZLEKEDÉS, KÍVÁLÓ INFRASTRUKTÚRA! TÁRSASHÁZI LAKÁSOK, TEREMGARÁZS vagy FELSZÍNI NYITOTT PARKOLÓVAL, TÁRÓLÓVAL.


SAJÁT LAKÁSONKÉNTI FŐMÉRŐVEL MINDEN KÖZMŰSZOLGÁLTATÁSHOZ!


A hideg és meleg burkolatok (7.000 Ft/m2), belső falak színei, szaniterek, csaptelepek választhatók így a leendő új tulajdonos ízlésének megfelelően történek a befejezési munkák. A ház 30-as hőszigetelő téglából épül, amit 15 cm-es szigeteléssel burkolnak. A külső nyílászárók 6 légkamrás, 3 rétegű üvegezéssel ellátott, bukó-nyíló ajtók és ablakok, rejtett redőnytokokkal felszerelve elektromos mozgatásra is előkészítve (a roló és szúnyogháló nem tartozék).


A lakás fűtés és hűtés rendszerét levegő és víz teres, 6 kW-os, ARISTON márkájú elektromos hőszivattyú működteti majd (lakásonként saját készülék) padlófűtéssel, a nappaliban fan coil (klíma) készülékkel „H tarifa” áram szolgáltatással. A melegvízellátást falra szerelt ARISTON hőtároló készülék biztosítja.


Az ingatlan elhelyezkedésének köszönhetően remek adottságokkal rendelkezik. Iskola, óvoda, bölcsőde, autóbusz megálló (amelynek járatai Bp. Etele térig közlekedik), a mindennapi bevásárláshoz szükséges boltok, háziorvosi rendelő és gyógyszertár 5-10 perces könnyű sétával, az M7-es és M0-ás autópálya 5 perc autózással elérhető.


Jelenleg elérhető lakáskínálat:


Földszint:


1-es lakás. 3 szoba + nappali, 84,5 m2 (+ 7 terasz), kertkapcsolat ~170 m2. 99,9 Millió Ft (+ kert 5 Millió + garázs 3 Millió vagy nyílt parkoló 2 Millió)


Emelet:


2-es lakás. 2 szoba + nappali, 58,42 m2 (+ 3,75 m2 erkély). 76,9 Millió Ft (+ garázs 3 Millió vagy nyílt parkoló 2 Millió)


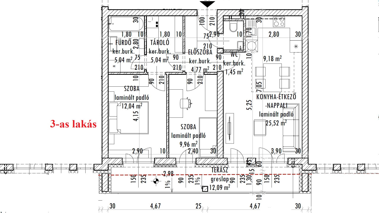
3-as lakás. 2 szoba + nappali, 63,82 m2 (+ 12 m2 erkély). 83,9 Millió Ft (+ garázs 3 Millió vagy nyílt parkoló 2 Millió)


4-es lakás. 2 szoba + nappali, 58,42 m2 (+3,75 m2 erkély). 75,9 Millió Ft (+ garázs 3 Millió vagy nyílt


Tetőtér:


5-ös lakás. 2 szoba + nappali, nettó: 66,75 m2 (+ 6 m2 erkély). 87,9 Millió Ft (+ garázs 3 Millió vagy nyílt parkoló 2 Millió)


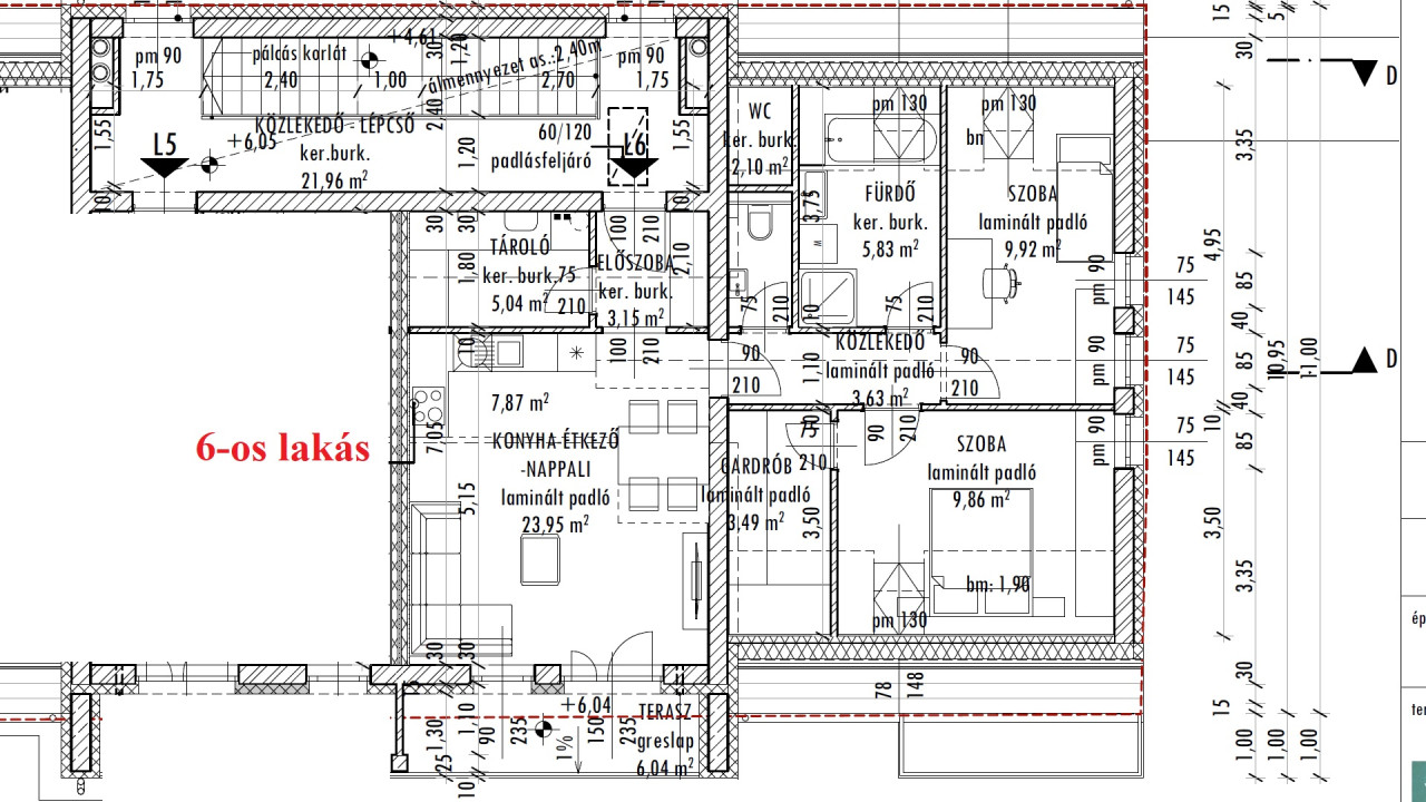
6-os lakás. ELADVA


A lakáshoz tartozó saját, teremgarázs parkoló vételára + 3 000 000 Ft, vagy felszíni parkoló 2 000 000 Ft, tároló + 2 000 0000 Ft (kivéve ahol a lakáson belül található) a lakás vételárán felül vásárolható.


Ha bármilyen kérdésed lenne az ingatlannal kapcsolatban, ne habozz felvenni velünk a kapcsolatot. Ügyfeleink bizalommal fordulhatnak hozzánk, hiszen készséggel állunk rendelkezésükre. Az ingatlan bemutatása mellett a mi célunk az, hogy segítsük megtalálni az ideális otthont. Akár készpénzből akár államilag támogatott vagy szabad piaci hitelt szeretnél felvenni a vásárláshoz, tanácsadó kollégánk díjmentes, banksemleges ügyintézéssel áll rendelkezésre. Igény esetén ügyvédi segítséget is ajánlunk a teljes ügymenet jogi lebonyolításához.

Térkép

Ingatlan adásvétel ügyvédi díja
341 550 Ft
a hirdetésben szereplő ár alapján
  • A vételár 0,45%-a
  • Szerződéscsomag teljeskörű képviselettel
  • Ingyenes tulajdoni lap ellenőrzés
  • Az ÁFA-t már tartalmazza
Érdekel az ajánlat →
A tájékoztatás nem teljes körű és nem minősül ajánlattételnek. Minimum díj: 150 000 Ft, maximum díj: 600 000 Ft. A díj kizárólag lakóingatlan adásvételére vonatkozik.

A hirdető elérhetősége

Érdi Ingatlan Iroda

Verő Ákos
+36 70 679