Eladó Lakás
Hirdetéskód: 9229882
Dunaharaszti, Dózsa György út 45. (OTPIP)
84 m2
ALAPTERÜLET2
SZOBASZÁMnincs megadva
ÉPÍTÉSnincs megadva
FŰTÉS- CSOK igénybe vehető nem
- Tetőtér beépíthető nem
- Építés éve 2006
- Klíma nem
- Szigetelt nem
A+++
A++
A+
A
B
C
D
E
F
G
H
I
Az ingatlan leírása
Kivételes lehetőség Érd Dombosvárosában!
Tágas, panorámás, felújított emeleti lakás eladó, saját kertrésszel!
Érd kedvelt, csendes, családi házas övezetében, Dombosváros városrészben eladó egy kétszintes, 3 lakásos téglaépítésű ház, emeleti lakása.
A 194 nm alapterületű épület 2018-ban teljeskörű felújításon esett át, így a kínált 84,5 nm-es tetőtéri lakás modern, gondozott állapotban várja új tulajdonosát.
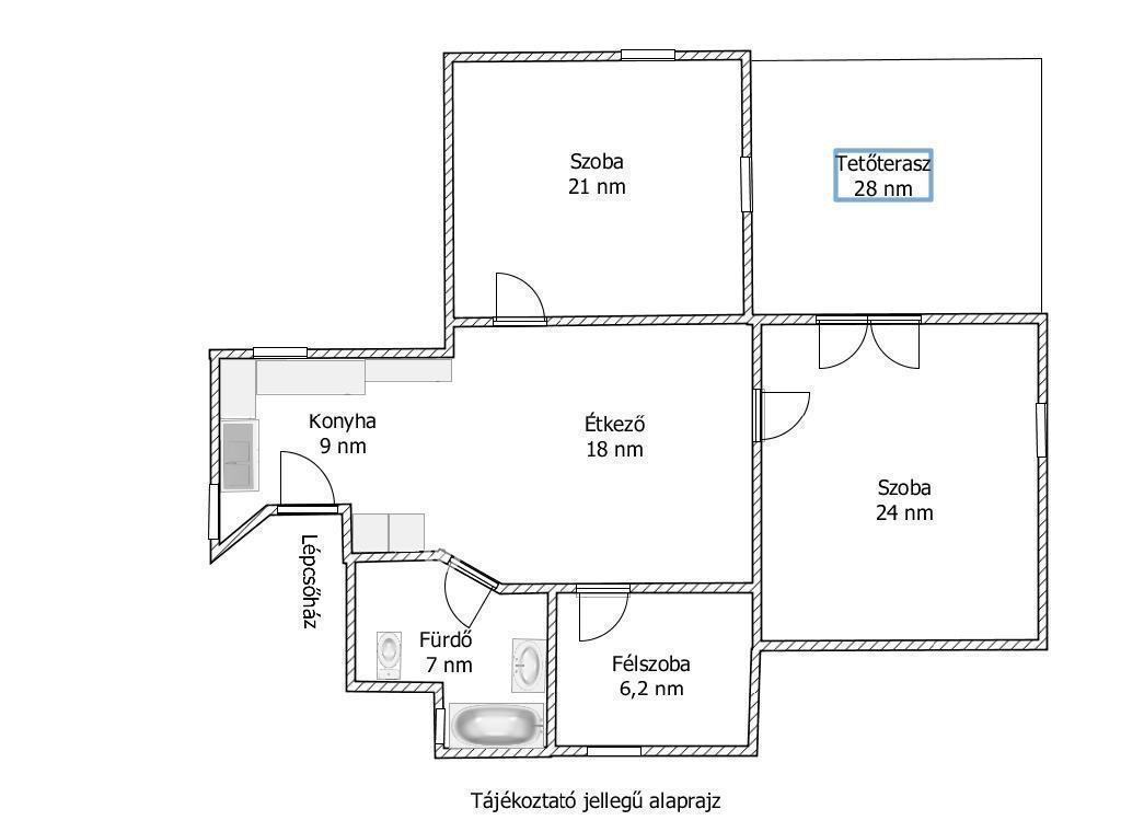
A lakás világos, jól átgondolt elrendezésű, 2,5 szobás + étkezős kialakítású, melyhez egy 28 nm-es, panorámás tetőterasz is tartozik, tökéletes helyszín reggeli kávézáshoz vagy esti pihenéshez.
A 718 nm-es, rendezett telken az ingatlanhoz 89 nm saját, lekerített kertrész tartozik, valamint térkövezett autóbeálló biztosít kényelmes parkolási lehetőséget két gépkocsi számára.
Műszaki leírása:
-ház tégla építésű
- betoncserépfedésű,
-5 cm dryvit homlokzati szigeteléssel,
- belső szigetelt válaszfalakkal,
- műanyag, redőnyös és szúnyoghálós nyílászárókkal.
- padlás tárolásra is alkalmas
A fűtésről és melegvízről Ariston kondenzációs kombi cirkó gondoskodik, radiátoros hőleadással, a nappaliban pedig hűtő-fűtő klíma növeli a komfortot.
A rezsi rendkívül kedvező: víz, gáz, villany együttesen mindössze kb. 20.000 Ft / hó átalányban!
Az ingatlan osztatlan közös tulajdon, ügyvédi használati megállapodással, tehermentes.
Közös költség nincs.
Az OTP Bankcsoport teljes körű ügyintézéssel áll az eladók és a vevők rendelkezésére! A kínálatunkból választott ingatlan finanszírozásához kedvezményes hitel konstrukciókat kínálunk. Az adásvételi szerződés megkötéséhez igény szerint megbízható ügyvédi közreműködést biztosítunk, és segítséget nyújtunk az adásvételhez kapcsolódó ügyek intézésében. További információért vagy megtekintéssel kapcsolatban hívjon a hét bármely napján.
Tágas, panorámás, felújított emeleti lakás eladó, saját kertrésszel!
Érd kedvelt, csendes, családi házas övezetében, Dombosváros városrészben eladó egy kétszintes, 3 lakásos téglaépítésű ház, emeleti lakása.
A 194 nm alapterületű épület 2018-ban teljeskörű felújításon esett át, így a kínált 84,5 nm-es tetőtéri lakás modern, gondozott állapotban várja új tulajdonosát.
A lakás világos, jól átgondolt elrendezésű, 2,5 szobás + étkezős kialakítású, melyhez egy 28 nm-es, panorámás tetőterasz is tartozik, tökéletes helyszín reggeli kávézáshoz vagy esti pihenéshez.
A 718 nm-es, rendezett telken az ingatlanhoz 89 nm saját, lekerített kertrész tartozik, valamint térkövezett autóbeálló biztosít kényelmes parkolási lehetőséget két gépkocsi számára.
Műszaki leírása:
-ház tégla építésű
- betoncserépfedésű,
-5 cm dryvit homlokzati szigeteléssel,
- belső szigetelt válaszfalakkal,
- műanyag, redőnyös és szúnyoghálós nyílászárókkal.
- padlás tárolásra is alkalmas
A fűtésről és melegvízről Ariston kondenzációs kombi cirkó gondoskodik, radiátoros hőleadással, a nappaliban pedig hűtő-fűtő klíma növeli a komfortot.
A rezsi rendkívül kedvező: víz, gáz, villany együttesen mindössze kb. 20.000 Ft / hó átalányban!
Az ingatlan osztatlan közös tulajdon, ügyvédi használati megállapodással, tehermentes.
Közös költség nincs.
Az OTP Bankcsoport teljes körű ügyintézéssel áll az eladók és a vevők rendelkezésére! A kínálatunkból választott ingatlan finanszírozásához kedvezményes hitel konstrukciókat kínálunk. Az adásvételi szerződés megkötéséhez igény szerint megbízható ügyvédi közreműködést biztosítunk, és segítséget nyújtunk az adásvételhez kapcsolódó ügyek intézésében. További információért vagy megtekintéssel kapcsolatban hívjon a hét bármely napján.