Eladó Lakás
Hirdetéskód: 9277094

-

Felújításhoz személyi kölcsönt keres? Kalkuláljon itt! →
FIX 3% Program

Ez a hirdetés megfelelhet a FIX 3%-os programnak.
Tudj meg többet a részletekről itt.

52.00 m2
ALAPTERÜLET
3
SZOBASZÁM
Tégla
ÉPÍTÉS
Hőszivattyú
FŰTÉS
  • CSOK igénybe vehető igen
  • Belső szintek 1
  • Kilátás Kertre néző
  • Tájolás Délnyugat
  • Ingatlan komfort Összkomfortos
  • Parkolási lehetőség Önálló garázs
  • Építés éve 2026
  • Fűtés Hőszivattyú
  • Építőanyag Tégla
  • Erkély, terasz Terasz 2.00m2
  • Kertkapcsolat igen
  • Klíma igen
  • Szigetelt igen
  • Kábelszolgáltató T-come, One

Energetikai besorolás: A+

A+++
A++
A+
A
B
C
D
E
F
G
H
I

Az MBH Bank személyi kölcsön ajánlata

Fizetett hirdetés
1 millió Ft
6 évre
20 585 Ft/hó
THM: 14.5%
Részletek →
2 millió Ft
6 évre
41 169 Ft/hó
THM: 14.5%
Részletek →
3 millió Ft
6 évre
61 754 Ft/hó
THM: 14.5%
Részletek →

A tájékoztatás nem teljes körű és nem minősül ajánlattételnek.

Az ingatlan leírása

ELŐÉRTÉKESÍTÉSI AKCIÓBAN 2 MILLIÓ Ft-al LEKÖTHETŐ ÚJ ÉPÍTÉSŰ LAKÁSOK! ÉRD-TISZTVISELŐTELEP kerületben, 49 m2 -től a 107 m2-es, 1 szoba + nappalistól a 4 háló + nappalis lakásig! TERASSZAL és SAJÁT KETKAPCSOLATTAL vagy ERKÉLLYEL, HŐSZIVATTYÚS HŰTÉS-FŰTÉS! RENDKÍVÜL JÓ TÖMEGKÖZLEKEDÉS (vasúti és busz megálló), KÍVÁLÓ INFRASTRUKTÚRA! TÁRSASHÁZI LAKÁSOK, TEREMGARÁZS vagy FELSZÍNI NYITOTT PARKOLÓVAL, TÁRÓLÓVAL.


MINDEGYIK LAKÁS SAJÁT FŐVÍZMÉRŐ ÓRÁVAL RENDELKEZIK!


A hideg és meleg burkolatok (7.500 Ft/m2), belső falak színei, szaniterek, csaptelepek választhatók így a leendő új tulajdonos ízlésének megfelelően történek a befejezési munkák. A ház 30-as hőszigetelő téglából épül, amit 15 cm-es szigeteléssel burkolnak. A külső nyílászárók 6 légkamrás, 3 rétegű üvegezéssel ellátott, bukó-nyíló ajtók és ablakok, rejtett redőnytokokkal felszerelve elektromos mozgatásra is előkészítve (a roló és szúnyogháló nem tartozék).


A lakás fűtés és hűtés rendszerét levegő és víz teres elektromos hőszivattyú működteti majd (lakásonként saját készülék) padlófűtéssel, a nappaliban fan coil (klíma) készülékkel „H tarifa” áram szolgáltatással. A melegvízellátást falra szerelt ARISTON típusú hőtároló készülék biztosítja.


Az ingatlan elhelyezkedésének köszönhetően remek adottságokkal rendelkezik. Iskola, óvoda, autóbusz megálló (amelynek járatai Bp. Etele térig közlekedik), Érd- Nagyállomás vasúti megálló (végállomás Kelenföld és Déli p.u.), a mindennapi bevásárláshoz szükséges boltok, háziorvosi rendelő és gyógyszertár 5-10 perces könnyű sétával, az M6-os autópálya 6-os és 7-es főutakkal találkozó csomópontja 5 perc autózással elérhető.


Jelenleg elérhető lakáskínálat:


Földszint:


1-es lakás. 2 szoba + nappali, 51,38 m2 (+ 2 m2 terasz + 5 m2 tároló), kertkapcsolat. 66,9 Millió Ft (+ garázs 3 Millió + Tároló 2 Millió össz.: 71,9 Millió Ft)


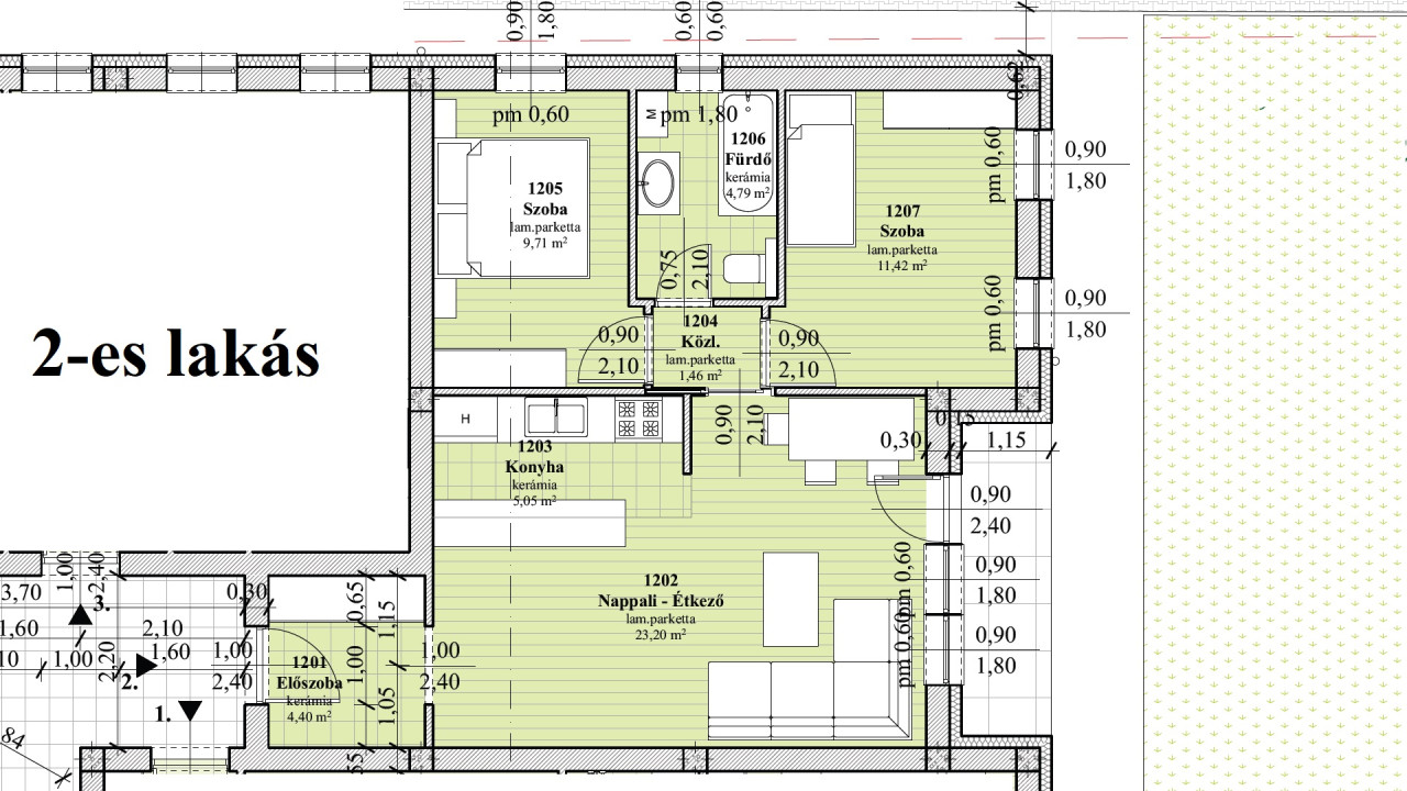
2-es lakás. 2 szoba + nappali, 60 m2 (+ 4,6 m2 terasz + 5 m2 tároló), kertkapcsolat. 78 Millió Ft (+ garázs 3 Millió + Tároló 2 Millió össz.: 83 Millió Ft)


3-as lakás. 2 szoba + nappali, 52,66 m2 (+ 5 m2 tároló). 68,5 Millió Ft (+ garázs 3 Millió + Tároló 2 Millió össz.: 73,5 Millió Ft)


4-es lakás. 2 szoba + nappali, 60,32 m2 (+ 4 m2 terasz + 5 m2 tároló), kertkapcsolat. ELADVA (+ garázs 3 Millió + Tároló 2 Millió össz.: ELADVA)


5-ös lakás. 2 szoba + nappali, 70,9 m2 (+ 4 m2 terasz + 5 m2 tároló), kertkapcsolat. 91,9 Millió Ft (+ garázs 3 Millió + Tároló 2 Millió össz.: 96,9 Millió Ft)


6-os lakás. 2 szoba + nappali, 49,71 m2 (+ 4,6 m2 terasz + 5 m2 tároló), kertkapcsolat. 64,5 Millió Ft (+ garázs 3 Millió + Tároló 2 Millió össz.: 69,5 Millió Ft)


 Emelet:


7-es lakás. 2 szoba + nappali, 51,54 m2 (+ 4,81 m2 erkély + 5 m2 tároló). 69,886 Millió Ft (+ garázs 3 Millió + Tároló 2 Millió össz.: 74,886 Millió Ft)


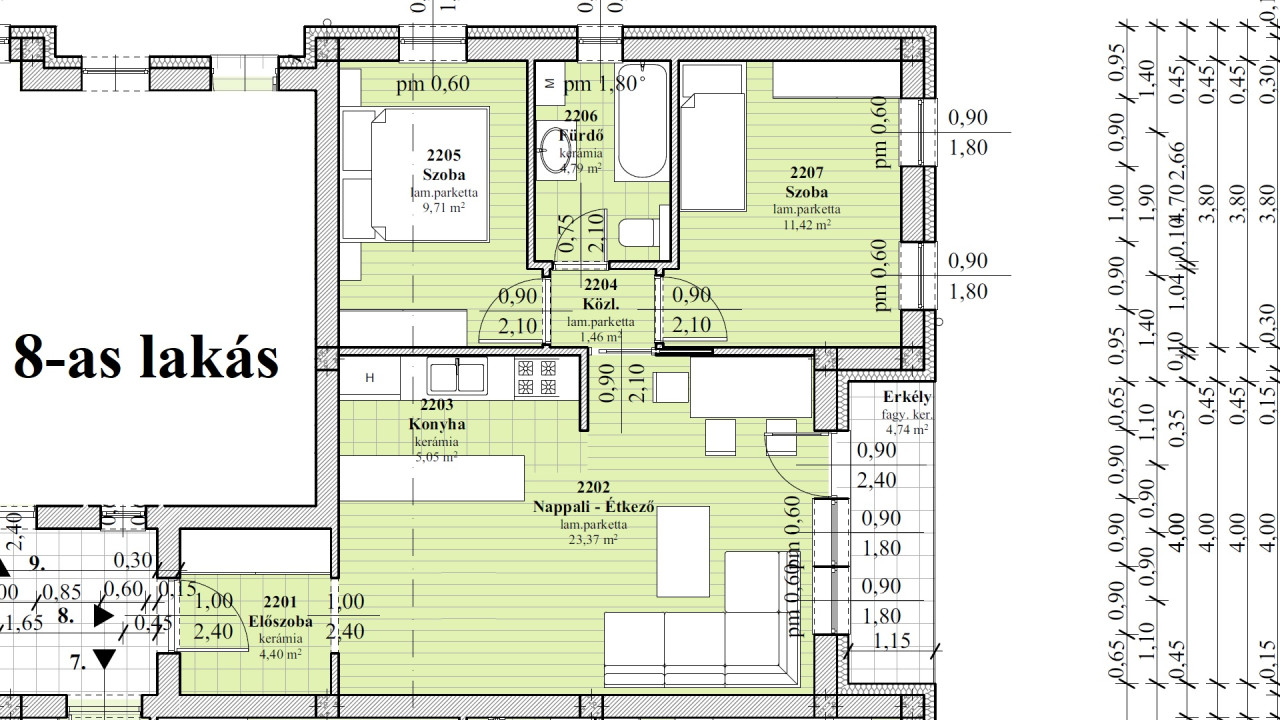
8-as lakás. 2 szoba + nappali, 60,19 m2 (+ 4,74 m2 erkély + 5 m2 tároló). 80,744 Millió Ft (+ garázs 3 Millió + Tároló 2 Millió össz.: 85,774 Millió Ft)


9-es lakás. 2 szoba + nappali, 61,47 m2 (+ 4,09 m2 erkély + 5 m2 tároló). 82,354 Millió Ft (+ felszíni parkoló 1,5 Millió + Tároló 2 Millió össz.: 85,854 Millió Ft)


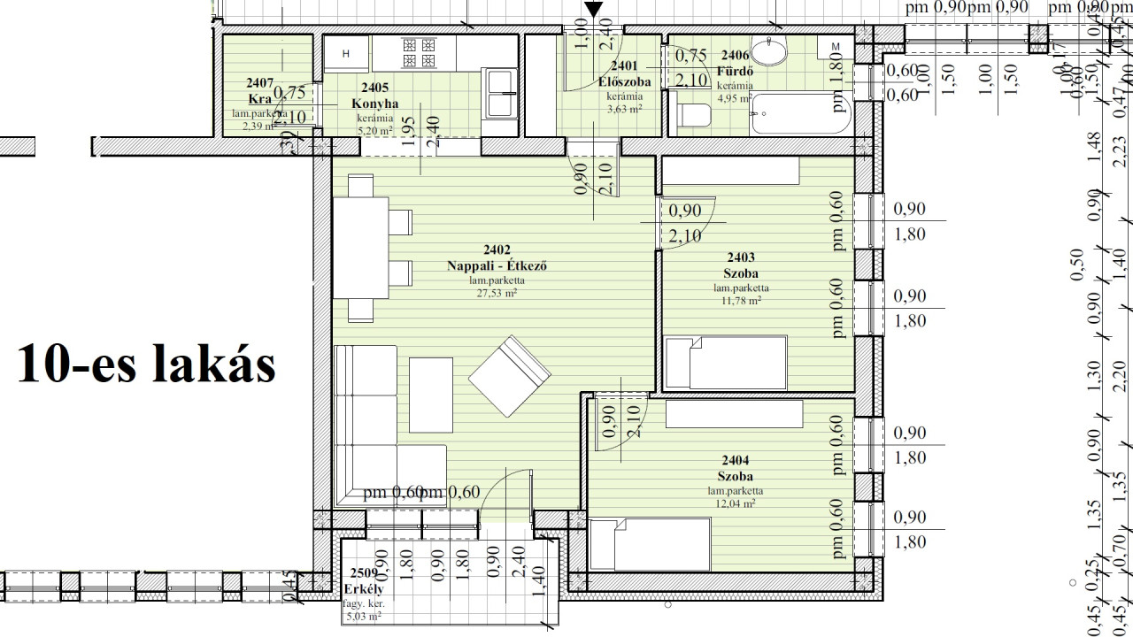
10-es lakás. 2 szoba + nappali, 67,52 m2 (+ 5,03 m2 erkély + 5 m2 tároló). 90,518 Millió Ft (+ felszíni parkoló 1,5 Millió + Tároló 2 Millió össz.: 94,018 Millió Ft)


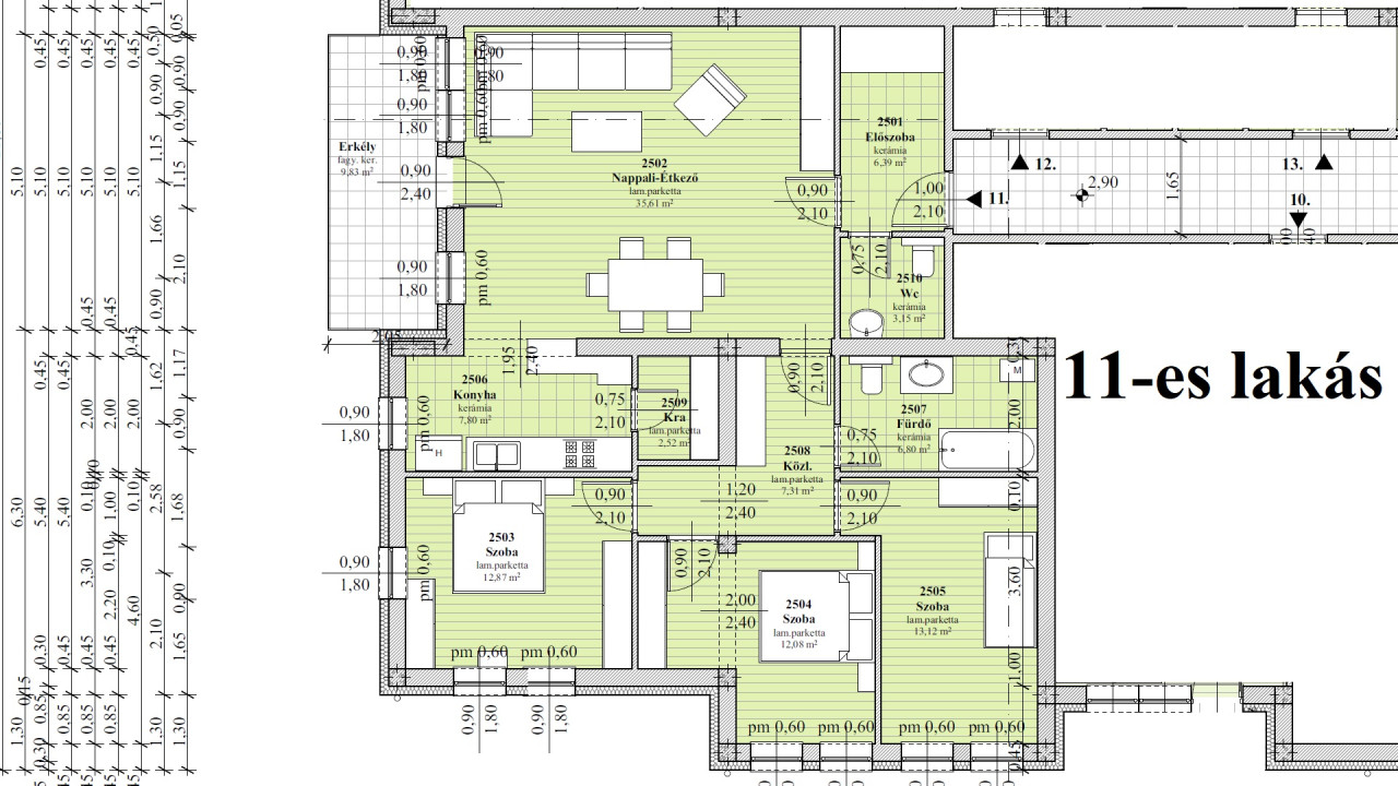
11-es lakás. 3 szoba + nappali, 107,65 m2 (+ 9,83 m2 erkély + 5 m2 tároló). 140,398 Millió Ft (+ felszíni parkoló 1,5 Millió + Tároló 2 Millió össz.: 143,898 Millió Ft)


12-es lakás. 2 szoba + nappali, 63,07 m2 (+ 7,7 m2 erkély + 5 m2 tároló). 86,520 Millió Ft (+ felszíni parkoló 1,5 Millió + Tároló 2 Millió össz.: 90,02 Millió Ft)


13-as lakás. 2 szoba + nappali, 63,98 m2 (+ 7,7 m2 erkély + 5 m2 tároló). 87,62 Millió Ft (+ felszíni parkoló 1,5 Millió + Tároló 2 Millió össz.: 91,12 Millió Ft)


Tetőtér:


14-es lakás. 4 szoba + nappali, dupla fürdőszobás, nettó: 101,31 m2 bruttó: 153,7 m2 (+ 4,74 m2 erkély + 5 m2 tároló). 123,844 Millió Ft (+ felszíni parkoló 1,5 Millió + Tároló 2 Millió össz.: 127,344 Millió Ft)


15-ös lakás. 3 szoba + nappali, dupla fürdőszobás, nettó: 81,04 m2 bruttó: 112 m2 (+ 5,03 m2 erkély + 5 m2 tároló). 84,018 Millió Ft (+ felszíni parkoló 1,5 Millió + Tároló 2 Millió össz.: 87,518 Millió Ft)


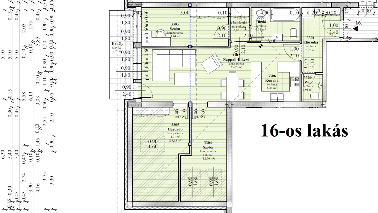
16-os lakás. 3 szoba + nappali, nettó: 68,87 m2 bruttó: 82,95 m2 (+ 7,28 m2 erkély + 5 m2 tároló). 73,238 Millió Ft (+ felszíni parkoló 1,5 Millió + Tároló 2 Millió össz.: 76,738 Millió Ft)


A lakáshoz tartozó saját, teremgarázs parkoló vételára + 3 000 000 Ft, felszíni parkoló 1 500 000 Ft a lakás vételárán felül vásárolható.


Ezen a linken megnézheti a beruházó egyik már átadott társasházáról és annak lakásairól készült videót:


https://www.youtube.com/watch?v=IJpMbm6kAuY


Ha bármilyen kérdésed lenne az ingatlannal kapcsolatban, ne habozz felvenni velünk a kapcsolatot. Ügyfeleink bizalommal fordulhatnak hozzánk, hiszen készséggel állunk rendelkezésükre. Az ingatlan bemutatása mellett a mi célunk az, hogy segítsük megtalálni az ideális otthont. Akár készpénzből akár államilag támogatott vagy szabad piaci hitelt szeretnél felvenni a vásárláshoz, tanácsadó kollégánk díjmentes, banksemleges ügyintézéssel áll rendelkezésre. Igény esetén ügyvédi segítséget is ajánlunk a teljes ügymenet jogi lebonyolításához.

Térkép

A hirdető elérhetősége

Érdi Ingatlan Iroda

Verő Ákos
+36 70 679