Eladó Lakás
Hirdetéskód: 9197186

Tatár Szabolcs

FIX 3% Program

Ez a hirdetés megfelelhet a FIX 3%-os programnak.
Tudj meg többet a részletekről itt.

65 m2
ALAPTERÜLET
3
SZOBASZÁM
Tégla
ÉPÍTÉS
Gáz (cirkó)
FŰTÉS
  • Belső szintek 1
  • Kilátás Kertre néző
  • Ingatlan komfort Összkomfortos
  • Parkolási lehetőség Udvari beálló
  • Építés éve 2019
  • Fűtés Gáz (cirkó)
  • Építőanyag Tégla
  • Erkély, terasz Erkély 10m2
  • Klíma igen
  • Szigetelt igen
  • Bútorozott nem
  • Akadálymentesített nem
Energetikai besorolás: Nincs meghatározva
A+++
A++
A+
A
B
C
D
E
F
G
H
I

Az ingatlan leírása

Hivatkozzon erre, kód: 5054TSZ


- ÚJSZERŰ ÁLLAPOT


- KIVÁLÓ INFRASTRUKTÚRA


- TÁRSASHÁZI ALAPÍTÓ OKIRAT (önálló albetét)


- NAPPALI + 2 SZOBA, NAGY ERKÉLY, 1 GK-S UDVARI BEÁLLÓ


Érd Városközpontban kiváló infrastruktúránál 2019-ben épült társasházban eladó egy újszerű állapotban lévő nappali + 2 szobás, összesen 65.44m2-es (+ erkély), I. emeleti lakás 1 gk-s udvari beállóval.


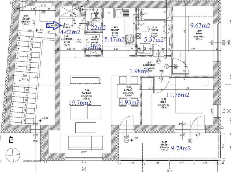
A lakás felosztása a következő (65.44m2 + 9.78m2 erkély): előszoba (4.02m2), wc (1.22m2), kamra (1.30m2), konyha (5.47m2) – étkező (4.93m2) – nappali (19.76m2), közlekedő (1.98m2), fürdőszoba + wc (5.37m2), szoba (11.76m2), szoba (9.63m2).


Szerkezeti leírás: A társasház 2019-ben épült beton alapra. Porotherm N+F 30-as tégla főfalak + 15cm dryvit szigetelés. 10-es tégla válaszfalak. A külső nyílászárók műanyag szerkezetűek, 3 rétegű fokozott hőszigetelésű üvegezéssel ellátva, beépített redőnyökkel és szúnyoghálókkal felszerelve. A belső nyílászárók papírrácsbetétes ajtók. Beton födém. Cserép fedésű tető.


Közművek: víz, villany, gáz, csatorna bekötve, önálló mérőórákkal ellátva.


Fűtés, meleg víz ellátás: A lakás fűtését kondenzációs gázcirkó biztosítja padlófűtésen keresztül. A meleg víz ellátás szintén a cirkóról üzemel. A nappaliban felszerelésre került 1 db. hűtő-fűtő klíma is.


Parkolás: zárt udvaron belül 1 gépkocsi számára alkalmas fedetlen-felszíni beálló áll rendelkezésre.


EXTRÁK: 1 db. hűtő-fűtő klíma, redőnyök, szúnyoghálók, beépített-gépesített konyhabútor (sütő, főzőlap, elszívó, mosogatógép).


Megközelíthetőség és infrastruktúra kitűnő! Buszmegálló, vonatállomás, buszpályaudvar, közintézmények, bevásárlási lehetőségek pár perc sétával elérhetőek.


További hasonló ingatlanok találhatók még a kínálatunkban!


Szüksége van hitelre? SEGÍTÜNK!


Bankfüggetlen hitel tanácsadónk díjmentesen áll az Ön rendelkezésére! Keressen bizalommal!


A hirdetésben szereplő adatok, információk, képek, alaprajzok stb... tájékoztató jellegűek! Irodánk az esetleges elírásokért felelősséget nem tud vállalni!  


Tájékoztatjuk a Tisztelt Érdeklődőket, hogy az ingatlan hirdetésében szereplő telefonszám felhívásával Önök hozzájárulnak személyes adataik (név, telefonszám), a hirdetést feladó -Otthonplusz.hu Kft. - által a bizalmas kezeléshez és nyilvántartáshoz.

Térkép

A hirdető elérhetősége

Otthon Plusz Ingatlanközvetítő Iroda

Tatár Szabolcs
+36 70 432