Eladó Lakás
Hirdetéskód: 9310128

-

Felújításhoz személyi kölcsönt keres? Kalkuláljon itt! →
FIX 3% Program

Ez a hirdetés megfelelhet a FIX 3%-os programnak.
Tudj meg többet a részletekről itt.

67.00 m2
ALAPTERÜLET
3
SZOBASZÁM
Tégla
ÉPÍTÉS
Hőszivattyú
FŰTÉS
  • CSOK igénybe vehető igen
  • Kilátás Kertre néző
  • Ingatlan komfort Összkomfortos
  • Parkolási lehetőség Udvari beálló
  • Építés éve 2026
  • Fűtés Hőszivattyú
  • Építőanyag Tégla
  • Erkély, terasz Erkély 13.00m2
  • Klíma igen
  • Szigetelt igen
  • Kábelszolgáltató T-come, One

Energetikai besorolás: A+

A+++
A++
A+
A
B
C
D
E
F
G
H
I

Az MBH Bank személyi kölcsön ajánlata

Fizetett hirdetés
1 millió Ft
6 évre
20 585 Ft/hó
THM: 14.5%
Részletek →
2 millió Ft
6 évre
41 169 Ft/hó
THM: 14.5%
Részletek →
3 millió Ft
6 évre
61 754 Ft/hó
THM: 14.5%
Részletek →

A tájékoztatás nem teljes körű és nem minősül ajánlattételnek.

Az ingatlan leírása

10 % FOGLALÓVAL LEKÖTHETŐ ÚJ ÉPÍTÉSŰ, ENERGIATAKARÉKOS LAKÁSOK! ÉRD-VÁROSKÖZPONTJÁBAN!


 


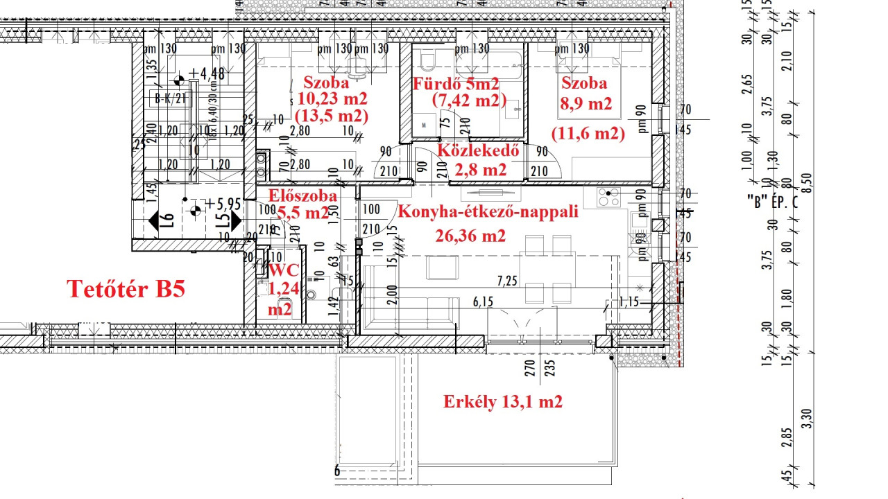
A TÁRSASHÁZI lakás 60 m2 hasznos lakóterületű (minimum 1,90-es belmagassággal számítva) a teljes alapterülete 69 m2 + 13,1 m2 erkély, 2 szoba (10,23 (13,5); 8,9 (11,6) m2) + nappali-konyha-étkező (26,4 m2), fürdőszoba, WC, előszoba, helyiségekből álló második emeleti (részben tetőtéri) lakás.


HŐSZIVATTYÚS HŰTÉS-FŰTÉS! RENDKÍVÜL JÓ TÖMEGKÖZLEKEDÉS (vasúti és buszmegálló), KÍVÁLÓ INFRASTRUKTÚRA! SAJÁT LAKÁSONKÉNTI FŐMÉRŐVEL MINDEN KÖZMŰSZOLGÁLTATÁSHOZ!


A hideg és meleg burkolatok (7.000 Ft/m2), belső falak színei, szaniterek, csaptelepek választhatók így a leendő új tulajdonos ízlésének megfelelően történek a befejezési munkák. A ház 30-as hőszigetelő téglából épül, amit 15 cm-es szigeteléssel burkolnak. A külső nyílászárók 6 légkamrás, 3 rétegű üvegezéssel ellátott, bukó-nyíló ajtók és ablakok, rejtett redőnytokokkal felszerelve elektromos mozgatásra is előkészítve (a roló és szúnyogháló nem tartozék).


A lakás fűtés és hűtés rendszerét levegő és víz teres, 6 kW-os, ARISTON márkájú elektromos hőszivattyú működteti majd (lakásonként saját készülék) padlófűtéssel, a nappaliban fan coil (klíma) készülékkel „H tarifa” áram szolgáltatással. A melegvízellátást falra szerelt ARISTON hőtároló készülék biztosítja.


Az ingatlan elhelyezkedésének köszönhetően remek adottságokkal rendelkezik. Iskola, óvoda, autóbusz megálló (amelynek járatai Bp. Etele térig közlekedik), Érd- Felső és Érd- Alsó vasúti megállók (végállomás Kelenföld és Déli p.u.), a mindennapi bevásárláshoz szükséges boltok, háziorvosi rendelő és gyógyszertár 5-10 perces könnyű sétával, az M6-os autópálya 6-os és 7-es főutakkal találkozó csomópontja 5 perc autózással elérhető.


A lakáshoz tartozó saját, teremgarázs parkoló vételára + 3 000 000 Ft, vagy felszíni parkoló 2 000 000 Ft, tároló + 2 000 0000 Ft (kivéve ahol a lakáson belül található) a lakás vételárán felül vásárolható.


Ha bármilyen kérdésed lenne az ingatlannal kapcsolatban, ne habozz felvenni velünk a kapcsolatot. Ügyfeleink bizalommal fordulhatnak hozzánk, hiszen készséggel állunk rendelkezésükre. Az ingatlan bemutatása mellett a mi célunk az, hogy segítsük megtalálni az ideális otthont. Akár készpénzből akár államilag támogatott vagy szabad piaci hitelt szeretnél felvenni a vásárláshoz, tanácsadó kollégánk díjmentes, banksemleges ügyintézéssel áll rendelkezésre. Igény esetén ügyvédi segítséget is ajánlunk a teljes ügymenet jogi lebonyolításához.


Jelenleg elérhető lakáskínálat:


Földszint:


A1-es lakás. 3 szoba + nappali, 81,4 m2 (+ 16 m2 terasz), kertkapcsolat ~50 m2. 99,9 Millió Ft (+ kert 5 Millió + garázs 3 Millió vagy nyílt parkoló 2 Millió)


B2-es lakás. 3 szoba + nappali, 81,4 m2 (+ 16 m2 terasz), kertkapcsolat ~250 m2. 99,9 Millió Ft (+ kert 5 Millió + garázs 3 Millió vagy nyílt parkoló 2 Millió)


Emelet:


A2-es lakás. 2 szoba + nappali, 62,51 m2 (+ 13,1 m2 erkély). 81,9 Millió Ft (+ garázs 3 Millió vagy nyílt parkoló 2 Millió)


A3-as lakás. 2 szoba + nappali, 45,61 m2 (+ 5,88 m2 erkély + 5 m2 tároló). 64,9 Millió Ft (+ garázs 3 Millió vagy nyílt parkoló 2 Millió + Tároló 2 Millió)


A4-es lakás. 2 szoba + nappali, 57,84 m2 (+13,1 m2 erkély). 75,9 Millió Ft (+ garázs 3 Millió vagy nyílt parkoló 2 Millió)


B2-es lakás. 2 szoba + nappali, 62,51 m2 (+ 13,1 m2 erkély). 81,9 Millió Ft (+ garázs 3 Millió vagy nyílt parkoló 2 Millió)


B3-as lakás. 2 szoba + nappali, 45,61 m2 (+ 5,88 m2 erkély + 5 m2 tároló). 64,9 Millió Ft (+ garázs 3 Millió vagy nyílt parkoló 2 Millió + Tároló 2 Millió)


B4-es lakás. 2 szoba + nappali, 57,84 m2 (+13,1 m2 erkély). 75,9 Millió Ft (+ garázs 3 Millió vagy nyílt parkoló 2 Millió)


Tetőtér:


A5-ös lakás. 2 szoba + nappali, nettó: 59,95 m2 bruttó: 68,5 m2 (+ 13,1 m2 erkély). 79,9 Millió Ft (+ garázs 3 Millió vagy nyílt parkoló 2 Millió + Tároló 2 Millió)


A6-os lakás. 2 szoba + nappali, nettó: 58,23 m2 bruttó: 69,6 m2 (+ 13,1 m2 erkély). 79,9 Millió Ft (+ garázs 3 Millió vagy nyílt parkoló 2 Millió + Tároló 2 Millió)


B5-ös lakás. 2 szoba + nappali, nettó: 59,95 m2 bruttó: 68,5 m2 (+ 13,1 m2 erkély). 79,9 Millió Ft (+ garázs 3 Millió vagy nyílt parkoló 2 Millió + Tároló 2 Millió)


B6-os lakás. 2 szoba + nappali, nettó: 58,23 m2 bruttó: 69,6 m2 (+ 13,1 m2 erkély). 79,9 Millió Ft (+ garázs 3 Millió vagy nyílt parkoló 2 Millió + Tároló 2 Millió)


A lakáshoz tartozó saját, teremgarázs parkoló vételára + 3 000 000 Ft, vagy felszíni parkoló 2 000 000 Ft, tároló + 2 000 0000 Ft (kivéve ahol a lakáson belül található) a lakás vételárán felül vásárolható.

Térkép

Ingatlan adásvétel ügyvédi díja
359 550 Ft
a hirdetésben szereplő ár alapján
  • A vételár 0,45%-a
  • Szerződéscsomag teljeskörű képviselettel
  • Ingyenes tulajdoni lap ellenőrzés
  • Az ÁFA-t már tartalmazza
Érdekel az ajánlat →
A tájékoztatás nem teljes körű és nem minősül ajánlattételnek. Minimum díj: 150 000 Ft, maximum díj: 600 000 Ft. A díj kizárólag lakóingatlan adásvételére vonatkozik.

A hirdető elérhetősége

Érdi Ingatlan Iroda

Verő Ákos
+36 70 679