Eladó Lakás
Hirdetéskód: 9300343

Otthon Plusz Ingatlanközvetítő Iroda

Felújításhoz személyi kölcsönt keres? Kalkuláljon itt! →
81.00 m2
ALAPTERÜLET
4
SZOBASZÁM
Tégla
ÉPÍTÉS
Hőszivattyú
FŰTÉS
  • Belső szintek 1
  • Kilátás Kertre néző
  • Ingatlan komfort Duplakomfortos
  • Parkolási lehetőség Udvari beálló
  • Építés éve 2026
  • Fűtés Hőszivattyú
  • Építőanyag Tégla
  • Erkély, terasz Terasz 16.00m2
  • Kertkapcsolat igen 76.00m2
  • Klíma igen
  • Szigetelt igen
  • Bútorozott nem
Energetikai besorolás: Nincs meghatározva
A+++
A++
A+
A
B
C
D
E
F
G
H
I

Az MBH Bank személyi kölcsön ajánlata

Fizetett hirdetés
1 millió Ft
6 évre
20 585 Ft/hó
THM: 14.5%
Részletek →
2 millió Ft
6 évre
41 169 Ft/hó
THM: 14.5%
Részletek →
3 millió Ft
6 évre
61 754 Ft/hó
THM: 14.5%
Részletek →

A tájékoztatás nem teljes körű és nem minősül ajánlattételnek.

Az ingatlan leírása

Hivatkozzon erre, kód: 5168


ÉRD VÁROS SZÍVÉBEN ENERGIATAKARÉKOS TÁRSASHÁZBAN PRÉMIUM KATEGÓRIÁS NAPPALI + 1-2-3 SZOBÁS LAKÁSOK LEKÖTHETŐK!


- KIVÁLÓ INFRASTRUKTÚRA


- TÁRSASHÁZI ALAPÍTÓ OKIRAT, ÖNÁLLÓ ALBETÉT


- HŐSZIVATTYÚS FŰTÉS PADLÓFŰTÉSSEL + 1 DB. FAN-COIL


- FÖLDSZINTI LAKÁSOKNÁL SAJÁT KERT ÉS TERASZ, TÖBBINÉL  ERKÉLY


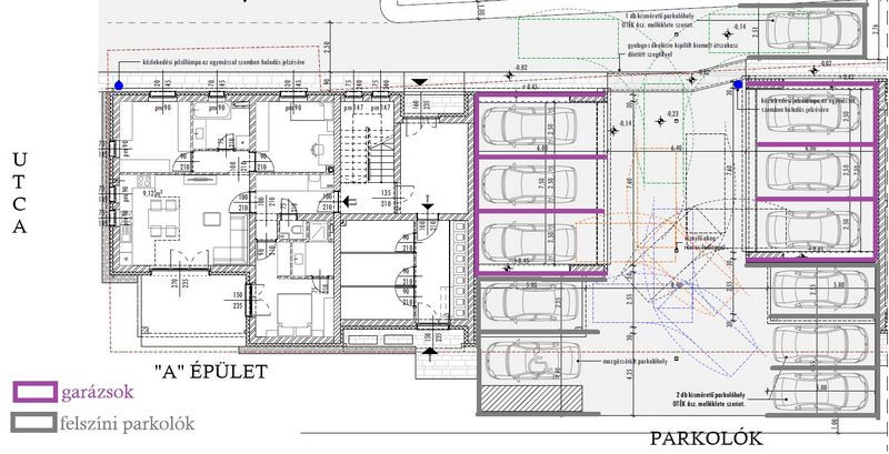
- TÁROLÓ, GARÁZS VAGY FELSZÍNI BEÁLLÓ (mindegyik lakáshoz kötelező vásárolni garázs 3mFt/db. vagy felszíni beálló 1.5mFt/db., tároló 2mFt/db.)


- MEGBÍZHATÓ, TŐKEERŐS BERUHÁZÓ, SOK ÉVES TAPASZTALAT


Érd Központban új építésű, összesen 12 lakásos (2 épületben "A" és "B" épület) ENERGIATAKARÉKOS társasházban nappali + 1-2-3 szobás lakások leköthetők igény szerinti befejezéssel!


A 2 db. földszinti lakás saját kertrésszel és terasszal, míg a többi lakás erkéllyel rendelkezik!


Céges építkezés, számos referencia ingatlan! A fotók között már eladott lakások képei is láthatók!


Várható átadás: 2027. május!


JELEN HIRDETÉSBEN SZEREPLŐ LAKÁSOK:


"A" ÉPÜLET:


FÖLDSZINT 1-es lakás / nappali + 3 szoba + 2 fürdő (81.4m2 + terasz + saját kert kb. 50m2 + parkoló), Ára: 99.9mFt + saját kert 5mFt +  parkoló: előszoba (6.48m2), 2 közlekedő (2.7m2, 1.2m2), nappali-konyha-étkező (25.2m2), wc (1.13m2), 2 fürdőszoba (3.94m2, 5.72m2), szoba (12.38m2), szoba/tároló (10.89m2), szoba (11.76m2), terasz (16m2). /Kód: 5168/


"B" ÉPÜLET:


FÖLDSZINT 1-es lakás / nappali + 3 szoba + 2 fürdő (81.4m2 + terasz + saját kert kb. 250m2 + parkoló) Ára: 99.9mFt + saját kert 5mFt + parkoló: előszoba (6.48m2), 2 közlekedő (2.7m2, 1.2m2), nappali-konyha-étkező (25.2m2), wc (1.13m2), 2 fürdőszoba (3.94m2, 5.72m2), szoba (12.38m2), szoba / tároló (10.89m2), szoba (11.76m2), terasz (16m2). /Kód: 5168/


TOVÁBBI LAKÁS KÍNÁLATOK A KÖVETKEZŐK:


"A" ÉPÜLET:


EMELET:


2-es lakás / nappali + 2 szoba (62.51m2 + erkély + parkoló), Ára: 81.9mFt + parkoló: előszoba (6.48m2), nappali-konyha-étkező (25.2m2), közlekedő (2.7m2), fürdőszoba + wc (5.48m2), szoba / tároló (11.76m2), szoba (10.89m2), erkély (13.09m2). /Kód: 5169/


3-as lakás: ELADVA!


4-es lakás / nappali + 2 szoba (57.84m2 + erkély + parkoló), Ára: 75.9mFt + parkoló: előszoba (5.58m2), közlekedő (2.65m2), nappali-konyha-étkező (23.94m2), fürdőszoba + wc (5.37m2), szoba (10.23m2), szoba / tároló (10.07m2), erkély (13.1m2). /Kód: 5171/


TETŐTÉR:


5-ös lakás / nappali + 2 szoba (nettó 75m2 / haszn. 59.95m2 + erkély + parkoló + tároló), Ára: 79.9mFt + parkoló + tároló 2mFt: előszoba (5.46m2), nappali-konyha-étkező (26.36m2), wc (1.24m2), fürdőszoba (4.96m2), közlekedő (2.8m2), 2 szoba (8.9m2, 10.23m2), erkély (13.09m2). /Kód: 5172/


6-os lakás / nappali + 2 szoba (nettó 75m2 / haszn. 58.23m2 + erkély + parkoló + tároló), Ára: 79.9mFt + parkoló + tároló 2mFt: előszoba (3.72m2), nappali-konyha-étkező (24m2), közlekedő (2.55m2), gardrób (4.76m2), wc (1.25m2), fürdőszoba (4.51m2), 2 szoba (8.75m2, 8.69m2), erkély (13.1m2). /Kód: 5173/


"B" ÉPÜLET:


EMELET:


2-es lakás / nappali + 2 szoba (62.51m2 + erkély + parkoló), Ára: 81.9mFt + parkoló: előszoba (6.48m2), nappali-konyha-étkező (25.2m2), közlekedő (2.7m2), fürdőszoba + wc (5.48m2), szoba / tároló (11.76m2), szoba (10.89m2), erkély (13.09m2). /Kód: 5169/


3-as lakás / nappali + 1 szoba (45.61m2 + erkély + parkoló + tároló), Ára: 64.9mFt + parkoló + tároló 2mFt: előszoba (3.05m2), nappali-konyha-étkező (23.76m2), közlekedő (1.4m2), fürdőszoba (4.95m2), wc (1.29m2), szoba (11.16m2), erkély (5.88m2). /Kód: 5170/


4-es lakás / nappali + 2 szoba (57.84m2 + erkély + parkoló), Ára: 75.9mFt + parkoló: előszoba (5.58m2), közlekedő (2.65m2), nappali-konyha-étkező (23.94m2), fürdőszoba + wc (5.37m2), szoba (10.23m2), szoba / tároló (10.07m2), erkély (13.1m2). /Kód: 5171/


TETŐTÉR:


5-ös lakás / nappali + 2 szoba (nettó 75m2 / haszn. 59.95m2 + erkély + parkoló + tároló), Ára: 79.9mFt + parkoló + tároló 2mFt: előszoba (5.46m2), nappali-konyha-étkező (26.36m2), wc (1.24m2), fürdőszoba (4.96m2), közlekedő (2.8m2), 2 szoba (8.9m2, 10.23m2), erkély (13.09m2). /Kód: 5172/


6-os lakás / nappali + 2 szoba (nettó 75m2 / haszn. 58.23m2 + erkély + parkoló + tároló), Ára: 79.9mFt + parkoló + tároló 2mFt: előszoba (3.72m2), nappali-konyha-étkező (24m2), közlekedő (2.55m2), gardrób (4.76m2), wc (1.25m2), fürdőszoba (4.51m2), 2 szoba (8.75m2, 8.69m2), erkély (13.1m2). /Kód: 5173/


Szerkezeti leírás: Beton alap. 30-as tégla főfalak + 15cm dryvit szigetelés. 10-es válaszfallapok. A külső nyílászárók műanyag szerkezetűek fehér színben, 3 rétegű üvegezéssel, 6 légkamrás, bukó-nyíló, bukó és fix kivitelben, beépített redőnytokkal, elektromos redőny előkészítéssel (redőny és szúnyogháló nincs az árban), kívül szinterezett alu ablakkönyöklők. A belső nyílászárók dekorfóliás ajtók. Szintek között beton födém (betongerenda + monolit, 2x3cm szigeteléssel), a zárófödém fa szerkezetű 30cm szigeteléssel. Cserép fedésű tető.


Az igény szerinti befejezésnek köszönhetően a hideg - meleg burkolatok 7000Ft / m2 árig választhatók.


Közművek: víz, villany, csatorna bekötve, lakásonként önálló mérőórákkal ellátva.


Fűtés: lakásonként 6Kw-os Immergas típusú hőszivattyús rendszer padlófűtésen keresztül minden helyiségben + fürdőben törülközőszárítós radiátor (elektromos fűtőpatronnal), illetve 1 db. magasoldalfali Fan-coil (hőszivattyúhoz csatlakoztatva), amely alkalmas egyaránt fűtésre és hűtésre is. 


Parkolás: lakásonként kötelező 1 db. parkoló megvásárlása (garázs 3mFt / db., felszíni parkoló 1.5mFt / db.), illetve 1 db. tároló 2mFt / db (kivéve, amelyik lakásnál lakáson belül található).


Megközelíthetőség és infrastruktúra kitűnő: A buszpályaudvar és a vasúti megállók 5 perc séta alatt elérhetők. Autóval az M0 autóút és az M7-es 10-15 perc. Iskolák, óvodák, és minden egyéb közintézmény, továbbá bevásárlási lehetőségek gyalogosan szintén 5-10 perc alatt elérhetők!


További hasonló ingatlanok találhatók még a kínálatunkban!


Szüksége van hitelre? SEGÍTÜNK!


Bankfüggetlen hitel tanácsadónk díjmentesen áll az Ön rendelkezésére! Keressen bizalommal!


A hirdetésben szereplő adatok, információk, képek, alaprajzok stb... tájékoztató jellegűek! Irodánk az esetleges elírásokért felelősséget nem tud vállalni! 


Tájékoztatjuk a Tisztelt Érdeklődőket, hogy az ingatlan hirdetésében szereplő telefonszám felhívásával Önök hozzájárulnak személyes adataik (név, telefonszám), a hirdetést feladó -Otthonplusz.hu Kft. - által a bizalmas kezeléshez és nyilvántartáshoz.

Térkép

Ingatlan adásvétel ügyvédi díja
449 550 Ft
a hirdetésben szereplő ár alapján
  • A vételár 0,45%-a
  • Szerződéscsomag teljeskörű képviselettel
  • Ingyenes tulajdoni lap ellenőrzés
  • Az ÁFA-t már tartalmazza
Érdekel az ajánlat →
A tájékoztatás nem teljes körű és nem minősül ajánlattételnek. Minimum díj: 150 000 Ft, maximum díj: 600 000 Ft. A díj kizárólag lakóingatlan adásvételére vonatkozik.

A hirdető elérhetősége

Otthon Plusz Ingatlanközvetítő Iroda

Bakó Norbert
+36 20 582