Eladó Lakás
Hirdetéskód: 9262548

INGATLAN NEXTRA

Felújításhoz személyi kölcsönt keres? Kalkuláljon itt! →
FIX 3% Program

Ez a hirdetés megfelelhet a FIX 3%-os programnak.
Tudj meg többet a részletekről itt.

140.00 m2
ALAPTERÜLET
3
SZOBASZÁM
nincs megadva
ÉPÍTÉS
nincs megadva
FŰTÉS
  • CSOK igénybe vehető nem
  • Tetőtér beépíthető nem
  • Klíma nem
  • Szigetelt nem
Energetikai besorolás: Nincs meghatározva
A+++
A++
A+
A
B
C
D
E
F
G
H
I

Az MBH Bank személyi kölcsön ajánlata

Fizetett hirdetés
1 millió Ft
6 évre
20 585 Ft/hó
THM: 14.5%
Részletek →
2 millió Ft
6 évre
41 169 Ft/hó
THM: 14.5%
Részletek →
3 millió Ft
6 évre
61 754 Ft/hó
THM: 14.5%
Részletek →

A tájékoztatás nem teljes körű és nem minősül ajánlattételnek.

Az ingatlan leírása

Egerszalók legkedveltebb utcájában eladó egy 140 m² igényesen felújított családi ház!


Kiváló elhelyezkedés – a település egyik legjobb utcájában

Tágas, világos terek – modern elosztás, nagy nappali és konyha-étkező egyben

Felújított műszaki állapot – új villany és vízhálózat

Tető: jó állapotú, zsindely fedés

Nyílászárók: fa és műanyag vegyesen


Három fűtési mód:

Gázkazán

Vegyes tüzelésű kazán

Hangulatos kandalló


A 976 m² gondozott telek igazi kincs:

Gyümölcsfák

Filagória

Szalonnasütő

Fúrt kút

Gyeprácsos beálló

Műhely és több tároló

Tágas garázs


Minden adott a kényelmes vidéki élethez – rendezett, hangulatos udvar, ahová jó hazaérkezni!


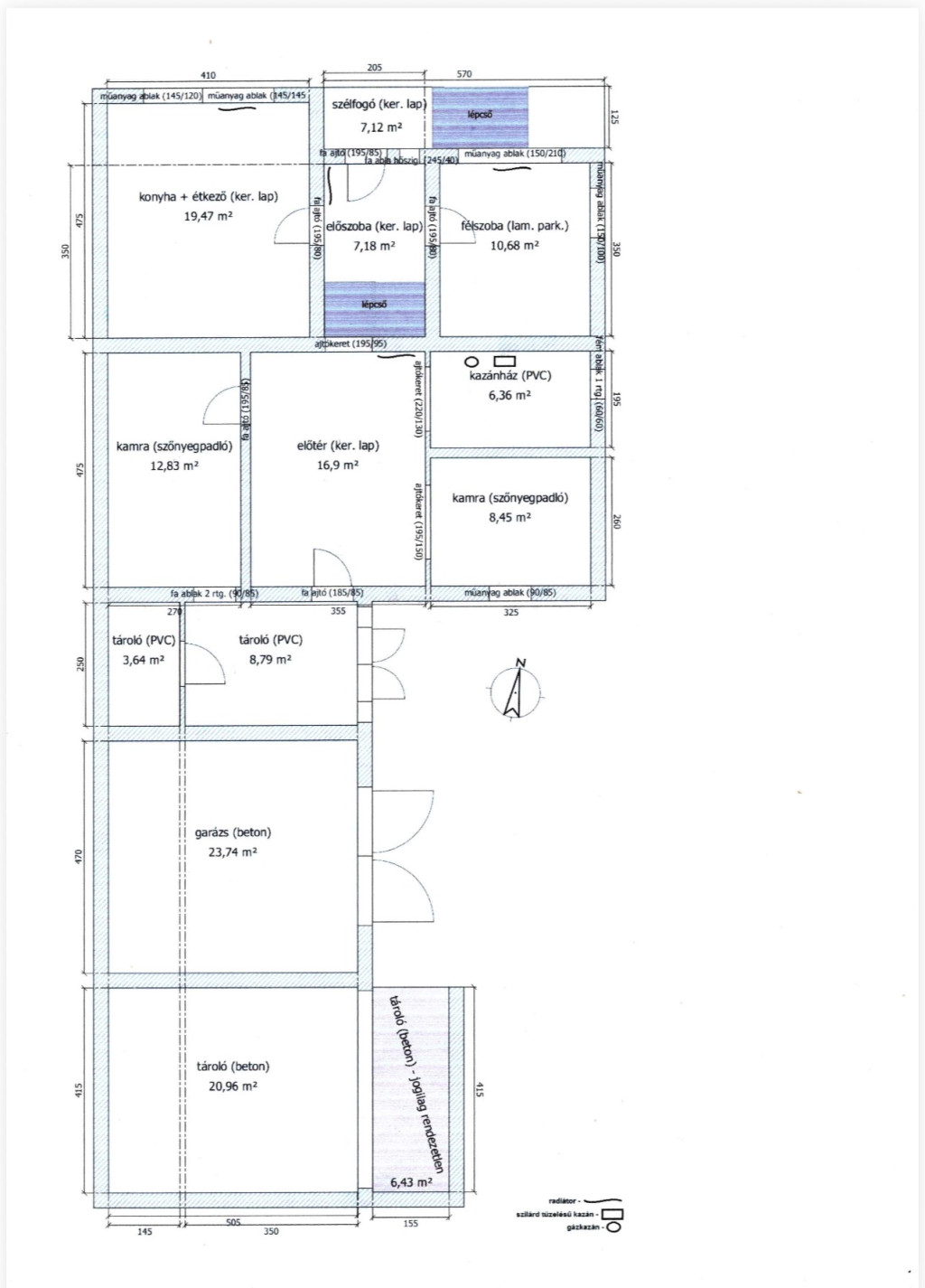
A ház helyiségei:


Földszint

• Konyha étkező: 19,47 m²

• Előtér: 16,9 m²

• Előszoba: 7,18 m²

• Félszoba: 10,68 m²

• Szélfogó: 7,12 m²

• Kamra 1: 12,83 m²

• Kamra 2: 8,45 m²

• Kazánház: 6,36 m²

• Tárolók: 3,64 m² 8,79 m²

• Garázs: 23,74 m²

• Beton tároló: 20,96 m²

• Világító rácsos tároló: 6,43 m²


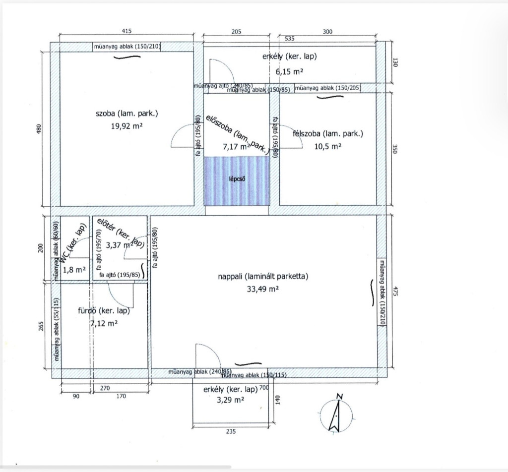
Emelet

• Tágas nappali: 33,49 m²

• Szoba: 19,92 m²

• Félszoba: 10,5 m²

• Előszoba: 7,17 m²

• Fürdőszoba: 7,12 m²

• Külön WC: 1,8 m²

• Erkélyek: 6,15 m² 3,29 m²


Tetőtér

• Szoba 1: 13,78 m²

• Szoba 2: 12,24 m²

• Kamra: 6,1 m²

• Közlekedő: 6,97 m²

• Zuhanyzó WC: 1,81 m²


Felújított, azonnal költözhető állapot

Többgenerációs család számára is ideális

Remek elrendezés


Egerszalók – csendes, mégis élhető, gyógyfürdő közelében, Eger vonzáskörzetében.


Ha egy tágas, felújított, jól felszerelt családi házat keresel Egerszalók legjobb részén – ne hagyd ki ezt a lehetőséget!


Térkép

A hirdető elérhetősége

INGATLAN NEXTRA

Annamária Cseh
+36 70 341