Eladó Lakás
Hirdetéskód: 9325508
Eger Kertész utca 25 - OTP Ingatlanpont Iroda
Felújításhoz személyi kölcsönt keres? Kalkuláljon itt! →
Ez a hirdetés megfelelhet a FIX 3%-os programnak.
Tudj meg többet a részletekről itt.
56.00 m2
ALAPTERÜLET2
SZOBASZÁMnincs megadva
ÉPÍTÉSGáz (konvektor)
FŰTÉS- CSOK igénybe vehető nem
- Tetőtér beépíthető nem
- Építés éve 1982
- Fűtés Gáz (konvektor)
- Klíma nem
- Szigetelt nem
A+++
A++
A+
A
B
C
D
E
F
G
H
I
Az ingatlan leírása
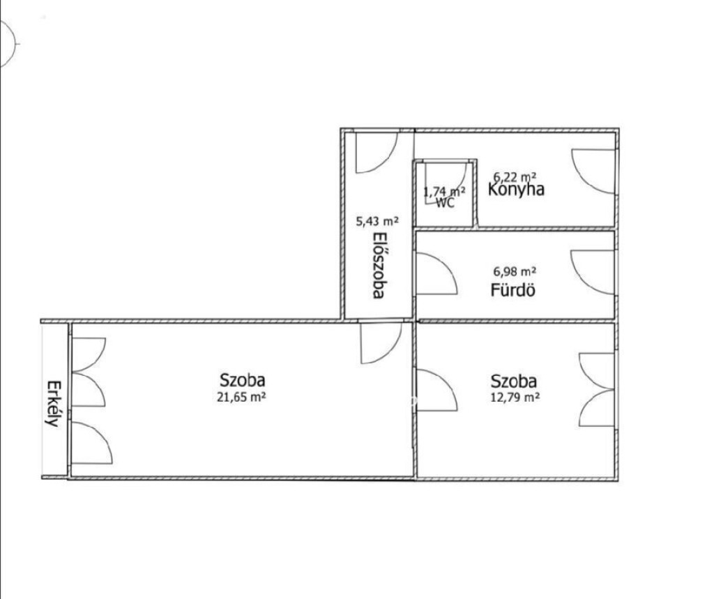
Kizárólag az OTP Ingatlanpont kínálatában kínálunk eladásra Eger Északi városrészén egy negyedik emeleti, erkélyes, 55 m2-es lakást, amely frekventált elhelyezkedésének köszönhetően ideális választás mind saját otthont keresők, mind befektetők számára.
Az ingatlan tégla falazatú, amely az elmúlt években külső szigetelést kapott, így kedvezőbb fenntartási költségeket biztosít, miközben a fűtésről gázkonvektorok gondoskodnak, a meleg víz ellátását pedig gázbojler biztosítja, ezáltal a rezsi jól szabályozható.
A lakás elrendezése praktikus, hiszen két szoba áll rendelkezésre, amelyek közül a nagyobb szoba közvetlen erkélykapcsolattal rendelkezik, így világos és kellemes életteret biztosít, míg mindkét helyiség szőnyegpadló borítású, a többi helyiség ? így a konyha, közlekedő és a vizes blokkok ? járólap burkolatot kapott, továbbá a fürdőszoba és a mellékhelyiség külön helyiségben található, amely a mindennapi kényelmet szolgálja.
Az ingatlan elhelyezkedése kiváló, hiszen az épület közvetlen közelében megtalálható a tömegközlekedés, üzletek, valamint mindössze 300 méteren belül óvoda, iskola, gyógyszertár és orvosi rendelő is elérhető, így minden szükséges intézmény könnyen megközelíthető, miközben a belváros is mindössze 15 perc sétával elérhető.
A lakás viszonylag rövid időn belül birtokba vehető, így új tulajdonosa hamar költözhet, és kiváló választás lehet fiatalok, első lakásvásárlók vagy akár befektetők számára is.
Ügyfeleink részére teljes körű, bankfüggetlen szolgáltatást biztosítunk, amely magában foglalja a személyre szabott hitelajánlatok készítését, valamint a teljes ügyintézés lebonyolítását, így a vásárlás folyamata biztonságosan és gördülékenyen valósul meg, a bemutatás pedig rugalmasan alakítható az érdeklődők igényeihez igazodva.
Az energetikai tanúsítvány készítése folyamatban van, amint rendelkezésre áll, úgy azzal a hirdetés frissítésre kerül.
Az ingatlan tégla falazatú, amely az elmúlt években külső szigetelést kapott, így kedvezőbb fenntartási költségeket biztosít, miközben a fűtésről gázkonvektorok gondoskodnak, a meleg víz ellátását pedig gázbojler biztosítja, ezáltal a rezsi jól szabályozható.
A lakás elrendezése praktikus, hiszen két szoba áll rendelkezésre, amelyek közül a nagyobb szoba közvetlen erkélykapcsolattal rendelkezik, így világos és kellemes életteret biztosít, míg mindkét helyiség szőnyegpadló borítású, a többi helyiség ? így a konyha, közlekedő és a vizes blokkok ? járólap burkolatot kapott, továbbá a fürdőszoba és a mellékhelyiség külön helyiségben található, amely a mindennapi kényelmet szolgálja.
Az ingatlan elhelyezkedése kiváló, hiszen az épület közvetlen közelében megtalálható a tömegközlekedés, üzletek, valamint mindössze 300 méteren belül óvoda, iskola, gyógyszertár és orvosi rendelő is elérhető, így minden szükséges intézmény könnyen megközelíthető, miközben a belváros is mindössze 15 perc sétával elérhető.
A lakás viszonylag rövid időn belül birtokba vehető, így új tulajdonosa hamar költözhet, és kiváló választás lehet fiatalok, első lakásvásárlók vagy akár befektetők számára is.
Ügyfeleink részére teljes körű, bankfüggetlen szolgáltatást biztosítunk, amely magában foglalja a személyre szabott hitelajánlatok készítését, valamint a teljes ügyintézés lebonyolítását, így a vásárlás folyamata biztonságosan és gördülékenyen valósul meg, a bemutatás pedig rugalmasan alakítható az érdeklődők igényeihez igazodva.
Az energetikai tanúsítvány készítése folyamatban van, amint rendelkezésre áll, úgy azzal a hirdetés frissítésre kerül.