Eladó Lakás
Hirdetéskód: 9244835
Eger Kertész utca 25 - OTP Ingatlanpont Iroda
Ez a hirdetés megfelelhet a FIX 3%-os programnak.
Tudj meg többet a részletekről itt.
80.00 m2
ALAPTERÜLET2
SZOBASZÁMnincs megadva
ÉPÍTÉSnincs megadva
FŰTÉS- CSOK igénybe vehető nem
- Tetőtér beépíthető nem
- Építés éve 1985
- Klíma nem
- Szigetelt nem
A+++
A++
A+
A
B
C
D
E
F
G
H
I
Az ingatlan leírása
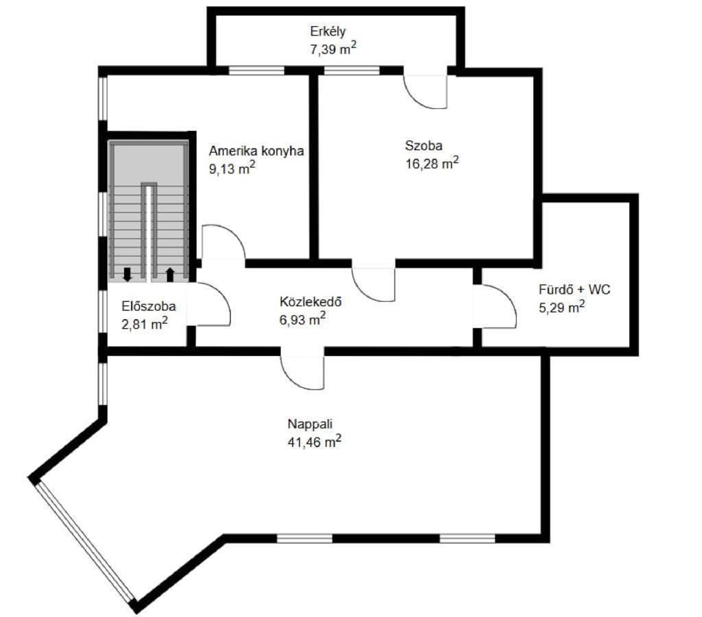
Eladó egy gyönyörűen felújított, 2 szobás, 80 négyzetméteres polgári lakás Eger történelmi belvárosának egyik legkedveltebb utcájában. A lakás egy rendezett, jó állapotú társasház első emeletén található, pár perc sétára a Dobó tértől, így a város minden fontos pontja könnyedén, akár gyalogosan is elérhető. Közelben található több nagy bevásárló központ, pékség, buszmegálló, gyógyszertár, kórház, uszoda, illetve az egyetem több épülete is.
Az ingatlan kiváló elosztású: egy tágas szoba, illetve egy óriási, 40 négyzetméteres nappali kapott benne helyet, mely igény szerint 2 szobává alakítható. A polgári jelleghez méltóan nagy belmagasság, vastag falak és elegáns ablakok jellemzik, amelyeket a felújítás során megőriztek, miközben a lakás minden részlete modern kényelmet kínál. A fűtésről korszerű gázcirkó rendszer gondoskodik, az alacsony rezsiköltségek és a kellemes hőérzet érdekében. A polgári érzetet tovább fokozzák az egyedileg gyártott tömör cseresznyefa ajtók és karnisok. A kifejezett biztonsárérzetről teljesen különálló lépcsőház gondoskodik.
A lakás teljes körű felújításon esett át, így a burkolatok, vezetékek, nyílászárók és gépészet mind újszerű állapotban vannak ? az új tulajdonosnak már csak be kell költöznie. Az ingatlan ideális választás lehet saját otthonnak, de kiváló befektetésként is szolgálhat, akár hosszú távú kiadásra, akár turisztikai célú hasznosításra, hiszen a környék rendkívül népszerű az ide látogatók körében.
Ha Ön egy elegáns, mégis praktikus városi otthont keres Eger szívében, ne hagyja ki ezt a páratlan lehetőséget. Jöjjön el, nézze meg személyesen, biztosak vagyunk benne, hogy első látásra beleszeret!
Az ingatlan kiváló elosztású: egy tágas szoba, illetve egy óriási, 40 négyzetméteres nappali kapott benne helyet, mely igény szerint 2 szobává alakítható. A polgári jelleghez méltóan nagy belmagasság, vastag falak és elegáns ablakok jellemzik, amelyeket a felújítás során megőriztek, miközben a lakás minden részlete modern kényelmet kínál. A fűtésről korszerű gázcirkó rendszer gondoskodik, az alacsony rezsiköltségek és a kellemes hőérzet érdekében. A polgári érzetet tovább fokozzák az egyedileg gyártott tömör cseresznyefa ajtók és karnisok. A kifejezett biztonsárérzetről teljesen különálló lépcsőház gondoskodik.
A lakás teljes körű felújításon esett át, így a burkolatok, vezetékek, nyílászárók és gépészet mind újszerű állapotban vannak ? az új tulajdonosnak már csak be kell költöznie. Az ingatlan ideális választás lehet saját otthonnak, de kiváló befektetésként is szolgálhat, akár hosszú távú kiadásra, akár turisztikai célú hasznosításra, hiszen a környék rendkívül népszerű az ide látogatók körében.
Ha Ön egy elegáns, mégis praktikus városi otthont keres Eger szívében, ne hagyja ki ezt a páratlan lehetőséget. Jöjjön el, nézze meg személyesen, biztosak vagyunk benne, hogy első látásra beleszeret!