Eladó Lakás
Hirdetéskód: 9310679
Eger Kertész utca 25 - OTP Ingatlanpont Iroda
Felújításhoz személyi kölcsönt keres? Kalkuláljon itt! →
Ez a hirdetés megfelelhet a FIX 3%-os programnak.
Tudj meg többet a részletekről itt.
56.00 m2
ALAPTERÜLET2
SZOBASZÁMnincs megadva
ÉPÍTÉSTávfűtés egyedi méréssel
FŰTÉS- CSOK igénybe vehető nem
- Tetőtér beépíthető nem
- Építés éve 1970
- Fűtés Távfűtés egyedi méréssel
- Klíma nem
- Szigetelt nem
A+++
A++
A+
A
B
C
D
E
F
G
H
I
Az ingatlan leírása
Heves megye, Eger 56 m2-es, felújított, erkélyes lakás eladó.
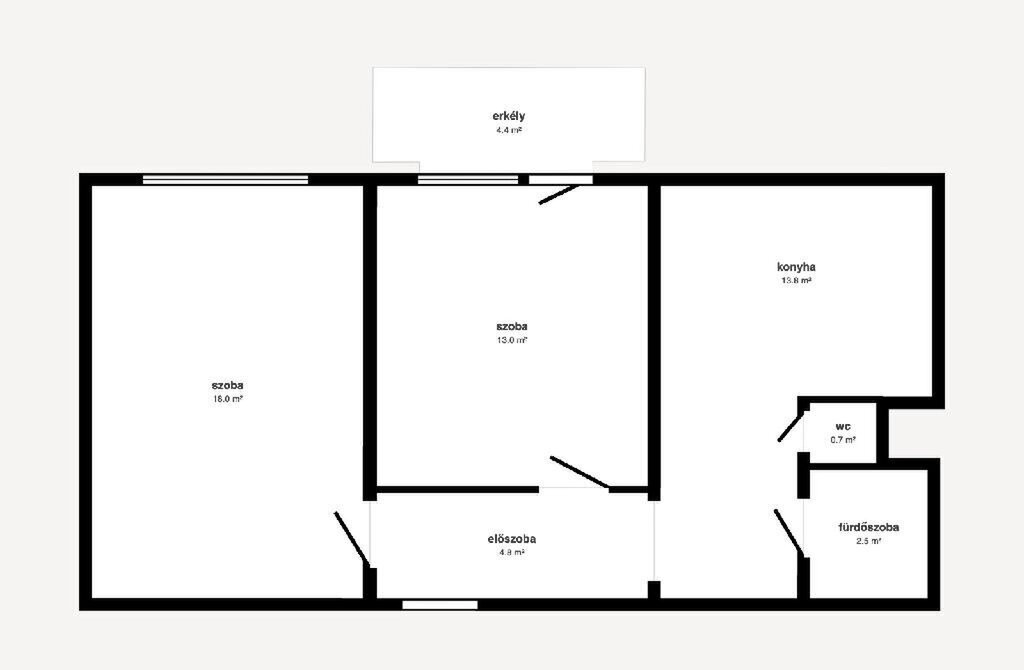
Az ingatlan a Felsővárosában, egy 4 szintes társasház 3. emeletén helyezkedik el; 2 szoba, 1 konyha, 1 előtér, 1 fürdőszoba, és 1 külön WC található benne, valamint 4,4 m2-es erkély tartozik hozzá.
Főbb jellemzők:
56 m² alapterület
Teljes felújítás
Újravezetékelt elektromos hálózat
Új burkolatok minden helyiségben
Műanyag nyílászárók, redőnnyel
Biztonsági bejárati ajtó
Új konyhabútor
Távfűtés egyedi méréssel
Klíma
4 m²-es erkély
Az ingatlan jó elosztású, világos, kedvező tájolású.
Épület:
Rendezett lépcsőház
Jó lakóközösség
Környék:
A közelben minden megtalálható:
üzletek
tömegközlekedés
óvoda, iskola
gyógyszertár, posta
Parkolás:
A ház előtt ingyenesen megoldható.
Az ingatlan tehermentes, azonnal költözhető.
Amennyiben a hirdetés felkeltette az érdeklődését, hívjon bizalommal!
OTP Banki hátterünknek köszönhetően finanszírozási igényekben (pl. Otthon Start Hitelprogram, Babaváró, Falusi CSOK, CSOK Plusz, Lakáshitel, Személyi kölcsön stb.), illetve biztosítások tekintetében is díjmentesen, soron kívüli ügyintézéssel segítem ügyfeleim! REFERENCIASZÁM: M324336
Az energetikai tanúsítvány készítése folyamatban van, amint rendelkezésre áll, úgy azzal a hirdetés frissítésre kerül.
Az ingatlan a Felsővárosában, egy 4 szintes társasház 3. emeletén helyezkedik el; 2 szoba, 1 konyha, 1 előtér, 1 fürdőszoba, és 1 külön WC található benne, valamint 4,4 m2-es erkély tartozik hozzá.
Főbb jellemzők:
56 m² alapterület
Teljes felújítás
Újravezetékelt elektromos hálózat
Új burkolatok minden helyiségben
Műanyag nyílászárók, redőnnyel
Biztonsági bejárati ajtó
Új konyhabútor
Távfűtés egyedi méréssel
Klíma
4 m²-es erkély
Az ingatlan jó elosztású, világos, kedvező tájolású.
Épület:
Rendezett lépcsőház
Jó lakóközösség
Környék:
A közelben minden megtalálható:
üzletek
tömegközlekedés
óvoda, iskola
gyógyszertár, posta
Parkolás:
A ház előtt ingyenesen megoldható.
Az ingatlan tehermentes, azonnal költözhető.
Amennyiben a hirdetés felkeltette az érdeklődését, hívjon bizalommal!
OTP Banki hátterünknek köszönhetően finanszírozási igényekben (pl. Otthon Start Hitelprogram, Babaváró, Falusi CSOK, CSOK Plusz, Lakáshitel, Személyi kölcsön stb.), illetve biztosítások tekintetében is díjmentesen, soron kívüli ügyintézéssel segítem ügyfeleim! REFERENCIASZÁM: M324336
Az energetikai tanúsítvány készítése folyamatban van, amint rendelkezésre áll, úgy azzal a hirdetés frissítésre kerül.