Eladó Lakás
Hirdetéskód: 9253339
Eger Kertész utca 25 - OTP Ingatlanpont Iroda
Ez a hirdetés megfelelhet a FIX 3%-os programnak.
Tudj meg többet a részletekről itt.
55.00 m2
ALAPTERÜLET2
SZOBASZÁMnincs megadva
ÉPÍTÉSnincs megadva
FŰTÉS- CSOK igénybe vehető nem
- Tetőtér beépíthető nem
- Építés éve 1980
- Klíma nem
- Szigetelt nem
A+++
A++
A+
A
B
C
D
E
F
G
H
I
Az ingatlan leírása
Kizárólag az OTP kínálatában
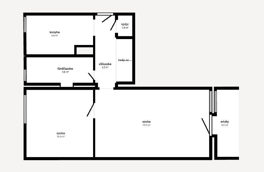
Eladó egy teljeskörűen felújított, 2 szobás, 55 nm-es erkélyes lakás Eger közkedvelt részén, a Mátyás király úton amely egy rendezett társasház 1. emeletén helyezkedik el. Az ingatlan praktikus elrendezésű: 2 szoba, konyha, közlekedő, fürdőszoba, WC, valamint egy kis kamra biztosítja a kényelmes mindennapokat. A hőszigetelt műanyag nyílászárók redőnnyel felszereltek, a hideg-, meleg burkolatok egyaránt jó minőségűek. A társasház anyagi helyzete rendezett, a lépcsőházi nyílászárók cseréje már megtörtént. A közös költség 16300 Ft, mely tartalmaz egy felújítási alapot is. Az ingatlan fűtéséről-, valamint a meleg vízről kazán gondoskodik radiátoros hőleadókon keresztül. Az ingatlan jó elhelyezkedésének, valamint elosztásának köszönhetően befektetőknek, fiatal pároknak, illetve családosoknak egyaránt ideális választás lehet. A lakás előtt található közvetlenül a buszmegálló, az iskola, óvoda, posta, boltok is egy 200 méteren belül elérhetők. Jöjjön és tekintsük meg együtt, ebben az ingatlanban nem fog csalódni. OTP Banki hátterünknek köszönhetően finanszírozási igényekben (pl. Otthon Start Program, Babaváró, Falusi CSOK, CSOK Plusz, Lakáshitel, Személyi kölcsön stb.), illetve biztosítások tekintetében is díjmentesen, soron kívüli ügyintézéssel segítem ügyfeleim! Az adásvételi szerződéshez igény esetén ügyvédet biztosítunk. Referenciaszám: M319379
Eladó egy teljeskörűen felújított, 2 szobás, 55 nm-es erkélyes lakás Eger közkedvelt részén, a Mátyás király úton amely egy rendezett társasház 1. emeletén helyezkedik el. Az ingatlan praktikus elrendezésű: 2 szoba, konyha, közlekedő, fürdőszoba, WC, valamint egy kis kamra biztosítja a kényelmes mindennapokat. A hőszigetelt műanyag nyílászárók redőnnyel felszereltek, a hideg-, meleg burkolatok egyaránt jó minőségűek. A társasház anyagi helyzete rendezett, a lépcsőházi nyílászárók cseréje már megtörtént. A közös költség 16300 Ft, mely tartalmaz egy felújítási alapot is. Az ingatlan fűtéséről-, valamint a meleg vízről kazán gondoskodik radiátoros hőleadókon keresztül. Az ingatlan jó elhelyezkedésének, valamint elosztásának köszönhetően befektetőknek, fiatal pároknak, illetve családosoknak egyaránt ideális választás lehet. A lakás előtt található közvetlenül a buszmegálló, az iskola, óvoda, posta, boltok is egy 200 méteren belül elérhetők. Jöjjön és tekintsük meg együtt, ebben az ingatlanban nem fog csalódni. OTP Banki hátterünknek köszönhetően finanszírozási igényekben (pl. Otthon Start Program, Babaváró, Falusi CSOK, CSOK Plusz, Lakáshitel, Személyi kölcsön stb.), illetve biztosítások tekintetében is díjmentesen, soron kívüli ügyintézéssel segítem ügyfeleim! Az adásvételi szerződéshez igény esetén ügyvédet biztosítunk. Referenciaszám: M319379