Eladó Lakás
Hirdetéskód: 9285232
Judit Homes
Felújításhoz személyi kölcsönt keres? Kalkuláljon itt! →
Ez a hirdetés megfelelhet a FIX 3%-os programnak.
Tudj meg többet a részletekről itt.
80.00 m2
ALAPTERÜLET4
SZOBASZÁMnincs megadva
ÉPÍTÉSEgyéb fűtés
FŰTÉS- CSOK igénybe vehető nem
- Tetőtér beépíthető nem
- Fűtés Egyéb fűtés
- Klíma nem
- Szigetelt nem
A+++
A++
A+
A
B
C
D
E
F
G
H
I
Az ingatlan leírása
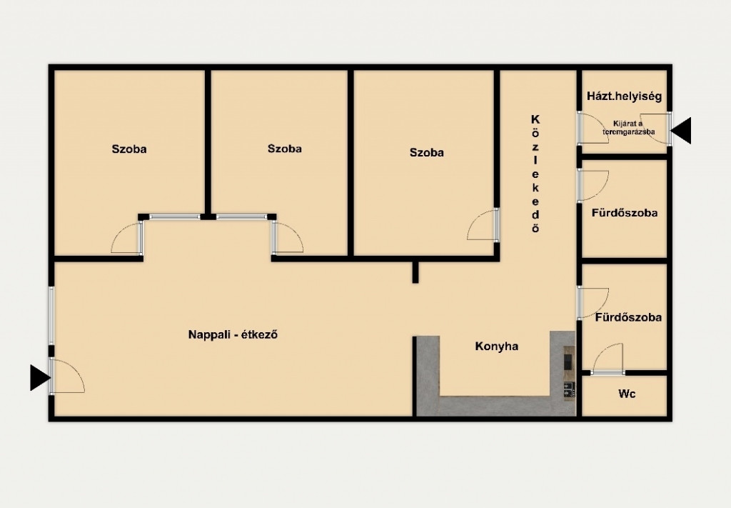
Eger történelmi belvárosának peremén, kiváló helyen kínálunk eladásra egy remek adottságokkal rendelkező 80 nm-es, földszinti, nappali + 3 szobás, felújított állapotban lévő, praktikus elosztással rendelkező társasházi lakást / apartmant!
Az eladó egri társasházi lakás / apartman főbb jellemzői:
- frekventált, belváros közeli elhelyezkedés
- tégla építésű, rendezett társasházban
- szigetelt homlokzat
- földszinti
- 80 nm-es lakótér
- nappali + 3 szoba, konyha-étkező-nappali, 1 különálló fürdőszoba és 1 különálló wc, illetve 1 fürdőszoba és wc egyben
- 2024-ben teljes műszaki és esztétikai felújításon átesett (víz-, villanyvezetékek cseréje, fűtési rendszer korszerűsítése, burkolatok cseréje, szaniterek cseréje, új beépített, gépesített konyhabútor)
- egyedi gázfűtés (cirkó) + a nappaliban hűtő-fűtő klíma
- műanyag nyílászárók redőnnyel ellátva
- esztétikus, igényes kialakítás
- beépített, gépesített konyhabútor, magas minőségű műszaki felszereltséggel
- új burkolatok, szaniterek a fürdőszobákban
- szobákban laminált parketta, a többi helyiségben hidegburkolat
- külön utcáról nyíló bejárat
- jelenleg apartmanként funkcionál, teljes felszereltséggel, meglévő foglalásokkal
- a belváros, bolt, piac, közintézmények, tömegközlekedés gyalog is elérhetőek
- a ház előtt parkolási lehetőség
- az ingatlanhoz tartozik egy teremgarázs, mely közvetlen az ingatlanból is megközelíthető, ennek ára + 7MFt
Ezt a kiváló elhelyezkedésű eladó egri lakást adottságaiból fakadóan szívből ajánljuk saját otthonnak is, de apartmanként való tovább üzemeltetése egy kiváló befektetési lehetőséget rejt magában! Az apartman teljesen új állapotban van a felújítás után, teljesen felszerelt és az irányár a teljes berendezést is tartalmazza! A leendő tulajdonos akár már a meglévő foglalásokkal is tovább üzemeltetheti, így akár már azonnal bevételt generálhat!
Amennyiben további információra lenne szükség, esetleg szeretné személyesen megtekinteni, forduljon hozzám telefonos elérhetőségemen!
További szolgáltatásaink:
- energetikai tanúsítvány
- ügyvédi ügyintézés, jogi képviselet
- díjmentes, bank semleges hitelügyintézés
- villamossági felülvizsgálat
Az energetikai tanúsítvány készítése folyamatban van, amint rendelkezésre áll, úgy azzal a hirdetés frissítésre kerül.
Az eladó egri társasházi lakás / apartman főbb jellemzői:
- frekventált, belváros közeli elhelyezkedés
- tégla építésű, rendezett társasházban
- szigetelt homlokzat
- földszinti
- 80 nm-es lakótér
- nappali + 3 szoba, konyha-étkező-nappali, 1 különálló fürdőszoba és 1 különálló wc, illetve 1 fürdőszoba és wc egyben
- 2024-ben teljes műszaki és esztétikai felújításon átesett (víz-, villanyvezetékek cseréje, fűtési rendszer korszerűsítése, burkolatok cseréje, szaniterek cseréje, új beépített, gépesített konyhabútor)
- egyedi gázfűtés (cirkó) + a nappaliban hűtő-fűtő klíma
- műanyag nyílászárók redőnnyel ellátva
- esztétikus, igényes kialakítás
- beépített, gépesített konyhabútor, magas minőségű műszaki felszereltséggel
- új burkolatok, szaniterek a fürdőszobákban
- szobákban laminált parketta, a többi helyiségben hidegburkolat
- külön utcáról nyíló bejárat
- jelenleg apartmanként funkcionál, teljes felszereltséggel, meglévő foglalásokkal
- a belváros, bolt, piac, közintézmények, tömegközlekedés gyalog is elérhetőek
- a ház előtt parkolási lehetőség
- az ingatlanhoz tartozik egy teremgarázs, mely közvetlen az ingatlanból is megközelíthető, ennek ára + 7MFt
Ezt a kiváló elhelyezkedésű eladó egri lakást adottságaiból fakadóan szívből ajánljuk saját otthonnak is, de apartmanként való tovább üzemeltetése egy kiváló befektetési lehetőséget rejt magában! Az apartman teljesen új állapotban van a felújítás után, teljesen felszerelt és az irányár a teljes berendezést is tartalmazza! A leendő tulajdonos akár már a meglévő foglalásokkal is tovább üzemeltetheti, így akár már azonnal bevételt generálhat!
Amennyiben további információra lenne szükség, esetleg szeretné személyesen megtekinteni, forduljon hozzám telefonos elérhetőségemen!
További szolgáltatásaink:
- energetikai tanúsítvány
- ügyvédi ügyintézés, jogi képviselet
- díjmentes, bank semleges hitelügyintézés
- villamossági felülvizsgálat
Az energetikai tanúsítvány készítése folyamatban van, amint rendelkezésre áll, úgy azzal a hirdetés frissítésre kerül.