Eladó Lakás
Hirdetéskód: 9244622
Eger Kertész utca 25 - OTP Ingatlanpont Iroda
Ez a hirdetés megfelelhet a FIX 3%-os programnak.
Tudj meg többet a részletekről itt.
49.00 m2
ALAPTERÜLET2
SZOBASZÁMnincs megadva
ÉPÍTÉSnincs megadva
FŰTÉS- CSOK igénybe vehető nem
- Tetőtér beépíthető nem
- Építés éve 2026
- Klíma nem
- Szigetelt nem
A+++
A++
A+
A
B
C
D
E
F
G
H
I
Az ingatlan leírása
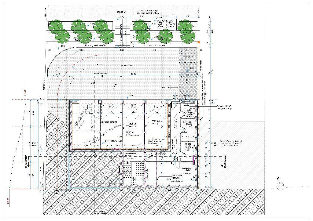
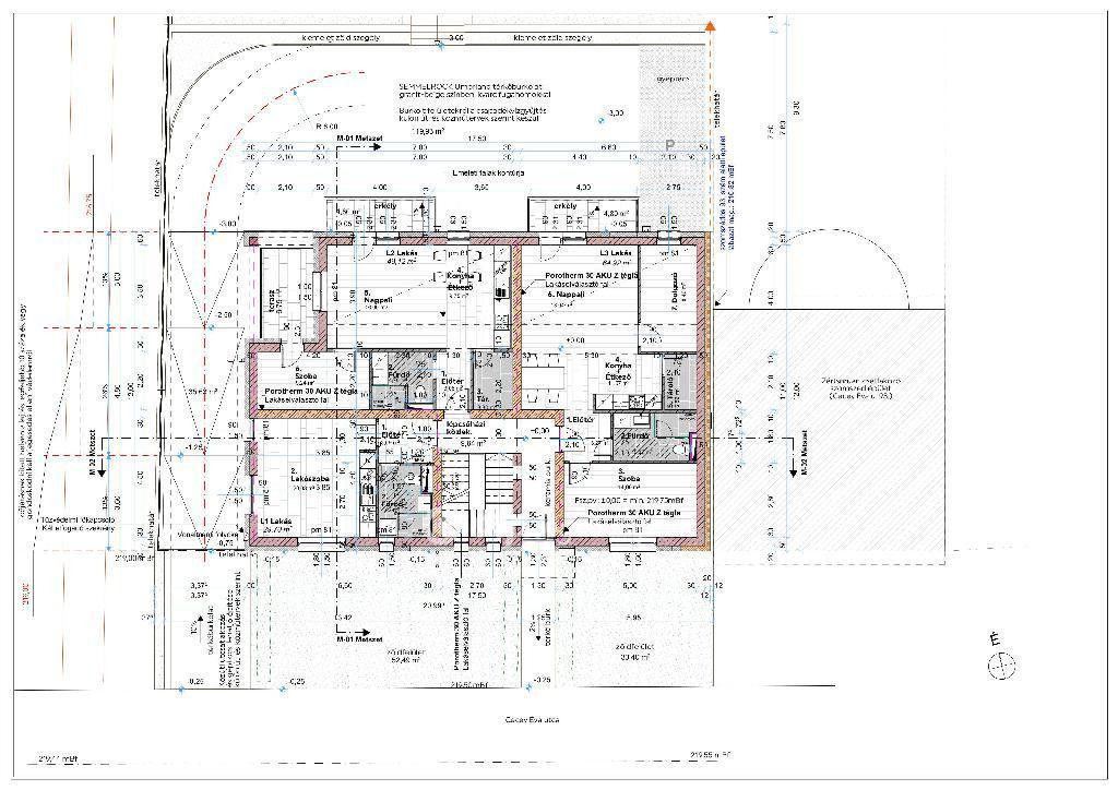
Eger, Almagyar város részben, örök panorámás telken lévő társasházban, 2 szobás, 49m2-es lakás eladó.
Frekventált helyen, új építésű, modern műszaki tartalommal készülő, 5 lakásos társasházban kínálok lakást és garázst.
Kiváló befektetésnek is.
Burkolatok és szaniterek belső kialakítása szabadon választható egyéni igényeknek megfelelően.
Szakaszos finanszírozás, egyedi ütemezés.
Kivitelezés magas színvonalú, referenciával.
Hőszivattyús padló-mennyezet fűtés-hűtés.
Energiatakarékos H tarifás.
Frekventált helyen, új építésű, modern műszaki tartalommal készülő, 5 lakásos társasházban kínálok lakást és garázst.
Kiváló befektetésnek is.
Burkolatok és szaniterek belső kialakítása szabadon választható egyéni igényeknek megfelelően.
Szakaszos finanszírozás, egyedi ütemezés.
Kivitelezés magas színvonalú, referenciával.
Hőszivattyús padló-mennyezet fűtés-hűtés.
Energiatakarékos H tarifás.