Eladó Lakás
Hirdetéskód: 9244619

Eger Kertész utca 25 - OTP Ingatlanpont Iroda

FIX 3% Program

Ez a hirdetés megfelelhet a FIX 3%-os programnak.
Tudj meg többet a részletekről itt.

65.00 m2
ALAPTERÜLET
2
SZOBASZÁM
nincs megadva
ÉPÍTÉS
nincs megadva
FŰTÉS
  • CSOK igénybe vehető nem
  • Tetőtér beépíthető nem
  • Építés éve 2026
  • Klíma nem
  • Szigetelt nem
Energetikai besorolás: Nincs meghatározva
A+++
A++
A+
A
B
C
D
E
F
G
H
I

Az ingatlan leírása

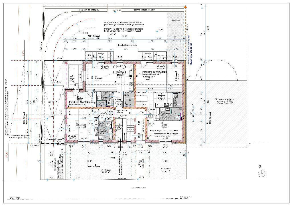
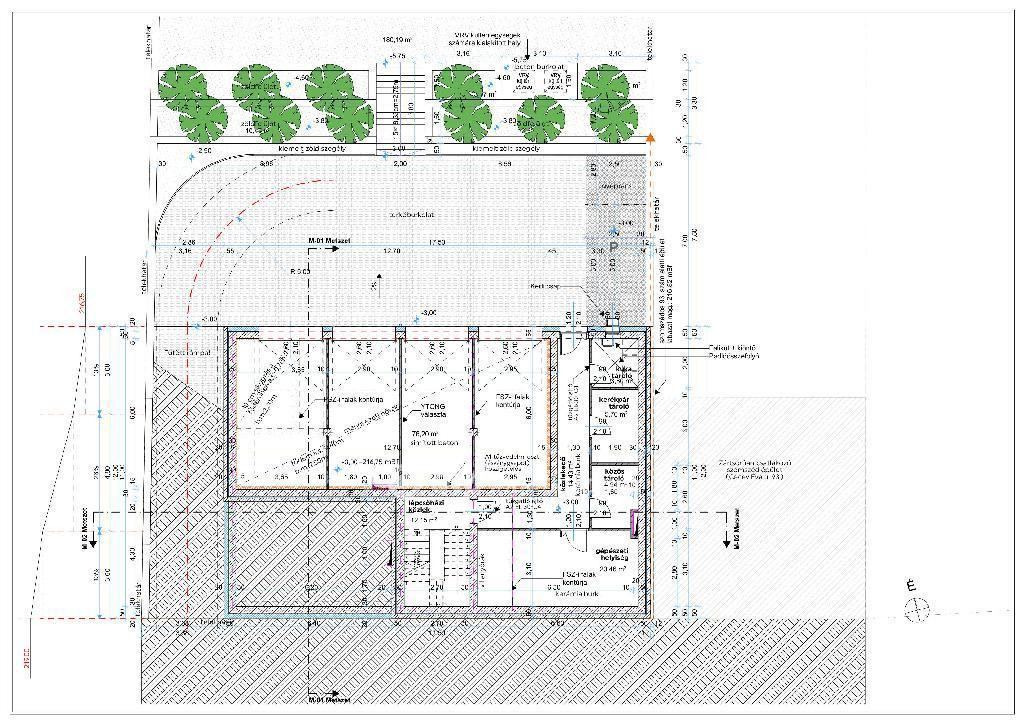
Eger, Almagyar város részben, örök panorámás telken, ÚJÉPÍTÉSŰ, 2+1 szobás, 65 m2-es lakás eladó! Frekventált helyen, új építésű, modern műszaki tartalommal készülő 5 lakásos társasházban kínálok lakást és garázst. Kiváló befektetésnek is. Burkolatok és szaniterek belső kialakítása szabadon választható, egyéni igényeknek megfelelően. Szakaszos finanszírozás, egyedi ütemezés. Magas színvonalú kivitelezés, referenciával. Hőszivattyús padló-mennyezet fűtés-hűtés. Energiatakarékos H tarifás.

Térkép

A hirdető elérhetősége

Eger Kertész utca 25 - OTP Ingatlanpont Iroda

Török Ferenc
+36 20 528