Eladó Lakás
Hirdetéskód: 9300718
Gyöngyös Kossuth Lajos utca 22 - OTP Ingatlanpont Iroda
Felújításhoz személyi kölcsönt keres? Kalkuláljon itt! →36.00 m2
ALAPTERÜLET1
SZOBASZÁMnincs megadva
ÉPÍTÉSnincs megadva
FŰTÉS- CSOK igénybe vehető nem
- Tetőtér beépíthető nem
- Építés éve 2027
- Klíma nem
- Szigetelt nem
A+++
A++
A+
A
B
C
D
E
F
G
H
I
Az ingatlan leírása
Modern, új építésű, teraszos lakás Eger belvárosának közvetlen közelében!
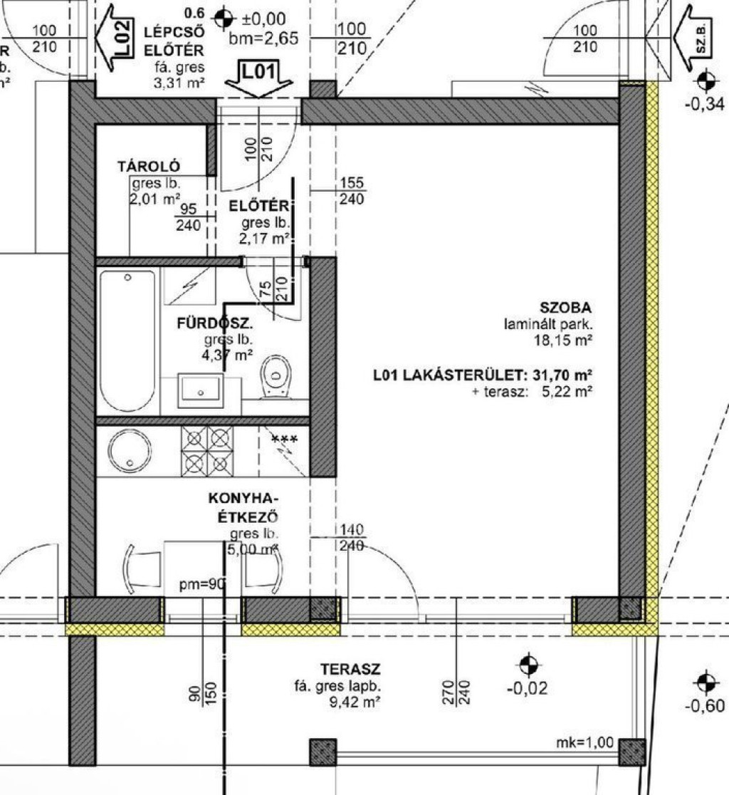
Eger frekventált részén, a közkedvelt Károlyváros városrészben kínálunk eladásra egy modern tervezésű, 36,4 m2-es, földszinti, teraszos új építésű lakást, amely 2026 második félévében kerül átadásra, így ideális választás lehet mind saját célú lakhatásra, mind értékálló belvárosi befektetésként.
Az ingatlan elosztása rendkívül praktikus és jól átgondolt: a világos nappali, étkező, konyha egység harmonikus, egybenyitott életteret biztosít, amely közvetlen kapcsolatban áll a terasszal, így a természetes fény és a kültéri tér élménye a mindennapok részévé válik. A kényelmes méretű fürdőszoba mellett a lakáson belül kialakított tárolóhelyiség is helyet kapott, amely jelentősen növeli a funkcionalitást és az élhetőséget.
A lokáció kiemelkedő: a belváros néhány perc alatt elérhető, a pláza mindössze 3 perc kényelmes sétára található, így a bevásárlás, ügyintézés vagy akár egy esti kikapcsolódás is gyorsan és egyszerűen megoldható. A környék infrastruktúrája kiváló, minden fontos szolgáltatás könnyen hozzáférhető.
A társasház magas műszaki tartalommal és kiemelt energetikai paraméterekkel épül:
- Wienerberger mesterház rendszerű szerkezet,
- Az előírásokat meghaladó hőszigetelés,
- Háromrétegű, hőszigetelt üvegezésű műanyag nyílászárók elektromos árnyékolóval,
- Minőségi olasz és spanyol burkolatok,
- Teljes gépészeti felszereléssel ellátott beépített konyha.
A korszerű mennyezetfűtés -hűtés rendszer hőszivattyús, illetve kiegészítő gázüzemű Vaillant berendezésekkel, időjáráskövető vezérléssel működik, amely egész évben optimális hőérzetet és gazdaságos fenntarthatóságot biztosít.
A lakásokhoz opcionálisan garázs, fedett autóbeálló, valamint normál felszíni autóbeálló vásárlási lehetőség is biztosított, amelyek ára nem tartalmazza a meghirdetett lakás vételárát, így ezek külön, az ingatlan árán felül választhatóm, kiegészítőként érhetők el a vevők számára.
Irodánk teljes körű, bankfüggetlen finanszírozási ügyintézéssel áll rendelkezésére, így segítünk megtalálni az Ön számára legkedvezőbb hitel- és támogatási konstrukciót.
További információért, alaprajzért és részletes műszaki leírásért keressen bizalommal, a tájékoztatás és a megtekintés rugalmasan biztosított!
Eger frekventált részén, a közkedvelt Károlyváros városrészben kínálunk eladásra egy modern tervezésű, 36,4 m2-es, földszinti, teraszos új építésű lakást, amely 2026 második félévében kerül átadásra, így ideális választás lehet mind saját célú lakhatásra, mind értékálló belvárosi befektetésként.
Az ingatlan elosztása rendkívül praktikus és jól átgondolt: a világos nappali, étkező, konyha egység harmonikus, egybenyitott életteret biztosít, amely közvetlen kapcsolatban áll a terasszal, így a természetes fény és a kültéri tér élménye a mindennapok részévé válik. A kényelmes méretű fürdőszoba mellett a lakáson belül kialakított tárolóhelyiség is helyet kapott, amely jelentősen növeli a funkcionalitást és az élhetőséget.
A lokáció kiemelkedő: a belváros néhány perc alatt elérhető, a pláza mindössze 3 perc kényelmes sétára található, így a bevásárlás, ügyintézés vagy akár egy esti kikapcsolódás is gyorsan és egyszerűen megoldható. A környék infrastruktúrája kiváló, minden fontos szolgáltatás könnyen hozzáférhető.
A társasház magas műszaki tartalommal és kiemelt energetikai paraméterekkel épül:
- Wienerberger mesterház rendszerű szerkezet,
- Az előírásokat meghaladó hőszigetelés,
- Háromrétegű, hőszigetelt üvegezésű műanyag nyílászárók elektromos árnyékolóval,
- Minőségi olasz és spanyol burkolatok,
- Teljes gépészeti felszereléssel ellátott beépített konyha.
A korszerű mennyezetfűtés -hűtés rendszer hőszivattyús, illetve kiegészítő gázüzemű Vaillant berendezésekkel, időjáráskövető vezérléssel működik, amely egész évben optimális hőérzetet és gazdaságos fenntarthatóságot biztosít.
A lakásokhoz opcionálisan garázs, fedett autóbeálló, valamint normál felszíni autóbeálló vásárlási lehetőség is biztosított, amelyek ára nem tartalmazza a meghirdetett lakás vételárát, így ezek külön, az ingatlan árán felül választhatóm, kiegészítőként érhetők el a vevők számára.
Irodánk teljes körű, bankfüggetlen finanszírozási ügyintézéssel áll rendelkezésére, így segítünk megtalálni az Ön számára legkedvezőbb hitel- és támogatási konstrukciót.
További információért, alaprajzért és részletes műszaki leírásért keressen bizalommal, a tájékoztatás és a megtekintés rugalmasan biztosított!