Eladó Lakás
Hirdetéskód: 9288036
Gyöngyös Kossuth Lajos utca 22 - OTP Ingatlanpont Iroda
Felújításhoz személyi kölcsönt keres? Kalkuláljon itt! →
Ez a hirdetés megfelelhet a FIX 3%-os programnak.
Tudj meg többet a részletekről itt.
77.00 m2
ALAPTERÜLET3
SZOBASZÁMnincs megadva
ÉPÍTÉSEgyéb fűtés
FŰTÉS- CSOK igénybe vehető nem
- Tetőtér beépíthető nem
- Építés éve 2027
- Fűtés Egyéb fűtés
- Klíma nem
- Szigetelt nem
A+++
A++
A+
A
B
C
D
E
F
G
H
I
Az ingatlan leírása
Modern, új építésű, teraszos lakás Eger belvárosának közvetlen közelében - Eger, Károlyváros
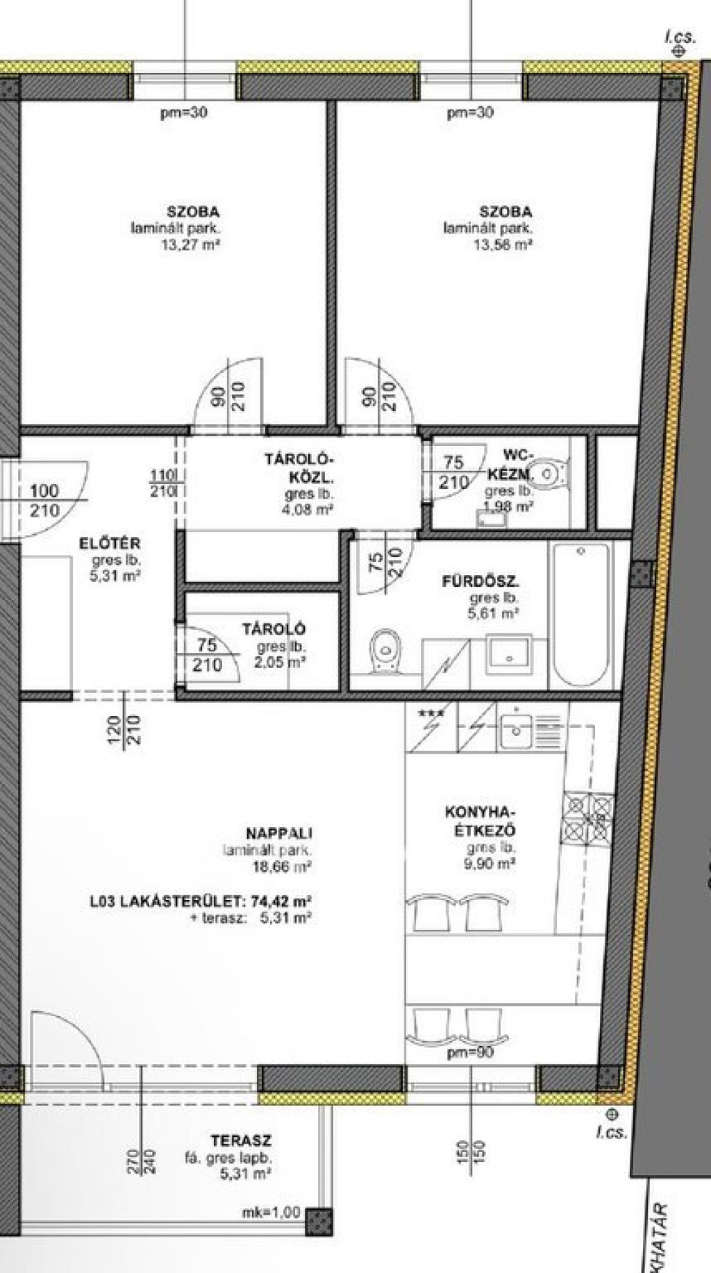
Eger frekventált részén, a közkedvelt Károlyváros városrészben kínálunk eladásra egy modern tervezésű, első emeleti, 77,1 m2-es, teraszos új építésű lakást, amely 2026 második félévében kerül átadásra, így ideális választás lehet mind saját célú lakhatásra, mind pedig értékálló, belvárosi befektetésként.
Az ingatlan elosztása rendkívül praktikus és jól átgondolt: a tágas nappali külön étkező -konyha kapcsolattal biztosít kényelmes, családbarát életteret, míg a két önálló hálószoba nyugodt, intim pihenést garantál. A lakás helyiségei: nappali, 2 szoba, étkező, konyha, fürdőszoba, külön WC és tároló, amely jelentősen növeli a funkcionalitást és a mindennapi komfortérzetet. A nappali közvetlen kapcsolatban áll a terasszal, így a természetes fény és a kültéri tér élménye a lakás szerves részévé válik.
A lokáció kiemelkedő: a belváros néhány perc alatt elérhető, a bevásárlóközpont mindössze 3 perc kényelmes sétára található, így a bevásárlás, ügyintézés vagy akár egy esti kikapcsolódás is gyorsan és egyszerűen megoldható. A környék infrastruktúrája kiváló, minden fontos szolgáltatás könnyen hozzáférhető.
- A társasház magas műszaki tartalommal és kiemelt energetikai paraméterekkel épül:
- Wienerberger mesterház rendszerű szerkezet,
- Az előírásokat meghaladó hőszigetelés,
- Háromrétegű, hőszigetelt üvegezésű műanyag nyílászárók elektromos árnyékolóval,
- Minőségi olasz és spanyol burkolatok,
- Teljes gépészeti felszereléssel ellátott beépített konyha.
A korszerű mennyezetfűtés - hűtés rendszer hőszivattyús, illetve kiegészítő gázüzemű Vaillant berendezésekkel, időjáráskövető vezérléssel működik, amely egész évben optimális hőérzetet és gazdaságos fenntarthatóságot biztosít.
A lakáshoz opcionálisan garázs, fedett autóbeálló, valamint normál felszíni autóbeálló vásárlási lehetőség is biztosított, amelyek ára nem tartalmazza a meghirdetett lakás vételárát, így ezek külön, az ingatlan árán felül választható kiegészítőként érhetők el.
Irodánk teljes körű, bankfüggetlen finanszírozási ügyintézéssel áll rendelkezésére, így segítünk megtalálni az Ön számára legkedvezőbb hitel- és támogatási konstrukciót.
További információért, alaprajzért és részletes műszaki leírásért keressen bizalommal, a tájékoztatás és a megtekintés rugalmasan biztosított!
Eger frekventált részén, a közkedvelt Károlyváros városrészben kínálunk eladásra egy modern tervezésű, első emeleti, 77,1 m2-es, teraszos új építésű lakást, amely 2026 második félévében kerül átadásra, így ideális választás lehet mind saját célú lakhatásra, mind pedig értékálló, belvárosi befektetésként.
Az ingatlan elosztása rendkívül praktikus és jól átgondolt: a tágas nappali külön étkező -konyha kapcsolattal biztosít kényelmes, családbarát életteret, míg a két önálló hálószoba nyugodt, intim pihenést garantál. A lakás helyiségei: nappali, 2 szoba, étkező, konyha, fürdőszoba, külön WC és tároló, amely jelentősen növeli a funkcionalitást és a mindennapi komfortérzetet. A nappali közvetlen kapcsolatban áll a terasszal, így a természetes fény és a kültéri tér élménye a lakás szerves részévé válik.
A lokáció kiemelkedő: a belváros néhány perc alatt elérhető, a bevásárlóközpont mindössze 3 perc kényelmes sétára található, így a bevásárlás, ügyintézés vagy akár egy esti kikapcsolódás is gyorsan és egyszerűen megoldható. A környék infrastruktúrája kiváló, minden fontos szolgáltatás könnyen hozzáférhető.
- A társasház magas műszaki tartalommal és kiemelt energetikai paraméterekkel épül:
- Wienerberger mesterház rendszerű szerkezet,
- Az előírásokat meghaladó hőszigetelés,
- Háromrétegű, hőszigetelt üvegezésű műanyag nyílászárók elektromos árnyékolóval,
- Minőségi olasz és spanyol burkolatok,
- Teljes gépészeti felszereléssel ellátott beépített konyha.
A korszerű mennyezetfűtés - hűtés rendszer hőszivattyús, illetve kiegészítő gázüzemű Vaillant berendezésekkel, időjáráskövető vezérléssel működik, amely egész évben optimális hőérzetet és gazdaságos fenntarthatóságot biztosít.
A lakáshoz opcionálisan garázs, fedett autóbeálló, valamint normál felszíni autóbeálló vásárlási lehetőség is biztosított, amelyek ára nem tartalmazza a meghirdetett lakás vételárát, így ezek külön, az ingatlan árán felül választható kiegészítőként érhetők el.
Irodánk teljes körű, bankfüggetlen finanszírozási ügyintézéssel áll rendelkezésére, így segítünk megtalálni az Ön számára legkedvezőbb hitel- és támogatási konstrukciót.
További információért, alaprajzért és részletes műszaki leírásért keressen bizalommal, a tájékoztatás és a megtekintés rugalmasan biztosított!