Eladó Lakás
Hirdetéskód: 9304021
Magyar Ingatlanközvetítők Országos Szövetsége
Felújításhoz személyi kölcsönt keres? Kalkuláljon itt! →
Ez a hirdetés megfelelhet a FIX 3%-os programnak.
Tudj meg többet a részletekről itt.
49.00 m2
ALAPTERÜLET2
SZOBASZÁMnincs megadva
ÉPÍTÉSTávfűtés egyedi méréssel
FŰTÉS- CSOK igénybe vehető nem
- Tetőtér beépíthető nem
- Építés éve 1963
- Fűtés Távfűtés egyedi méréssel
- Klíma nem
- Szigetelt nem
A+++
A++
A+
A
B
C
D
E
F
G
H
I
Az ingatlan leírása
KÜLÖNLEGES HARMÓNIA – IGÉNYES KIALAKÍTÁS - A BELVÁROS SZÍVÉBEN
Dunaújváros belvárosának egyik legkedveltebb részén, a Bartók Béla téren, a Bartók Színház közvetlen szomszédságában eladó egy 2. emeleti, 49 m²-es, téglaépítésű, világos, 2 külön nyíló szobás lakás, rendezett, zöld környezetre néző ablakokkal, D-Ny-i és É-Ny-i tájolással.
Az ingatlan kiváló választás első otthonnak, fiatal pároknak, egyedülállóknak, valamint befektetésnek, mivel akár azonnal bérbe adható.
A LAKÁSRÓL
A lakást lakberendező segítségével újították meg, a bent maradó bútorok és új berendezések harmonikus egységet alkotnak. Ebben a jelenlegi formájában még nem lakta senki.
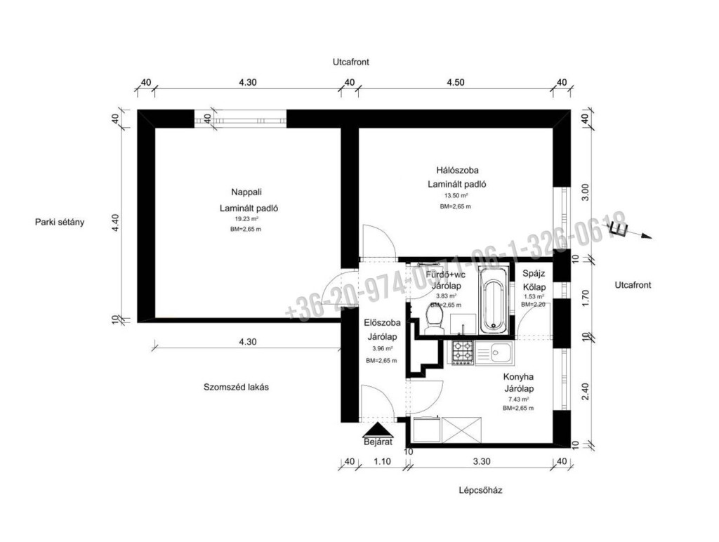
Helyiségek: előszoba, külön konyha kamrával, nappali-étkező, hálószoba, kádas fürdőszoba WC-vel.
A konyha megújult, és 2 fő kényelmes étkezésére is alkalmas.
Műszaki tartalom:
•több ponton záródó acél biztonsági ajtó
•műanyag nyílászárók, redőny, szúnyogháló, reluxa
•felújított beltéri ajtók, új kilincsek
•laminált padló a szobákban, hidegburkolat a többi helyiségben
•távfűtés, hőmennyiségmérőkkel és termosztátokkal
•gáztűzhely, melegvíz: gázbojler
•gázvezeték felújítva (2 éve), kémény bélelve (FURANFLEX)
•elektromos hálózat korszerűsítve (2 éve), új dugaljak és világítások
Klíma igény szerint megoldható.
Külön mérőórák: víz, villany, gáz
Közös költség: 12.900 Ft/hó
A TÁRSASHÁZRÓL
Rendezett, tiszta, jogilag rendezett társasház, 13 lakással, barátságos lakóközösséggel.
Minden lakáshoz pinceszinti tároló tartozik.
KÖRNYÉK
Kiemelten frekventált elhelyezkedés: pár perc sétára elérhető egyetem, mozi, kormányablak, piac, buszpályaudvar, kórház, gyógyszertár, bankok, éttermek, uszoda, Duna-parti sétány és minden belvárosi szolgáltatás. A környék közbiztonsága kiváló, a városban ingyenes parkolás biztosított.
A lakás tehermentes és azonnal költözhető.
A vételár része a konyhabútor, a fürdőszobai szaniterek, valamint a mennyezeti világítótestek. A teljes bútorzat és dekoráció külön megállapodással megvásárolható.
Nézze meg a lakásról készült videót is!
Jöjjön el, nézze meg személyesen – élőben még vonzóbb!
Dunaújváros belvárosának egyik legkedveltebb részén, a Bartók Béla téren, a Bartók Színház közvetlen szomszédságában eladó egy 2. emeleti, 49 m²-es, téglaépítésű, világos, 2 külön nyíló szobás lakás, rendezett, zöld környezetre néző ablakokkal, D-Ny-i és É-Ny-i tájolással.
Az ingatlan kiváló választás első otthonnak, fiatal pároknak, egyedülállóknak, valamint befektetésnek, mivel akár azonnal bérbe adható.
A LAKÁSRÓL
A lakást lakberendező segítségével újították meg, a bent maradó bútorok és új berendezések harmonikus egységet alkotnak. Ebben a jelenlegi formájában még nem lakta senki.
Helyiségek: előszoba, külön konyha kamrával, nappali-étkező, hálószoba, kádas fürdőszoba WC-vel.
A konyha megújult, és 2 fő kényelmes étkezésére is alkalmas.
Műszaki tartalom:
•több ponton záródó acél biztonsági ajtó
•műanyag nyílászárók, redőny, szúnyogháló, reluxa
•felújított beltéri ajtók, új kilincsek
•laminált padló a szobákban, hidegburkolat a többi helyiségben
•távfűtés, hőmennyiségmérőkkel és termosztátokkal
•gáztűzhely, melegvíz: gázbojler
•gázvezeték felújítva (2 éve), kémény bélelve (FURANFLEX)
•elektromos hálózat korszerűsítve (2 éve), új dugaljak és világítások
Klíma igény szerint megoldható.
Külön mérőórák: víz, villany, gáz
Közös költség: 12.900 Ft/hó
A TÁRSASHÁZRÓL
Rendezett, tiszta, jogilag rendezett társasház, 13 lakással, barátságos lakóközösséggel.
Minden lakáshoz pinceszinti tároló tartozik.
KÖRNYÉK
Kiemelten frekventált elhelyezkedés: pár perc sétára elérhető egyetem, mozi, kormányablak, piac, buszpályaudvar, kórház, gyógyszertár, bankok, éttermek, uszoda, Duna-parti sétány és minden belvárosi szolgáltatás. A környék közbiztonsága kiváló, a városban ingyenes parkolás biztosított.
A lakás tehermentes és azonnal költözhető.
A vételár része a konyhabútor, a fürdőszobai szaniterek, valamint a mennyezeti világítótestek. A teljes bútorzat és dekoráció külön megállapodással megvásárolható.
Nézze meg a lakásról készült videót is!
Jöjjön el, nézze meg személyesen – élőben még vonzóbb!