Eladó Lakás
Hirdetéskód: 9258900
GDN Ingatlanhálózat - Best Sellers
Felújításhoz személyi kölcsönt keres? Kalkuláljon itt! →
Ez a hirdetés megfelelhet a FIX 3%-os programnak.
Tudj meg többet a részletekről itt.
60.00 m2
ALAPTERÜLET3
SZOBASZÁMnincs megadva
ÉPÍTÉSnincs megadva
FŰTÉS- CSOK igénybe vehető nem
- Tetőtér beépíthető nem
- Klíma nem
- Szigetelt nem
A+++
A++
A+
A
B
C
D
E
F
G
H
I
Az ingatlan leírása
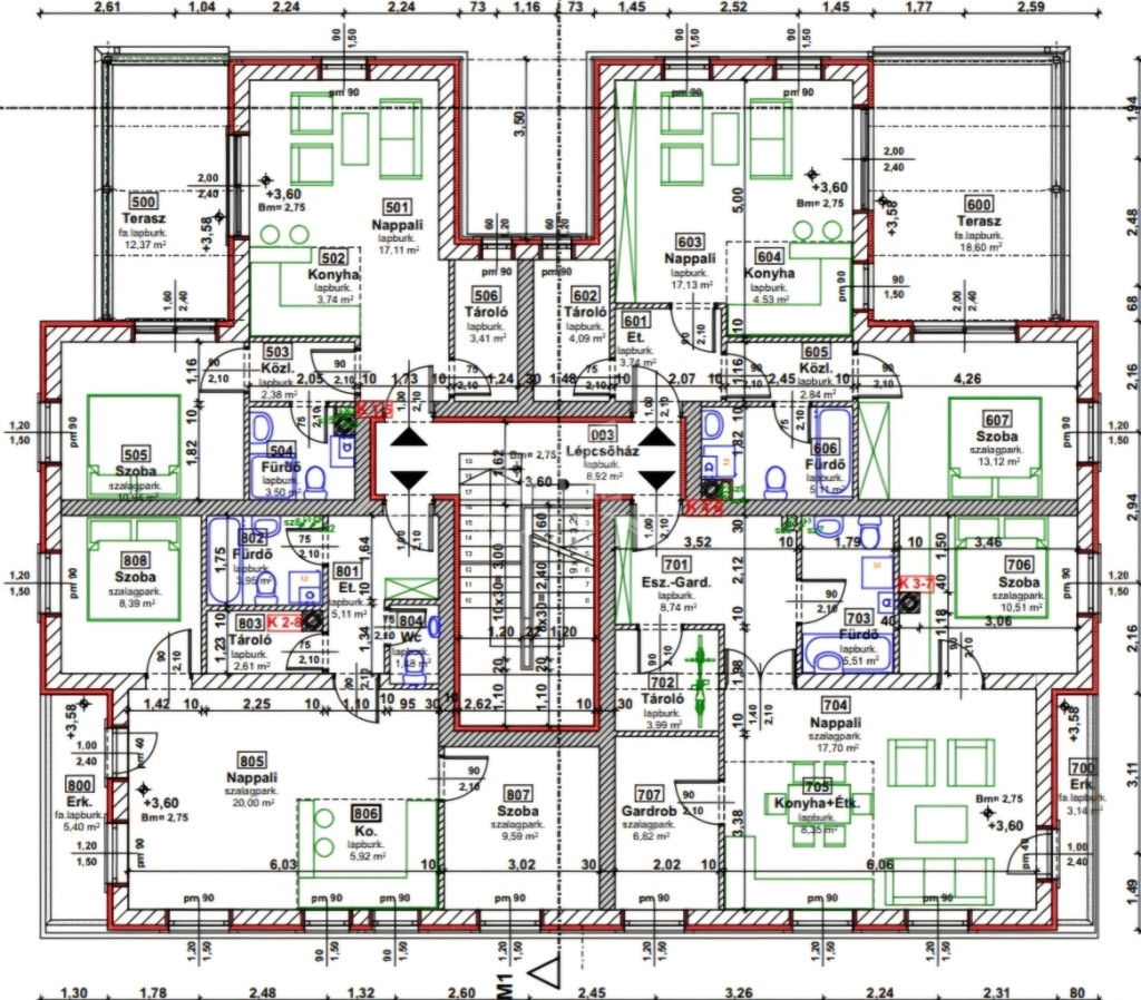
Dunaharaszti egyik legkedveltebb részén, a csendes, családias Bezerédi lakóparkban kínáljuk eladásra ezt az AMERIKAI KONYHÁS NAPPALI + 2 HÁLÓS, 19 m2-es TERASSZAL rendelkező lakást egy magas minőségű anyagokkal megépített, évtizedes referenciákkal rendelkező beruházó által kivitelezett 8 lakásos társasházban.
Minden lakás külön albetét lesz, tehát saját helyrajzi számmal rendelkeznek.
Az emeleti mindegyikéhez tartozik 2 db. saját kültéri beálló is.
Általános műszaki jellemzők:
- Porotherm 30 klíma kerámia teherhordó falak 10 cm Austrotherm Grafit 80 külső szigeteléssel
- Porotherm 30 AKU Z válaszfalak (30 cm vastag hanggátló falazóelem)
- a meleget a padlófűtés, a hűtést (a fűtésre is használható) fan-coil rendszer biztosítja
- a lakás riasztóval felszerelt
- napelem előkészítés
Minden lakáshoz tartozik egy saját fűthető tároló is.
A hálószobák melegburkolatot, a többi helyiség hidegburkolatot kap.
A lakóparkban épült új sportpark számos lehetőséget nyújt a sportolni, pihenni vágyóknak.
Részletes műszaki adatokért, egyéb információkért az ingatlannal kapcsolatban keressen bizalommal, akár hétvégén is! ...TOVÁBBI, TÖBBEZRES INGATLAN KÍNÁLAT: - GDN azonosító: 392156
Minden lakás külön albetét lesz, tehát saját helyrajzi számmal rendelkeznek.
Az emeleti mindegyikéhez tartozik 2 db. saját kültéri beálló is.
Általános műszaki jellemzők:
- Porotherm 30 klíma kerámia teherhordó falak 10 cm Austrotherm Grafit 80 külső szigeteléssel
- Porotherm 30 AKU Z válaszfalak (30 cm vastag hanggátló falazóelem)
- a meleget a padlófűtés, a hűtést (a fűtésre is használható) fan-coil rendszer biztosítja
- a lakás riasztóval felszerelt
- napelem előkészítés
Minden lakáshoz tartozik egy saját fűthető tároló is.
A hálószobák melegburkolatot, a többi helyiség hidegburkolatot kap.
A lakóparkban épült új sportpark számos lehetőséget nyújt a sportolni, pihenni vágyóknak.
Részletes műszaki adatokért, egyéb információkért az ingatlannal kapcsolatban keressen bizalommal, akár hétvégén is! ...TOVÁBBI, TÖBBEZRES INGATLAN KÍNÁLAT: - GDN azonosító: 392156