Eladó Lakás
Hirdetéskód: 9295526
Dunaharaszti Bocskai utca 10 - OTP Ingatlanpont Iroda
Felújításhoz személyi kölcsönt keres? Kalkuláljon itt! →48.00 m2
ALAPTERÜLET2
SZOBASZÁMnincs megadva
ÉPÍTÉSnincs megadva
FŰTÉS- CSOK igénybe vehető nem
- Tetőtér beépíthető nem
- Építés éve 2008
- Klíma nem
- Szigetelt nem
A+++
A++
A+
A
B
C
D
E
F
G
H
I
Az ingatlan leírása
NAPFÉNYES***KÉTSZOBÁS***TERASZOS***LAKÁS***DUNAHARASZTIBAN****Hitelezhető!!!
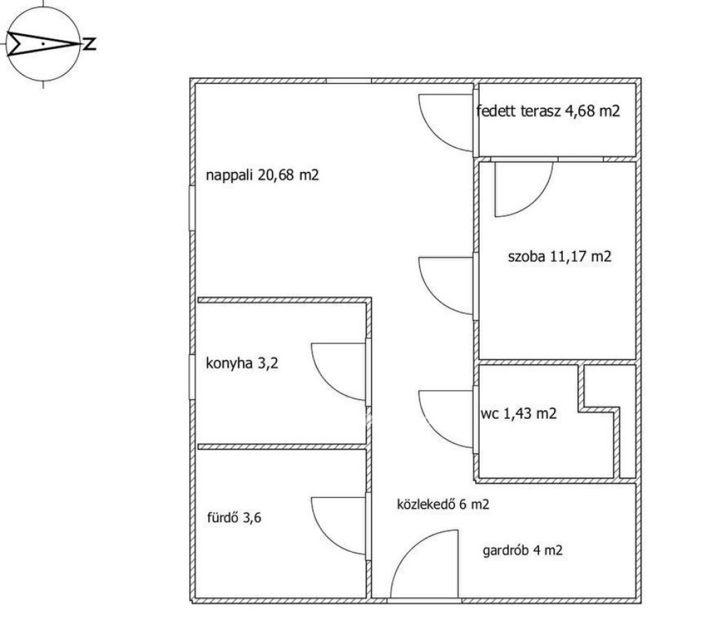
Eladásra kínálok Pest megyében egy 2 szobás, panorámás, 48 m2-es, 3. emeleti, társasházi lakást, LIFTes, modern, parkosított lakóparkban Dunaharaszti szívében.
A piac közelében, jó lokációval, egy zárt lakóparki környezetben találjuk a kívül- belül modern, napfényben úszó kellemes kis otthont. A lépcsőház finom takarított, karbantartott illata fogad minket, két lépcsős biztonsági rendszerrel, egy modern lifttel. Jól hangszigetelt, téglából épült falain át a külső zajok eltűnnek. Az ingatlanba érve átsüt az előszobán a fény, a keleti és déli oldal, a konyha, a nappali és a szoba is több nyílászáróval napfényes teret nyújt. A nappalival és hálószobával, kádas fürdővel, külön geberites wc-vel, nagy pakolható, gardróbbá alakítható előtérrel, beépített konyhabútoros konyhával és fedett terasszal egy kedves otthon tárul elénk. Nem lakott, ezért a bútorzat kevés, picit üresek a terek, de minden úszik a fényben!! Az ingatlan tehermentes, egy tulajdonossal. Azonnal költözhető!!
Gáz cirkó fűtésű, radiátorokkal,néhány bútor esetlegesen megvásárolható. A közös költség 15.000,-Ft, a rezsi 10-15.000,-Ft. A gáz hálózat korszerűsítése, bővítése a közeljövőben várható,de így is tökéletes.
Jöjjön, legyen Dunaharaszti lakos!! Hogy miért?
Óvoda, bölcsöde, iskola a közelben, Dunaharaszti vitathatatlan infrastruktúrája minden igényt kielégít, a szomszédos piacon pedig szerdai és szombati napokon a környék legjobb kézműveseinek és őstermelőinek portékáit kaphatjuk meg termelői áron.
Budapestre az MO és a Soroksári út gyors bejutást biztosít. De van helyi járatú busz, sárgabusz a Népligetbe, HÉV, és vonat, de rengeteg multi, bevásárlóközpont, Tesco,Aldi, Lidl, Spar, Rossman,DM, Fresnaps, Pepco, Jysk,Takko és számos helyi üzlet, pékségek, zöldségesek, hentesek, éttermek, kávézók és Magyarország egyik legjobb cukrászdája, a Karl cukrászda is díjnyertes bejglijeivel, süteményeivel. Számos fittnesz terem, sportpark,a Duna- part természetvédelmi sétányai, billiárd,darts, táncos klubok, és még sorolhatnám mi minden várja az ide költözőt. Itt még léteznek cipészek, varrónők, házi sütemény készítők és itt van Szabi a Pék is!!
Ne habozzon, jöjjön tekintse meg és csapjon le erre a klassz kis otthonra!
Az OTP Bankcsoport háttér szolgáltatásával, hitelügyintézéssel, ügyvédi háttérrel állunk rendelkezésükre. Az ingatlan alkalmas az Otthon Start Program 3%- os hitelre, CSOK-ra is.
A nap bármely szakában hívjon bizalommal!
Referencia szám: M324313
Eladásra kínálok Pest megyében egy 2 szobás, panorámás, 48 m2-es, 3. emeleti, társasházi lakást, LIFTes, modern, parkosított lakóparkban Dunaharaszti szívében.
A piac közelében, jó lokációval, egy zárt lakóparki környezetben találjuk a kívül- belül modern, napfényben úszó kellemes kis otthont. A lépcsőház finom takarított, karbantartott illata fogad minket, két lépcsős biztonsági rendszerrel, egy modern lifttel. Jól hangszigetelt, téglából épült falain át a külső zajok eltűnnek. Az ingatlanba érve átsüt az előszobán a fény, a keleti és déli oldal, a konyha, a nappali és a szoba is több nyílászáróval napfényes teret nyújt. A nappalival és hálószobával, kádas fürdővel, külön geberites wc-vel, nagy pakolható, gardróbbá alakítható előtérrel, beépített konyhabútoros konyhával és fedett terasszal egy kedves otthon tárul elénk. Nem lakott, ezért a bútorzat kevés, picit üresek a terek, de minden úszik a fényben!! Az ingatlan tehermentes, egy tulajdonossal. Azonnal költözhető!!
Gáz cirkó fűtésű, radiátorokkal,néhány bútor esetlegesen megvásárolható. A közös költség 15.000,-Ft, a rezsi 10-15.000,-Ft. A gáz hálózat korszerűsítése, bővítése a közeljövőben várható,de így is tökéletes.
Jöjjön, legyen Dunaharaszti lakos!! Hogy miért?
Óvoda, bölcsöde, iskola a közelben, Dunaharaszti vitathatatlan infrastruktúrája minden igényt kielégít, a szomszédos piacon pedig szerdai és szombati napokon a környék legjobb kézműveseinek és őstermelőinek portékáit kaphatjuk meg termelői áron.
Budapestre az MO és a Soroksári út gyors bejutást biztosít. De van helyi járatú busz, sárgabusz a Népligetbe, HÉV, és vonat, de rengeteg multi, bevásárlóközpont, Tesco,Aldi, Lidl, Spar, Rossman,DM, Fresnaps, Pepco, Jysk,Takko és számos helyi üzlet, pékségek, zöldségesek, hentesek, éttermek, kávézók és Magyarország egyik legjobb cukrászdája, a Karl cukrászda is díjnyertes bejglijeivel, süteményeivel. Számos fittnesz terem, sportpark,a Duna- part természetvédelmi sétányai, billiárd,darts, táncos klubok, és még sorolhatnám mi minden várja az ide költözőt. Itt még léteznek cipészek, varrónők, házi sütemény készítők és itt van Szabi a Pék is!!
Ne habozzon, jöjjön tekintse meg és csapjon le erre a klassz kis otthonra!
Az OTP Bankcsoport háttér szolgáltatásával, hitelügyintézéssel, ügyvédi háttérrel állunk rendelkezésükre. Az ingatlan alkalmas az Otthon Start Program 3%- os hitelre, CSOK-ra is.
A nap bármely szakában hívjon bizalommal!
Referencia szám: M324313