Eladó Lakás
Hirdetéskód: 9311776

-

Felújításhoz személyi kölcsönt keres? Kalkuláljon itt! →
FIX 3% Program

Ez a hirdetés megfelelhet a FIX 3%-os programnak.
Tudj meg többet a részletekről itt.

54.00 m2
ALAPTERÜLET
2
SZOBASZÁM
nincs megadva
ÉPÍTÉS
Gáz (konvektor)
FŰTÉS
  • Fűtés Gáz (konvektor)
  • Erkély, terasz Loggia 5.00m2
Energetikai besorolás: Nincs meghatározva
A+++
A++
A+
A
B
C
D
E
F
G
H
I

Az MBH Bank személyi kölcsön ajánlata

Fizetett hirdetés
1 millió Ft
6 évre
20 585 Ft/hó
THM: 14.5%
Részletek →
2 millió Ft
6 évre
41 169 Ft/hó
THM: 14.5%
Részletek →
3 millió Ft
6 évre
61 754 Ft/hó
THM: 14.5%
Részletek →

A tájékoztatás nem teljes körű és nem minősül ajánlattételnek.

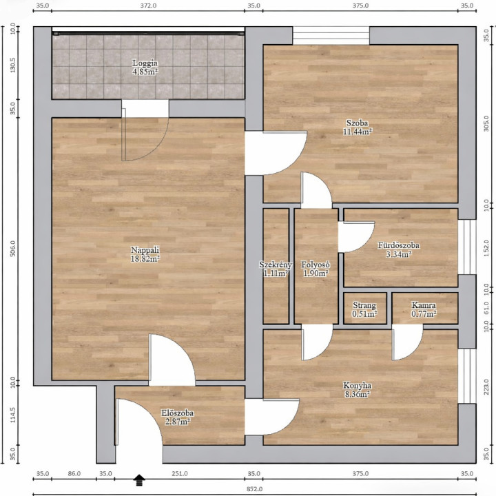
Az ingatlan leírása

Remek lokációval lakás várja új tulajdonosát! A város szívéhez, belvárosához közel de mégis nyugodt, csendes környezetben!
Debrecen legkeresettebb környékén a Libakertben, 54nm-es , 2 szobás lakás eladó. Az ingatlan 1. emeleten helyezkedik el, rendkívül csendes az ablakai parkra néznek. Alacsony rezsiköltségű, gázcirkó fűtésű, műanyag nyílászáróval, elektromos redőnnyel, biztonsági ajtóval felszerelt. A szobák, folyosó, konyha, közlekedő új vízálló parkettával burkolt. Az ingatlan felújítása folyamatban van.
Helyiségei: 2 külön nyíló szoba, étkezőkonyha, fürdőszoba + toalett, kamra, előszoba, loggia 5nm.. A lakáshoz saját pince is tartozik.
Az ingatlan napos , világos, élhető terekkel rendelkező. Kiváló tömegközlekedés villamos, buszmegálló közvetlen közelében! Minden amire szüksége lehet a hétköznapi élethez gyalogosan könnyen elérhető! Iskolák, óvodák, boltok, posta, piac, rendelőintézet.
Ha egy kiváló lokációval rendelkező otthonra vágyik Debrecen belvárosában , ez tökéletes választás saját otthonnak vagy akár befektetésnek! Az ingatlan tehermentes, rendezett tulajdoni viszonyokkal! A kép tájékoztatás jellegű.
Amennyiben hitelre van szüksége, díjmentes ügyintézéssel áll rendelkezésére Kollégánk, aki személyre szabottan, a legmegfelelőbb konstrukciót választja ki az Ön számára.
További kérdéssel keressen bizalommal! Megtekintés előre egyeztetett időpontban!

Térkép

Ingatlan adásvétel ügyvédi díja
292 500 Ft
a hirdetésben szereplő ár alapján
  • A vételár 0,45%-a
  • Szerződéscsomag teljeskörű képviselettel
  • Ingyenes tulajdoni lap ellenőrzés
  • Az ÁFA-t már tartalmazza
Érdekel az ajánlat →
A tájékoztatás nem teljes körű és nem minősül ajánlattételnek. Minimum díj: 150 000 Ft, maximum díj: 600 000 Ft. A díj kizárólag lakóingatlan adásvételére vonatkozik.

A hirdető elérhetősége

Kálmánchelyi Andrea

+36 30 644