Eladó Lakás
Hirdetéskód: 9249846
Debrecen Miklós utca 5-13 - OTP Ingatlanpont Iroda
Ez a hirdetés megfelelhet a FIX 3%-os programnak.
Tudj meg többet a részletekről itt.
71.00 m2
ALAPTERÜLET3
SZOBASZÁMnincs megadva
ÉPÍTÉSnincs megadva
FŰTÉS- CSOK igénybe vehető nem
- Tetőtér beépíthető nem
- Építés éve 1970
- Klíma nem
- Szigetelt nem
A+++
A++
A+
A
B
C
D
E
F
G
H
I
Az ingatlan leírása
Debrecen belvárosában a Bethlen utcán, 3 szobás lakás eladó!
Debrecen egyik kedvelt, központi részén, a Bethlen utcán kínálunk megvételre egy tíz emeletes épület 9. emeletén lévő, világos, tágas elrendezésű lakást. A környék infrastruktúrája kiemelkedő: busz- és villamosmegállók néhány perc sétára, a közelben üzletek, iskolák, gyógyszertár, valamint a belváros minden fontos szolgáltatása megtalálható. A társasház rendezett, jó lakóközösséggel rendelkezik.
Az ingatlan főbb jellemzői:
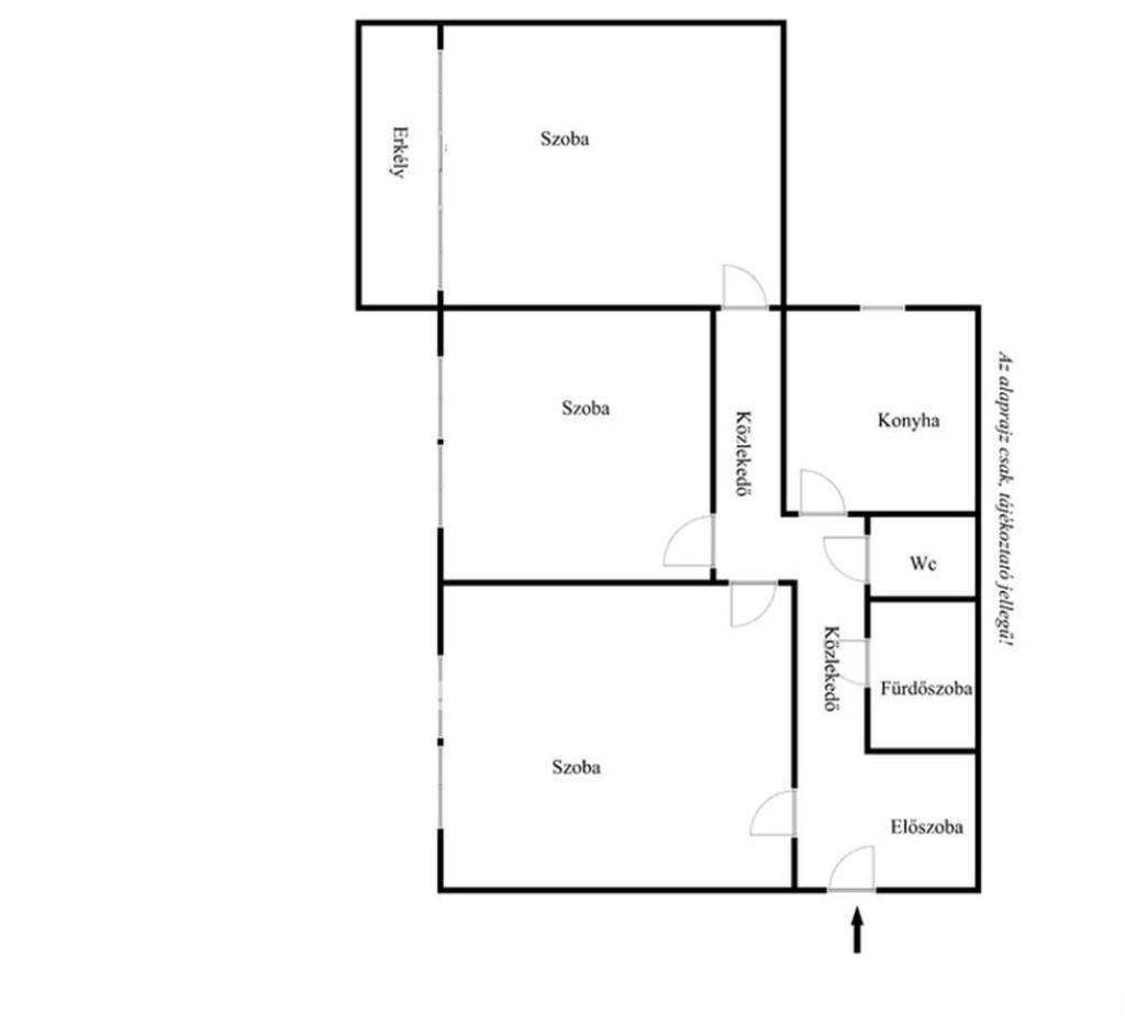
* Alapterület: 71 m2
* Emelet: 9. emelet/nem zárószint/
* Fűtés / melegvíz: távfűtés; a melegvíz a fűtésrendszeren keresztül biztosított ? költséghatékony és kiszámítható rezsivel
* Közös költség: 12 070 Ft
* Elrendezés:
- 3 teljes értékű, különnyíló szoba
- konyha
- fürdőszoba
- külön WC
- előszoba
- közlekedő
* Erkély: az ingatlanhoz erkély tartozik, ahonnan hangulatos kilátás nyílik a Bethlen utcára innen akár a Virágkarnevál menete is megtekinthető
* Tárolás: a lakáshoz közös tárolóhelyiség is tartozik/3-4 lakás/tároló/
* Nyílászárók: fa nyílászárók
* Állapot: átlagos, utoljára átfogóbb korszerűsítés 2011-ben történt
Kinek ajánljuk?
Tökéletes választás mindazok számára, akik a belváros kényelmét, a kiváló közlekedést és a praktikus elrendezést szeretnék élvezni. Családoknak, egyetemistáknak és befektetőknek is ideális, mivel a környék keresett és a lakás könnyen bérbe adható.
Ha olyan lakást keres, amely értékálló, könnyen kiadható, ezt érdemes megnéznie! Az OTP Bankcsoport teljes körű ügyintézéssel áll az eladók és a vevők rendelkezésére.
Debrecen egyik kedvelt, központi részén, a Bethlen utcán kínálunk megvételre egy tíz emeletes épület 9. emeletén lévő, világos, tágas elrendezésű lakást. A környék infrastruktúrája kiemelkedő: busz- és villamosmegállók néhány perc sétára, a közelben üzletek, iskolák, gyógyszertár, valamint a belváros minden fontos szolgáltatása megtalálható. A társasház rendezett, jó lakóközösséggel rendelkezik.
Az ingatlan főbb jellemzői:
* Alapterület: 71 m2
* Emelet: 9. emelet/nem zárószint/
* Fűtés / melegvíz: távfűtés; a melegvíz a fűtésrendszeren keresztül biztosított ? költséghatékony és kiszámítható rezsivel
* Közös költség: 12 070 Ft
* Elrendezés:
- 3 teljes értékű, különnyíló szoba
- konyha
- fürdőszoba
- külön WC
- előszoba
- közlekedő
* Erkély: az ingatlanhoz erkély tartozik, ahonnan hangulatos kilátás nyílik a Bethlen utcára innen akár a Virágkarnevál menete is megtekinthető
* Tárolás: a lakáshoz közös tárolóhelyiség is tartozik/3-4 lakás/tároló/
* Nyílászárók: fa nyílászárók
* Állapot: átlagos, utoljára átfogóbb korszerűsítés 2011-ben történt
Kinek ajánljuk?
Tökéletes választás mindazok számára, akik a belváros kényelmét, a kiváló közlekedést és a praktikus elrendezést szeretnék élvezni. Családoknak, egyetemistáknak és befektetőknek is ideális, mivel a környék keresett és a lakás könnyen bérbe adható.
Ha olyan lakást keres, amely értékálló, könnyen kiadható, ezt érdemes megnéznie! Az OTP Bankcsoport teljes körű ügyintézéssel áll az eladók és a vevők rendelkezésére.