Eladó Lakás
Hirdetéskód: 9234262
Nagyerdei Ingatlaniroda
Felújításhoz személyi kölcsönt keres? Kalkuláljon itt! →44.00 m2
ALAPTERÜLET2
SZOBASZÁMnincs megadva
ÉPÍTÉSnincs megadva
FŰTÉS- CSOK igénybe vehető nem
- Tetőtér beépíthető nem
- Klíma nem
- Szigetelt nem
A+++
A++
A+
A
B
C
D
E
F
G
H
I
Az ingatlan leírása
Debrecen BELVÁROSÁBAN, 44 m2-es, nappali+1 hálószobás, 8,3 m2 loggiás, MODERN, ENERGIATAKARÉKOS, ÚJ LAKÁS, 2027. II. negyedévi átadással ELADÓ !
Új építésű, korszerű lakások eladók, ahol az élhető terek, a gazdaságos fenntarthatóság és a magas műszaki színvonal áll a középpontban.
Főbb jellemzők:
30 N+F kerámia falazat, 15 cm külső hőszigetelés
Hanggátló lakáselválasztó falak, hang- és tűzgátló belső falak
20 cm monolit vasbeton födém, lapostető
3 rétegű hőszigetelt nyílászárók, több ponton záródó biztonsági ajtó
Rejtett tokos, elektromos redőnyök
Hőszivattyús fűtés és melegvíz, padlófűtés minden helyiségben
Hőszivattyús fan-coil hűtés
Minőségi fürdőszobai felszereltség (Mofém csaptelepek, üveg zuhanyfal)
Loggia vagy terasz minden lakáshoz
Szabadon választható burkolatok, igény szerint alakítható belső terek
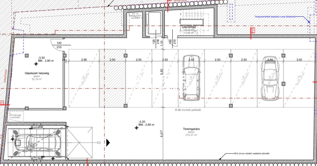
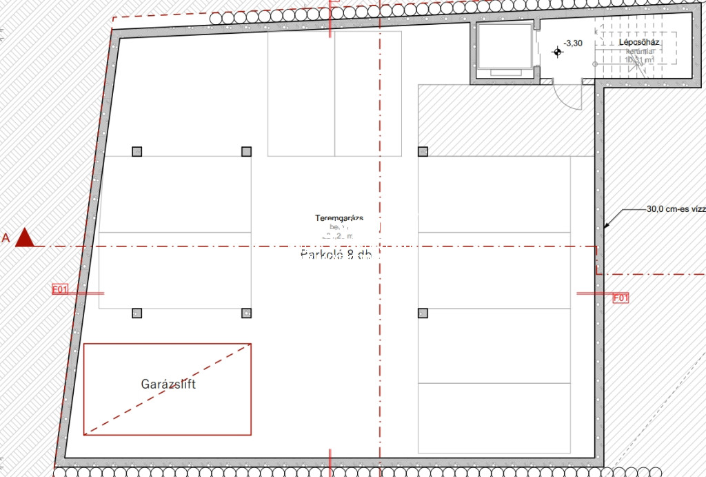
A lakásokhoz opcionálisan garázs vásárolható, melynek ára: 10 MFt.
A projektet tapasztalt, stabil hátterű kivitelező valósítja meg, a megoldások megfelelnek a mai újépítésű elvárásoknak (pl. garázslift).
Várható befejezés: 2027. II. negyedév
Referenciaszám: #120761
*****
IN THE CITY CENTRE OF Debrecen, 44 m2, living room + 1 bedroom, 8,3 m2 loggia, MODERN, ENERGY-EFFICIENT, NEW APARTMENT, FOR SALE with delivery in the second quarter of 2027!
Newly built, modern apartments designed with livable spaces, low operating costs, and high technical standards in mind.
Key features:
30 N+F ceramic masonry with 15 cm external insulation
Soundproof and fire-resistant interior walls
20 cm monolithic reinforced concrete slab, flat roof
Triple-glazed, thermally insulated windows, multi-point locking security door
Concealed electric roller shutters
Heat pump system for heating and hot water, underfloor heating throughout
Heat-pump-powered fan-coil cooling
Quality bathroom fittings (Mofém faucets, glass shower walls)
Each apartment has a loggia or terrace
Various apartment sizes with efficient layouts
Customizable interiors, freely selectable finishes
A garage can be purchased as an option for the apartments, the price of which is 10 million HUF.
Developed by an experienced, financially stable contractor, fully meeting modern new-build standards (e.g. garage lift).
Expected completion: Q2 2027
Reference number: #120761
Garai utca 22.
Lakás: 1.500.000.-ft./m2
Loggia: 750.000.-ft./m2
Parkoló: 10.000.000.-ft./db.
Fizetési ütemterv:
Előszerződés kötésekor foglaló befizetés: 15%
Építési engedély megszerzésekor: 25 %
Fizetési ütemek:
I. Ütem: 15%
Vasbetonszerkezet, fő- és válaszfalak.
II. Ütem: 15%
Gépészti villanyszerelési rendszer csövezése, vezetékelése.
Kültéri nyílászárók beépítése.
III. Ütem: 15%
Belső falfelületek gipszkartonozása vagy vakolása.
IV. Ütem: 10%
Komplett festés, burkolás, beltéri ajtó beépítése.
Homlokzat hőszigetelés.
Gépészeti és villanyszerelési szerelvények szerelvényezés.
V. Ütem: 5%
Használatbavételi engedély megszerzésekor.
AJTÓK fürdőszoba választható ízlés szerint, ez a képeken is látható.
Kivitelezés kezdete: 2025. szeptember 30.
Műszaki átadás: 2027. március 30.
Használatbavételi engedély: 2027. május 30.
További infók Drive-ban a Garai 22. mappában
Új építésű, korszerű lakások eladók, ahol az élhető terek, a gazdaságos fenntarthatóság és a magas műszaki színvonal áll a középpontban.
Főbb jellemzők:
30 N+F kerámia falazat, 15 cm külső hőszigetelés
Hanggátló lakáselválasztó falak, hang- és tűzgátló belső falak
20 cm monolit vasbeton födém, lapostető
3 rétegű hőszigetelt nyílászárók, több ponton záródó biztonsági ajtó
Rejtett tokos, elektromos redőnyök
Hőszivattyús fűtés és melegvíz, padlófűtés minden helyiségben
Hőszivattyús fan-coil hűtés
Minőségi fürdőszobai felszereltség (Mofém csaptelepek, üveg zuhanyfal)
Loggia vagy terasz minden lakáshoz
Szabadon választható burkolatok, igény szerint alakítható belső terek
A lakásokhoz opcionálisan garázs vásárolható, melynek ára: 10 MFt.
A projektet tapasztalt, stabil hátterű kivitelező valósítja meg, a megoldások megfelelnek a mai újépítésű elvárásoknak (pl. garázslift).
Várható befejezés: 2027. II. negyedév
Referenciaszám: #120761
*****
IN THE CITY CENTRE OF Debrecen, 44 m2, living room + 1 bedroom, 8,3 m2 loggia, MODERN, ENERGY-EFFICIENT, NEW APARTMENT, FOR SALE with delivery in the second quarter of 2027!
Newly built, modern apartments designed with livable spaces, low operating costs, and high technical standards in mind.
Key features:
30 N+F ceramic masonry with 15 cm external insulation
Soundproof and fire-resistant interior walls
20 cm monolithic reinforced concrete slab, flat roof
Triple-glazed, thermally insulated windows, multi-point locking security door
Concealed electric roller shutters
Heat pump system for heating and hot water, underfloor heating throughout
Heat-pump-powered fan-coil cooling
Quality bathroom fittings (Mofém faucets, glass shower walls)
Each apartment has a loggia or terrace
Various apartment sizes with efficient layouts
Customizable interiors, freely selectable finishes
A garage can be purchased as an option for the apartments, the price of which is 10 million HUF.
Developed by an experienced, financially stable contractor, fully meeting modern new-build standards (e.g. garage lift).
Expected completion: Q2 2027
Reference number: #120761
Garai utca 22.
Lakás: 1.500.000.-ft./m2
Loggia: 750.000.-ft./m2
Parkoló: 10.000.000.-ft./db.
Fizetési ütemterv:
Előszerződés kötésekor foglaló befizetés: 15%
Építési engedély megszerzésekor: 25 %
Fizetési ütemek:
I. Ütem: 15%
Vasbetonszerkezet, fő- és válaszfalak.
II. Ütem: 15%
Gépészti villanyszerelési rendszer csövezése, vezetékelése.
Kültéri nyílászárók beépítése.
III. Ütem: 15%
Belső falfelületek gipszkartonozása vagy vakolása.
IV. Ütem: 10%
Komplett festés, burkolás, beltéri ajtó beépítése.
Homlokzat hőszigetelés.
Gépészeti és villanyszerelési szerelvények szerelvényezés.
V. Ütem: 5%
Használatbavételi engedély megszerzésekor.
AJTÓK fürdőszoba választható ízlés szerint, ez a képeken is látható.
Kivitelezés kezdete: 2025. szeptember 30.
Műszaki átadás: 2027. március 30.
Használatbavételi engedély: 2027. május 30.
További infók Drive-ban a Garai 22. mappában