Eladó Lakás
Hirdetéskód: 9271272

Nagy Ibolya E. V.

Felújításhoz személyi kölcsönt keres? Kalkuláljon itt! →
FIX 3% Program

Ez a hirdetés megfelelhet a FIX 3%-os programnak.
Tudj meg többet a részletekről itt.

70.00 m2
ALAPTERÜLET
3
SZOBASZÁM
Panel
ÉPÍTÉS
Távfűtés egyedi méréssel
FŰTÉS
  • CSOK igénybe vehető igen
  • Kilátás Utcai
  • Tájolás Dél
  • Ingatlan komfort Összkomfortos
  • Parkolási lehetőség Utcán, közterületen
  • Fűtés Távfűtés egyedi méréssel
  • Építőanyag Panel
  • Erkély, terasz Loggia 2.00m2
  • Szigetelt nem
  • Bútorozott igen
  • Akadálymentesített igen

Energetikai besorolás: E

A+++
A++
A+
A
B
C
D
E
F
G
H
I

Az MBH Bank személyi kölcsön ajánlata

Fizetett hirdetés
1 millió Ft
6 évre
20 585 Ft/hó
THM: 14.5%
Részletek →
2 millió Ft
6 évre
41 169 Ft/hó
THM: 14.5%
Részletek →
3 millió Ft
6 évre
61 754 Ft/hó
THM: 14.5%
Részletek →

A tájékoztatás nem teljes körű és nem minősül ajánlattételnek.

Az ingatlan leírása

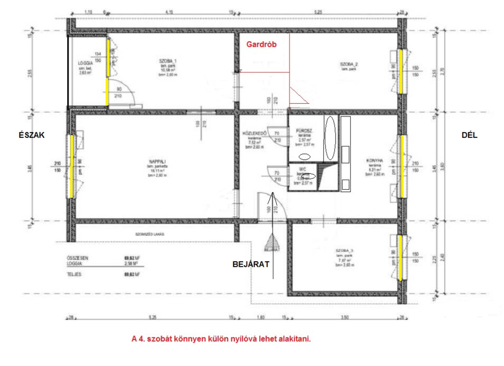
Debrecen, a Vénkert városrészben, az Ibolya utcán, 3. emeleten, liftes társasházban, eladó ez a jó állapotú 68 nm-es, 2+2 szobás lakás, igény szerint bútorozva, gépesítve is, azonnal költözhetően!
Az Észak-Déli fekvésű lakás tartalmaz: előszoba, új bejárati ajtóval, előszoba fallal, kádas fürdőszoba, külön WC., konyha gáz tűzhellyel. A belső ajtók is ki lettek cserélve, modern toló ajtókra, jelenleg körbejárós a 4 szoba, de könnyen külön nyílóvá tehetők. A belső háló szobából nyílik egy loggia, a konyha felőli szobát étkezőnek is lehet használni.
A rezsi költség a mért távhő fűtéssel nagyon kedvező ekkora négyzetméterre, télen a fűtés 22 ezer Ft., nyáron 12 ezer Ft., plusz a főzéshez a gáz álltalány csak 1 ezer Ft./hó, akármennyit főz! Ez kompenzálja, hogy a közös költség 25 040 Ft., de itt csak 3 jó szomszéd van egy szinten.
A lakás tehermentes, a négyzetméter ára csak 910 ezer Ft., rugalmasan tudjuk mutatni, hétvégén is. Csok plusz, a 3 %-os Start hitel is felvehető!

Térkép

A hirdető elérhetősége

101 Apróingatlan

Nagy Ibolya
+36 30 655