Eladó Lakás
Hirdetéskód: 9305974

Füredi Kapu (DunaHouse)

Felújításhoz személyi kölcsönt keres? Kalkuláljon itt! →
FIX 3% Program

Ez a hirdetés megfelelhet a FIX 3%-os programnak.
Tudj meg többet a részletekről itt.

73.00 m2
ALAPTERÜLET
3
SZOBASZÁM
nincs megadva
ÉPÍTÉS
Gáz (cirkó)
FŰTÉS
  • CSOK igénybe vehető nem
  • Tetőtér beépíthető nem
  • Építés éve 2026
  • Fűtés Gáz (cirkó)
  • Klíma nem
  • Szigetelt nem
Energetikai besorolás: Nincs meghatározva
A+++
A++
A+
A
B
C
D
E
F
G
H
I

Az MBH Bank személyi kölcsön ajánlata

Fizetett hirdetés
1 millió Ft
6 évre
20 585 Ft/hó
THM: 14.5%
Részletek →
2 millió Ft
6 évre
41 169 Ft/hó
THM: 14.5%
Részletek →
3 millió Ft
6 évre
61 754 Ft/hó
THM: 14.5%
Részletek →

A tájékoztatás nem teljes körű és nem minősül ajánlattételnek.

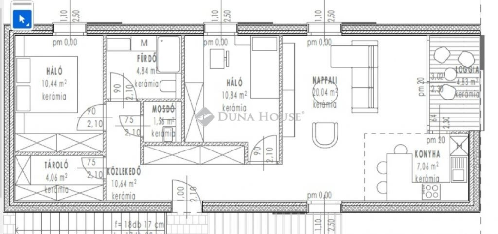
Az ingatlan leírása

Eladásra kínálunk egy különleges, új építésű nappali + kettő szobás lakást Debrecen felkapott városrészében, a Kartács utcából nyíló csendes utcában, Nyulason. A lakás alapterülete 73,58 nm. A lakáshoz tartozik 4,58 nm es loggia. Az ingatlan vételára 95 900 000 HUF, ami négyzetméterenként 1 498 548 HUF-t jelent. Fizetési ütemezés rugalmas, az első részletként csak 5% befizetése szükséges.Egy kis lakószámú társasházban található, ahol a modern technológiák és a kényelem ötvöződnek.Ami igazán különlegessé teszi ezt a projektet, hogy nincs közös fal a lakások között, így az otthon érzése olyan, mintha családi házban élnél, miközben élvezheted a társasházi kényelmi előnyöket. A zöld, nyugodt környezet és a közelben lévő minden szükséges infrastruktúra ideális választássá teszi ezt a lakást modern műszaki megoldásokat keresőknek, akik nem szeretnének kompromisszumot kötni az otthonuk minőségét illetően.A lakásokhoz saját, lakáson belüli tároló vagy gardrób tartozik, ami extra tárolási lehetőséget biztosít. A 36 cm vastag Isospan falazati rendszer (16 cm grafitos szigeteléssel és vasbetonnal) egyenletes hőmérsékletet garantál fűtés és hűtés nélkül is, a prémium hő- és hangszigetelés mellett. A tűzállóság érdekében a lakás beton sávalappal és monolit vasbeton födémmel került kialakításra, a külső nyílászárók pedig 3 réteg üvegezésű, 6 légkamrás műanyag profilban készültek.Az ingatlan főbb jellemzői között szerepel az A+ energetikai besorolás, ami alacsony rezsi költséget és korszerű műszaki megoldásokat ígér. Minden lakás gáz cirkó kazánnal és padlófűtéssel van ellátva a kellemes hőérzetért. Emellett klíma biztosítja a nyári komfortot minden szobában.Az épület a tervek szerint 2026 IV negyedévében kerül átadásra. A lakás kimagasló fényviszonyokkal rendelkezik, köszönhetően a napfényes elhelyezkedésének.Bővebb felvilágosításért forduljon hozzám bizalommal akár hétvégén

Térkép

Ingatlan adásvétel ügyvédi díja
431 550 Ft
a hirdetésben szereplő ár alapján
  • A vételár 0,45%-a
  • Szerződéscsomag teljeskörű képviselettel
  • Ingyenes tulajdoni lap ellenőrzés
  • Az ÁFA-t már tartalmazza
Érdekel az ajánlat →
A tájékoztatás nem teljes körű és nem minősül ajánlattételnek. Minimum díj: 150 000 Ft, maximum díj: 600 000 Ft. A díj kizárólag lakóingatlan adásvételére vonatkozik.

A hirdető elérhetősége

Füredi Kapu (DunaHouse)

Lovász Lajos László
+36 30 218