Eladó Lakás
Hirdetéskód: 9238411

Füredi Kapu (DunaHouse)

Felújításhoz személyi kölcsönt keres? Kalkuláljon itt! →
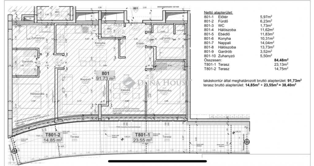
91.00 m2
ALAPTERÜLET
3
SZOBASZÁM
nincs megadva
ÉPÍTÉS
Házközponti fűtés egyedi méréssel
FŰTÉS
  • CSOK igénybe vehető nem
  • Tetőtér beépíthető nem
  • Építés éve 2020
  • Fűtés Házközponti fűtés egyedi méréssel
  • Klíma nem
  • Szigetelt nem
Energetikai besorolás: Nincs meghatározva
A+++
A++
A+
A
B
C
D
E
F
G
H
I

Az MBH Bank személyi kölcsön ajánlata

Fizetett hirdetés
1 millió Ft
6 évre
20 585 Ft/hó
THM: 14.5%
Részletek →
2 millió Ft
6 évre
41 169 Ft/hó
THM: 14.5%
Részletek →
3 millió Ft
6 évre
61 754 Ft/hó
THM: 14.5%
Részletek →

A tájékoztatás nem teljes körű és nem minősül ajánlattételnek.

Az ingatlan leírása

Egyetem Tower Debrecen tetején, ez nem ingatlan ez életstílus!Ez nem csak egy lakás, ez státuszszimbólum. Az Egyetem Tower legfelső szintjén kínáljuk eladásra az utolsó elérhető lakást és nem is akármilyet.- 84 m² letisztult luxus + 38 m² privát terasz, - Páratlan panoráma, ami minden este lelépteti a Netflixet- Gépesített designer konyha, nappali, két háló, dupla fürdő, gardrób- Hőszivattyús mennyezeti hűtés-fűtés, padlófűtés a kényelem új szintje- Wellness a tetőn: jakuzzi, medence, szauna, napozóterasz privát, csak a lakóknak- 24/7 portaszolgálat, zárt parkoló, teljes biztonságEgyetlen ilyen lakás Debrecenben.

Térkép

Ingatlan adásvétel ügyvédi díja
600 000 Ft
a hirdetésben szereplő ár alapján
  • A vételár 0,45%-a
  • Szerződéscsomag teljeskörű képviselettel
  • Ingyenes tulajdoni lap ellenőrzés
  • Az ÁFA-t már tartalmazza
Érdekel az ajánlat →
A tájékoztatás nem teljes körű és nem minősül ajánlattételnek. Minimum díj: 150 000 Ft, maximum díj: 600 000 Ft. A díj kizárólag lakóingatlan adásvételére vonatkozik.

A hirdető elérhetősége

Füredi Kapu (DunaHouse)

dr. Urszuly Gábor
+36 30 825