Eladó Lakás
Hirdetéskód: 9307165

-

Felújításhoz személyi kölcsönt keres? Kalkuláljon itt! →
FIX 3% Program

Ez a hirdetés megfelelhet a FIX 3%-os programnak.
Tudj meg többet a részletekről itt.

93.00 m2
ALAPTERÜLET
3
SZOBASZÁM
Tégla
ÉPÍTÉS
Házközponti
FŰTÉS
  • Kilátás Panorámás
  • Tájolás Délnyugat
  • Ingatlan komfort Összkomfortos
  • Parkolási lehetőség Utcán, közterületen
  • Fűtés Házközponti
  • Építőanyag Tégla
  • Erkély, terasz Erkély 6.00m2
  • Klíma igen
Energetikai besorolás: Nincs meghatározva
A+++
A++
A+
A
B
C
D
E
F
G
H
I

Az MBH Bank személyi kölcsön ajánlata

Fizetett hirdetés
1 millió Ft
6 évre
20 585 Ft/hó
THM: 14.5%
Részletek →
2 millió Ft
6 évre
41 169 Ft/hó
THM: 14.5%
Részletek →
3 millió Ft
6 évre
61 754 Ft/hó
THM: 14.5%
Részletek →

A tájékoztatás nem teljes körű és nem minősül ajánlattételnek.

Az ingatlan leírása

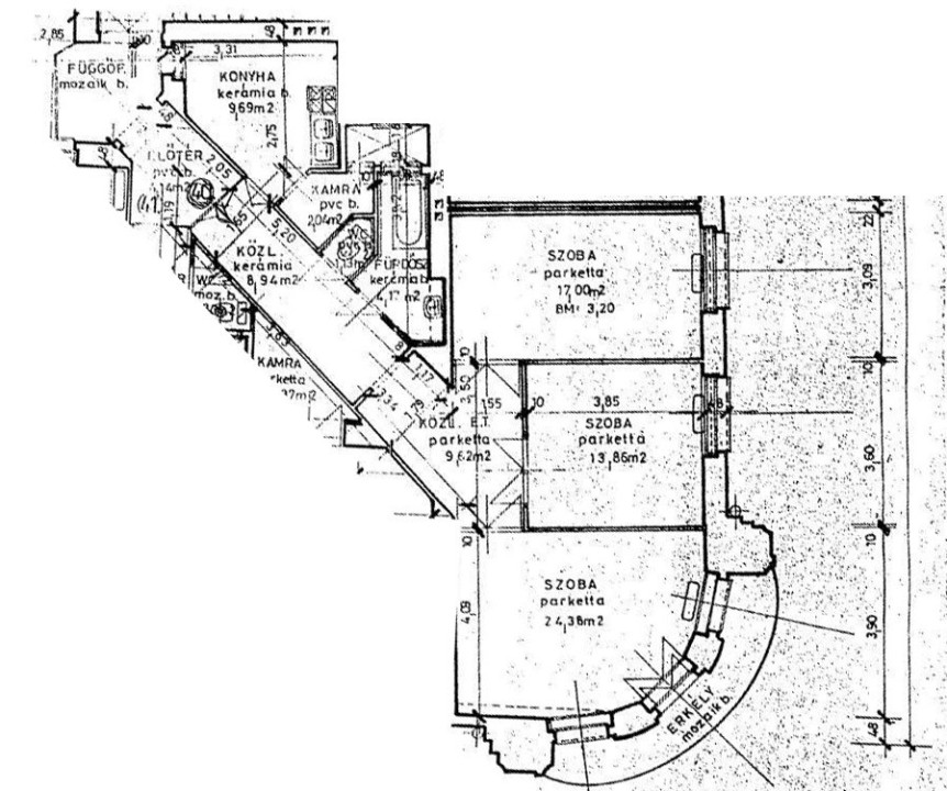
Debrecenben, Belvárosban, a Batthyány utcában eladó egy teljeskörűen felújított, 3. emeleti, 93m²-es, 3 szobás téglaépítésű erkélyes lakás!


Az ingatlan jellemzői:


-  Esztétikailag felújított, kiváló állapotú háromemeletes liftes társasház 3.emelete. 
-  Világos, délkeleti fekvésű erkélyes lakás, különleges városi kilátással.
-  Helyiségei: előszoba, konyha, kamra, 3 külön nyíló szoba, fürdőszoba, WC külön.
-  Kettő szoba padlózata rakott parketta, egy kisebb szobáé laminált parketta, a többi helyiség járólappal burkolt. 
-  Teljes műszaki felújítás – új villany- és vízvezeték hálózat
-  Új, korszerű ablakok és nyílászárók – kiváló hő- és hangszigetelés
-  Fűtése: házközponti fűtés radiátorokon keresztül. 
-  A nappaliban inverteres klíma is felszerelésre került. 
-  Közös költség. 15.000 Forint/hó. 
-  Parkolás megoldható az épület közelében, a lakáshoz 2 parkolási kártya igényelhető, melyek ingyenes parkolási lehetőséget biztosítanak.
-  Az ingatlan per -, teher - és igénymentes!
-  Azonnal költözhető!


A lakást kiváló közlekedés és infrastruktúra jellemzi. Abszolút belvárosi elhelyezkedése miatt minden intézmény, szolgáltatás gyalogosan kényelmesen elérhetők.
Az ingatlan közelében élelmiszerbolt, éttermek, kávézók, iskola, orvosi rendelő, gyógyszertár minden megtalálható. Piac utca, bevásárlóközpontok (Fórum, Pláza), Csokonai Színház 5–10 perc sétányira.


Kiváló belvárosi lakás a karnyújtásnyira elhelyezkedő bevásárlási és szórakozási lehetőségek minden előnyével. Ideális választás saját célra, illetve elhelyezkedésének, beosztásának köszönhetően kitűnő befektetési lehetőség is! Iroda, irodák kialakítására is tökéletesen alkalmas ingatlan!


Amennyiben az ingatlan felkeltette az érdeklődését és szeretné megtekinteni, kérem keressen bizalommal, akár hétvégén is!

Térkép

Ingatlan adásvétel ügyvédi díja
440 550 Ft
a hirdetésben szereplő ár alapján
  • A vételár 0,45%-a
  • Szerződéscsomag teljeskörű képviselettel
  • Ingyenes tulajdoni lap ellenőrzés
  • Az ÁFA-t már tartalmazza
Érdekel az ajánlat →
A tájékoztatás nem teljes körű és nem minősül ajánlattételnek. Minimum díj: 150 000 Ft, maximum díj: 600 000 Ft. A díj kizárólag lakóingatlan adásvételére vonatkozik.

A hirdető elérhetősége

Holecz Krisztián

+36 20 369