Eladó Lakás
Hirdetéskód: 9313145

OTP Ingatlanpont Csongrád

Felújításhoz személyi kölcsönt keres? Kalkuláljon itt! →
FIX 3% Program

Ez a hirdetés megfelelhet a FIX 3%-os programnak.
Tudj meg többet a részletekről itt.

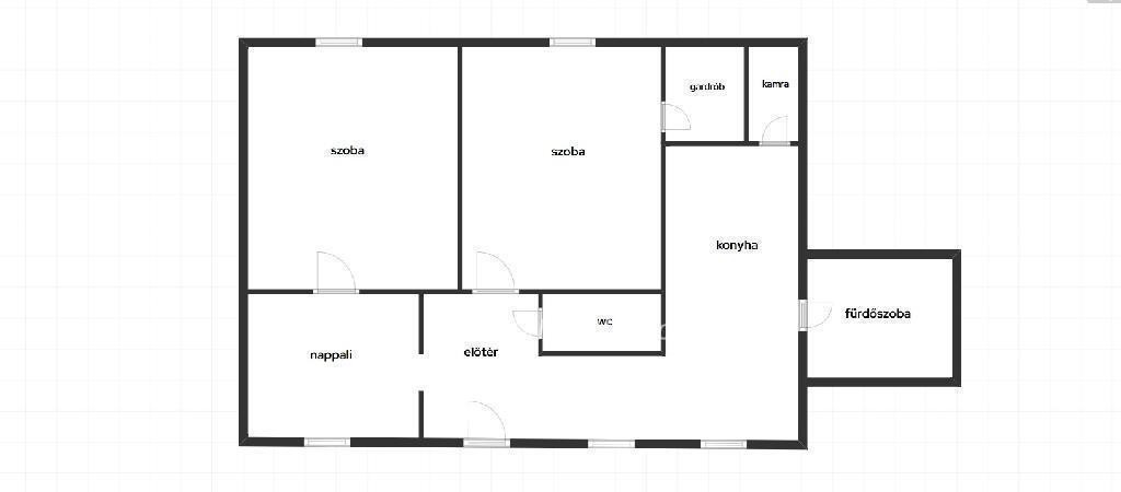
81.00 m2
ALAPTERÜLET
3
SZOBASZÁM
nincs megadva
ÉPÍTÉS
Gáz (konvektor)
FŰTÉS
  • CSOK igénybe vehető nem
  • Tetőtér beépíthető nem
  • Építés éve 1960
  • Fűtés Gáz (konvektor)
  • Klíma nem
  • Szigetelt nem
Energetikai besorolás: Nincs meghatározva
A+++
A++
A+
A
B
C
D
E
F
G
H
I

Az MBH Bank személyi kölcsön ajánlata

Fizetett hirdetés
1 millió Ft
6 évre
20 585 Ft/hó
THM: 14.5%
Részletek →
2 millió Ft
6 évre
41 169 Ft/hó
THM: 14.5%
Részletek →
3 millió Ft
6 évre
61 754 Ft/hó
THM: 14.5%
Részletek →

A tájékoztatás nem teljes körű és nem minősül ajánlattételnek.

Az ingatlan leírása

*** CSAK AZ OTP INGATLANPONT KÍNÁLATÁBAN! *** Eladó Csongrád központjában egy lehetőségekben gazdag, 81 nm-es felújítandó lakás, mely ideális otthont kínál mindazoknak, akik saját ízlésük szerint szeretnék kialakítani új otthonukat. Az ingatlanban két világos szoba, tágas gardrób, praktikus konyha, kényelmes nappali, fürdőszoba, WC és kamra található. A felújítás már elkezdődött: az összes nyílászáró műanyagra cserélve, a villanyhálózat modernizálva lett, így egy jó alap áll rendelkezésre a további fejlesztésekhez. Fűtése jelenleg gázkonvektorral biztosított, a melegvízről pedig okos bojler gondoskodik, ami kényelmes és takarékos megoldás. A telek osztatlan közös tulajdon. Egy kis ráfordítással fantasztikus otthont varázsolhat belőle, akár saját ízlése szerint. Ne hagyja ki ezt a remek lehetőséget, hogy saját álomlakását valósítsa meg Csongrádon! Legújabb szolgáltatásként ajánlom minden kedves ügyfelem részére az OTP Bank által közvetített Babaváró, CSOK PLUSZ, Otthon Start Hitelprogram vagy egyéb kölcsönök intézését. Számos konstrukció közül választhatnak. Irodáink Szentes, Petőfi utca 12. A buszmegálló felől, és Csongrád, Fő utca 54. szám alatt várja a személyes érdeklődőket. ***VÁLASSZUK KI EGYÜTT AZ ÖNNEK LEGMEGFELELŐBB AJÁNLATOT! BANKI SORBAN ÁLLÁS NÉLKÜL! Az adásvételi szerződés megkötéséhez igény szerint megbízható ügyvédi közreműködést biztosítunk, és segítséget nyújtunk az adásvételhez kapcsolódó ügyek intézésénél.

Az energetikai tanúsítvány készítése folyamatban van, amint rendelkezésre áll, úgy azzal a hirdetés frissítésre kerül.

Térkép

Ingatlan adásvétel ügyvédi díja
150 000 Ft
a hirdetésben szereplő ár alapján
  • A vételár 0,45%-a
  • Szerződéscsomag teljeskörű képviselettel
  • Ingyenes tulajdoni lap ellenőrzés
  • Az ÁFA-t már tartalmazza
Érdekel az ajánlat →
A tájékoztatás nem teljes körű és nem minősül ajánlattételnek. Minimum díj: 150 000 Ft, maximum díj: 600 000 Ft. A díj kizárólag lakóingatlan adásvételére vonatkozik.

A hirdető elérhetősége

OTP Ingatlanpont Csongrád

Szlovák Ibolya
+36 70 455