Eladó Lakás
Hirdetéskód: 9197743

OTP Ingatlanpont Csongrád

FIX 3% Program

Ez a hirdetés megfelelhet a FIX 3%-os programnak.
Tudj meg többet a részletekről itt.

54.00 m2
ALAPTERÜLET
3
SZOBASZÁM
nincs megadva
ÉPÍTÉS
nincs megadva
FŰTÉS
  • CSOK igénybe vehető nem
  • Tetőtér beépíthető nem
  • Építés éve 2025
  • Klíma nem
  • Szigetelt nem
Energetikai besorolás: Nincs meghatározva
A+++
A++
A+
A
B
C
D
E
F
G
H
I

Az ingatlan leírása

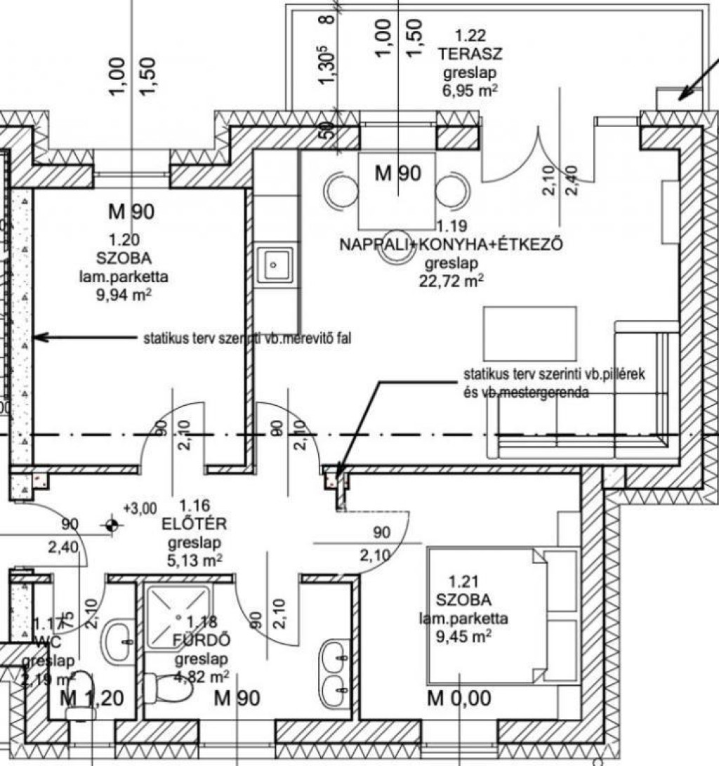
Cserkeszőlői, zöldövezeti, energiahatékony újépítésű lakások leköthetők --- az OTP Ingatlanpontnál! Már csak 7 újépítésű téglalakás elérhető, tulajdonos-kivitelezőtől, 20% kezdő befizetéssel eladó. A kulcsrakész átadás tervezett időpontja: 2026.06.30.! Modern, elegáns megjelenés, korszerű anyagok és kellemes, zöld környezet jellemzik ezt a projektet. A parkosított telken hat lakóház (földszint,2 emelet, tetőtér) kerül elhelyezésre. Az egyik lakóépületben kilenc lakás kap helyet. Ez a lakás külön kis lépcsőházban található, ahol összesen csak 3 lakás osztja meg a közös területeket. Tágas 3 szobás lakás az 1. emeleten, saját erkéllyel és jobb kilátással. Kiváló választás azok számára, akik a 3 szobás rugalmasságot és a magasabb elhelyezkedés előnyeit keresik. A 6. lakás ugyanazt a 3 szobás rugalmasságot nyújtja, mint a földszinti társai, de az 1. emeleti elhelyezkedés jobb kilátást és több természetes fényt biztosít. A nagyobb lépcsőházban való elhelyezkedés alacsonyabb közös költségeket jelent. A 3 szobás 2 háló + nappali elrendezés előnye: dolgozószoba, vendégszoba vagy gyerekszoba kialakítására egyaránt alkalmas. A lakásokba zárt lépcsőházon keresztül juthatunk. A tágas amerikai konyhás nappali mellett 2 hálószoba, közlekedő, valamint fürdőszoba külön WC áll rendelkezésre. A fűtést és a melegvizet hőszivattyú fogja ellátni, padlófűtéssel, lakásonként egyedi mérési lehetőséggel. Az ár a kulcsrakész állapotra vonatkozik. Ha számít Önnek az egyedi, elegáns környezet, valamint az alacsony fenntartási költségek, akkor ne gondolkozzon tovább! Ideális választás azok számára, akik a természetközelséget és a kényelmet egyaránt értékelik. További információért hívjon bizalommal! Legújabb szolgáltatásként ajánlom minden kedves ügyfelem részére az OTP Bank által közvetített Babaváró, CSOK PLUSZ, Otthon Start Hitelprogram vagy egyéb kölcsönök intézését. Az OTP Ingatlanpont kedvezményes pénzügyi konstrukciókkal áll ügyfelei rendelkezésére! VIP-szolgáltatást nyújtunk az OTP-hiteltermékek ügyintézésében. Jogi és pénzügyi segítséget nyújtanak szakértőink, hogy az adásvétel folyamata gördülékeny legyen. Amennyiben a vételár a kérdés, és úgy gondolja még nincs meg az összeg a leendő új otthonra? Lehet, hogy még is rendelkezésére áll a vételár csak még Ön nem is tudja? Tisztában van valóban az anyagi lehetőségeivel? Az áthidaló megoldásokkal? Esetleg csak az az akadály, hogy nem adta el még a saját ingatlanját? Nem gond, a tulajdonosaink, eladóink szívesen megvárják Önt, segítünk a gyors értékesítésben is. Ne maradjon le a vételről, ha már megtalálta a megfelelő új otthont! Szolgáltatásunk ingyenes, kizárólag sikeres értékesítés esetén van megbízási díj fizetési kötelezettség. A vevők is nálunk vannak és lehet az Ön ingatlanjára várnak?! Tudjon meg többet, hívjon bizalommal! Eladó ingatlanja van? Nincs vevője? Hívjon segítek az értékesítésben! Kedvező hitelajánlatokkal (BABAVÁRÓ hitel, piaci hitel, és szabadfelhasználású hitel) várjuk jelentkezését. Számos konstrukció közül választhatnak. Irodáink Szentes, Petőfi utca 12. (a buszmegálló felől) és Csongrád, Fő utca 54. szám alatt várja a személyes érdeklődőket. ***VÁLASSZUK KI EGYÜTT AZ ÖNNEK LEGMEGFELELŐBB AJÁNLATOT! BANKI SORBAN ÁLLÁS NÉLKÜL! ***

Térkép

A hirdető elérhetősége

OTP Ingatlanpont Csongrád

Arnoth-Kuczora Eszter
+36 30 472