Eladó Lakás
Hirdetéskód: 9185931
Körültekintő Ingatlan - hirdetünk ön helyett!
100 m2
ALAPTERÜLET4
SZOBASZÁMnincs megadva
ÉPÍTÉSnincs megadva
FŰTÉS- Belső szintek 2
- Építés éve 2025
A+++
A++
A+
A
B
C
D
E
F
G
H
I
Az ingatlan leírása
Az ingatlan közvetlenül a tulajdonostól eladó, elérhetősége: Egressi Zsolt
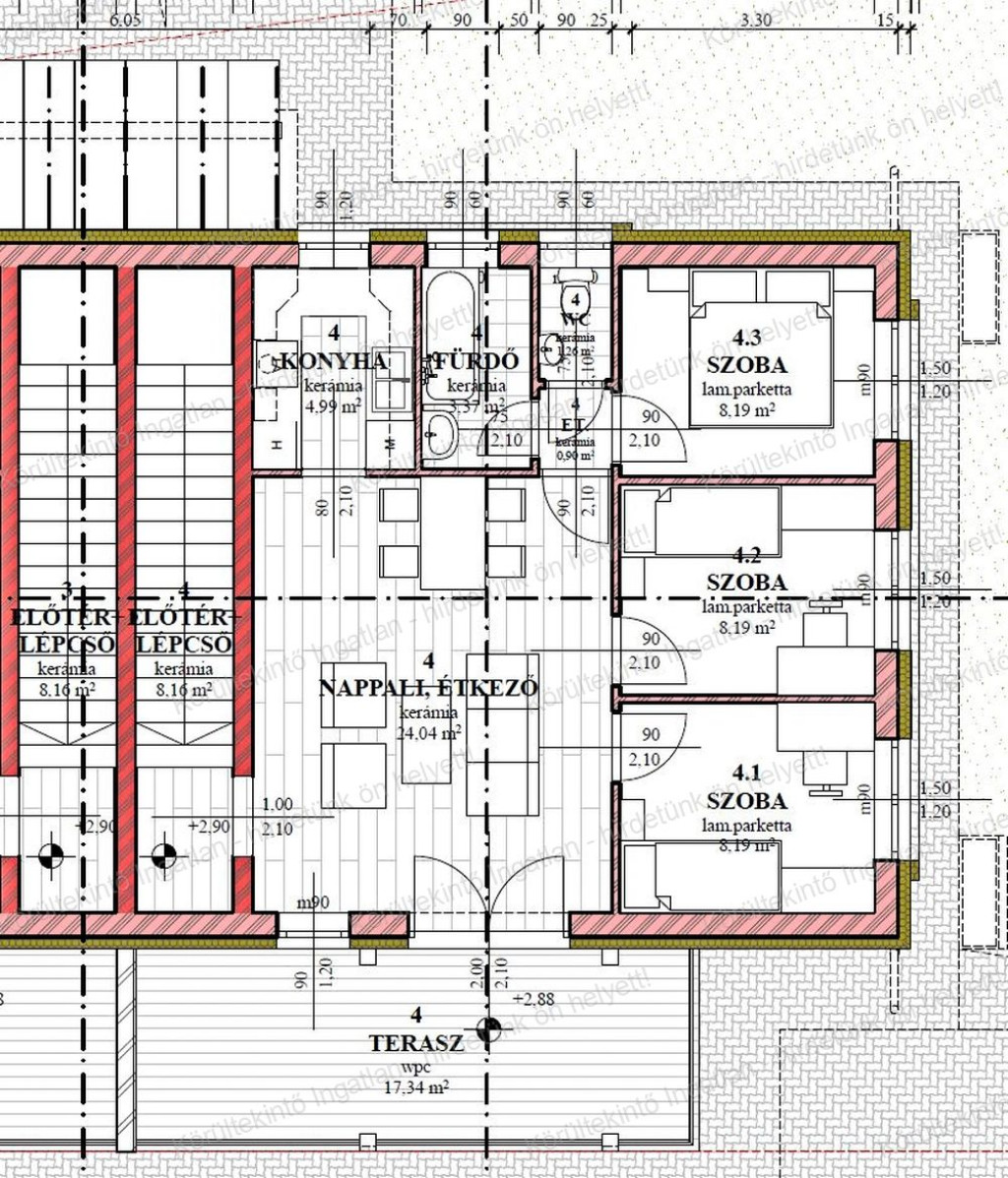
Cegléden, új utcában, új lakóparkban épülő, 4 lakásos társasház 1. emeletén 70 m²-es, 4 szobás, erkélyes (13 nm), kb. 100 nm kizárólagos használatú kerttel és a társasház udvarán belül egy darab, burkolt kocsibeállóval rendelkező tégla lakás eladó.
A lakás nappalija déli fekvésű, a lakás hőszivattyús fűtésű, A+ energetikai besorolású.
Az építkezés folyamatban van, várható átadás: 2025.11.30.
Cegléden, új utcában, új lakóparkban épülő, 4 lakásos társasház 1. emeletén 70 m²-es, 4 szobás, erkélyes (13 nm), kb. 100 nm kizárólagos használatú kerttel és a társasház udvarán belül egy darab, burkolt kocsibeállóval rendelkező tégla lakás eladó.
A lakás nappalija déli fekvésű, a lakás hőszivattyús fűtésű, A+ energetikai besorolású.
Az építkezés folyamatban van, várható átadás: 2025.11.30.