Eladó Lakás
Hirdetéskód: 9290728

Körültekintő Ingatlan - hirdetünk ön helyett!

Felújításhoz személyi kölcsönt keres? Kalkuláljon itt! →
74.00 m2
ALAPTERÜLET
4
SZOBASZÁM
nincs megadva
ÉPÍTÉS
nincs megadva
FŰTÉS
  • Belső szintek 2
  • Építés éve 2026
Energetikai besorolás: Nincs meghatározva
A+++
A++
A+
A
B
C
D
E
F
G
H
I

Az MBH Bank személyi kölcsön ajánlata

Fizetett hirdetés
1 millió Ft
6 évre
20 585 Ft/hó
THM: 14.5%
Részletek →
2 millió Ft
6 évre
41 169 Ft/hó
THM: 14.5%
Részletek →
3 millió Ft
6 évre
61 754 Ft/hó
THM: 14.5%
Részletek →

A tájékoztatás nem teljes körű és nem minősül ajánlattételnek.

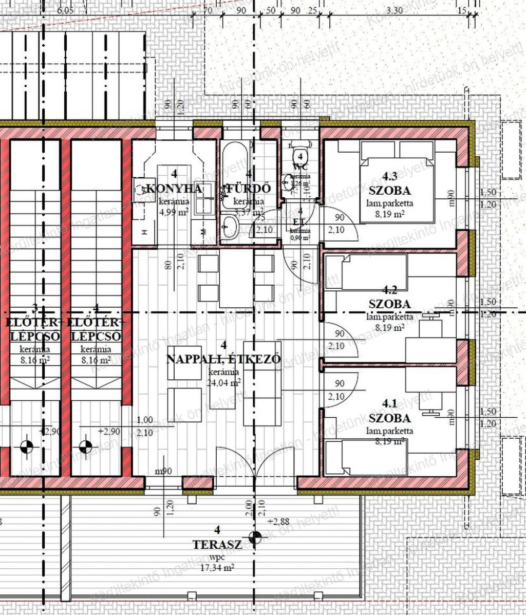
Az ingatlan leírása

Az ingatlan vételárát közvetítői díj nem terheli, közvetlenül a tulajdonossal kerülhet kapcsolatba. Elérhetősége: Egressi Zsolt

Cegléden, új utcában, új lakóparkban épült 4 lakásos társasház 1. emeletén 74 m²-es, 4 szobás, erkélyes (16 + 3,2 nm), kb. 100 nm kizárólagos használatú kerttel és a társasház udvarán belül egy darab, burkolt kocsibeállóval rendelkező tégla lakás eladó.
A lakás nappalija déli fekvésű, a lakás hőszivattyús fűtésű, A+ energetikai besorolású.
A lakás új építésű, használatba vételi engedéllyel rendelkezik.

Térkép

A hirdető elérhetősége

Körültekintő Ingatlan - hirdetünk ön helyett!

Egressi Zsolt (tulajdonos)
+36 30 943