Eladó Lakás
Hirdetéskód: 9312946

GDN Ingatlanhálózat - Csombók ELAN

Felújításhoz személyi kölcsönt keres? Kalkuláljon itt! →
FIX 3% Program

Ez a hirdetés megfelelhet a FIX 3%-os programnak.
Tudj meg többet a részletekről itt.

53.00 m2
ALAPTERÜLET
3
SZOBASZÁM
nincs megadva
ÉPÍTÉS
Geotermikus
FŰTÉS
  • CSOK igénybe vehető nem
  • Tetőtér beépíthető nem
  • Fűtés Geotermikus
  • Klíma nem
  • Szigetelt nem
Energetikai besorolás: Nincs meghatározva
A+++
A++
A+
A
B
C
D
E
F
G
H
I

Az MBH Bank személyi kölcsön ajánlata

Fizetett hirdetés
1 millió Ft
6 évre
20 585 Ft/hó
THM: 14.5%
Részletek →
2 millió Ft
6 évre
41 169 Ft/hó
THM: 14.5%
Részletek →
3 millió Ft
6 évre
61 754 Ft/hó
THM: 14.5%
Részletek →

A tájékoztatás nem teljes körű és nem minősül ajánlattételnek.

Az ingatlan leírása

Soroksár frekventált részén eladó lakások!

Az ingatlan teljesen felújított, új tetőt kapott, 3 rétegű műanyag nyílászárókkal, hűtő-fűtő klímával ellátott.
A lakásokhoz 2db saját gépkocsi beálló tartozik.

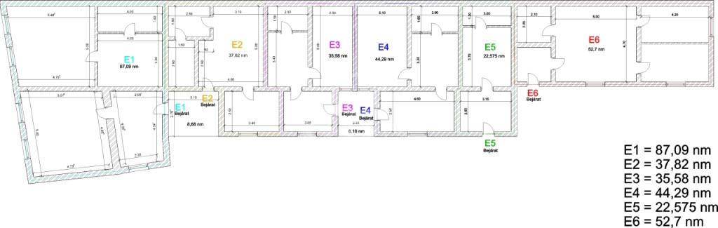
. lakás 52,7 m2
- előtér 4,72 m2
- konyha-nappali 23,5 m2
- szoba 9,7 m2
- szoba 9,7 m2
- fürdő 4,72 m2

A lakások ügyvédi megosztással kerülnek értékesítésre.

- víz 1db főmérő és lakásonként külön mellékmérők,
- villany lakásonként saját mérőórák,

Befektetésnek is kiváló, a környéken 170.000-210.000Ft/hó + rezsi áron vannak hasonló kiadó lakások, ami évente 2.000.000Ft bevételt jelenthet.

Amivel segítjük az Ön ingatlanvásárlását:
- ingyenes hitelügyintézés,
- jogi háttér,
- földhivatali ügyintézés,
- energetikai tanúsítvány.

Irodánk 30 éves szakmai tapasztalattal áll ügyfelei rendelkezésére!
Várom szíves megkeresését. ...TOVÁBBI, TÖBBEZRES INGATLAN KÍNÁLAT: - GDN azonosító: 394525

Térkép

Ingatlan adásvétel ügyvédi díja
238 500 Ft
a hirdetésben szereplő ár alapján
  • A vételár 0,45%-a
  • Szerződéscsomag teljeskörű képviselettel
  • Ingyenes tulajdoni lap ellenőrzés
  • Az ÁFA-t már tartalmazza
Érdekel az ajánlat →
A tájékoztatás nem teljes körű és nem minősül ajánlattételnek. Minimum díj: 150 000 Ft, maximum díj: 600 000 Ft. A díj kizárólag lakóingatlan adásvételére vonatkozik.

A hirdető elérhetősége

GDN Ingatlanhálózat - Csombók ELAN

Szirtes Ágnes
+36 20 268