Eladó Lakás
Hirdetéskód: 9308767
OTP Ingatlanpont - Takács Zsuzsanna
Felújításhoz személyi kölcsönt keres? Kalkuláljon itt! →
Ez a hirdetés megfelelhet a FIX 3%-os programnak.
Tudj meg többet a részletekről itt.
97.00 m2
ALAPTERÜLET2
SZOBASZÁMnincs megadva
ÉPÍTÉSGáz (cirkó)
FŰTÉS- CSOK igénybe vehető nem
- Tetőtér beépíthető nem
- Építés éve 1988
- Fűtés Gáz (cirkó)
- Klíma nem
- Szigetelt nem
A+++
A++
A+
A
B
C
D
E
F
G
H
I
Az ingatlan leírása
Figyelem! Kiváló ár-érték arány! Eladó sorház Budapest, XXIII. kerület közkedvelt részén!
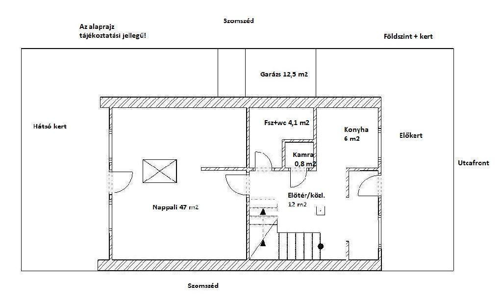
Budapest XXIII. kerületének egyik kedvelt utcájában kínálunk megvételre egy jó állapotú, belső kétszintes, könnyűszerkezetes - Betonyp-lap- sorház lakóegységet, amely igazi otthonos hangulatot áraszt. Az ingatlan jó műszaki állapotú, nettó hasznos 94, bruttó 110 négyzetméter alapterületű, kényelmes elosztású, 2+2 szobával és dupla komforttal rendelkezik. A ház különlegessége a közel 47 négyzetméteres, tágas és világos, kertkapcsolatos nappali, amelyet a korábbi terasz beépítésével alakítottak ki, így igazi központja lehet a családi életnek.
A saját, kizárólagos kerthasználat egy igazi kincs: bár nem nagy, éppen ideális arra, hogy a család kiüljön egy beszélgetésre, kávéra a barátokkal, nyári estéken gyertyafény mellett vacsorázzon, vagy egy kis zölddel vegye körül magát a rohanó hétköznapok után. A kerthez saját garázs is tartozik, az ingatlan minden közműve önálló mérőórával rendelkezik. A ház 1988-ban épült, majd 2002-ben szinte teljes körű felújításon esett át, 2010-ben új konyhabútor került beépítésre, 2018-ban kazáncsere, teraszbeépítés, nappali felújítás történt. A fűtésről gázcirkó és elektromos rendszer gondoskodik, a kellemes komfortérzetet a nappaliban központi klíma, és egy külön klíma biztosítja az emeleten. Az ingatlan OSP és CSOK képes.
Az elhelyezkedés szintén kiemelkedő: a ház nyugodt környezetben található, mégis kiváló közlekedési adottságokkal rendelkezik. A közeli buszjáratok (66, 66E, 123, 135, 166) gyors kapcsolatot biztosítanak a belváros és a környező kerületek felé, a H6-os HÉV-vel pedig szintén könnyedén elérhető a város. Átszállással az M3 metró is rövid idő alatt megközelíthető, autóval pedig néhány perc az M0-s autóút. A közelben minden megtalálható, ami a kényelmes mindennapokhoz szükséges: bevásárlási lehetőségek, iskola, óvoda, önkormányzat, gyógyszertár és orvosi rendelő, sportolási lehetőségek rövid időn belül elérhetőek.
Ez az ingatlan azok számára lehet ideális választás, akik szeretnék a kertvárosi nyugalmat élvezni, miközben tágas, világos terekkel rendelkező, jól karbantartott otthonban élnek, ahol a mindennapok kényelme és a városhoz való jó közlekedési kapcsolat egyaránt adott.
M312220
Az OTP Ingatlanpont, mint egyetlen közvetlen banki hátterű ingatlanközvetítő társaság teljes körű ügyintézéssel áll az eladók és a vevők rendelkezésére! A kínálatunkból választott ingatlan finanszírozásához minősített fogyasztóbarát, piaci és kedvezményes hitel- és lízingkonstrukciókat kínálunk (lakásvásárlási hitel, CSOK plusz, szabad felhasználású hitel, babaváró hitel, céges hitelek, pályázatok, amennyiben az ügyfél és az ingatlan megfelel a feltételeknek). Az adásvételi szerződés megkötéséhez igény szerint megbízható ügyvédi közreműködést biztosítunk, és segítséget nyújtunk az adásvételhez kapcsolódó egyéb ügyek intézéséhez.
Ha az új ingatlana megvásárlásához a jelenlegi ingatlanát el kell adnia, abban is szívesen segítünk.
Budapest XXIII. kerületének egyik kedvelt utcájában kínálunk megvételre egy jó állapotú, belső kétszintes, könnyűszerkezetes - Betonyp-lap- sorház lakóegységet, amely igazi otthonos hangulatot áraszt. Az ingatlan jó műszaki állapotú, nettó hasznos 94, bruttó 110 négyzetméter alapterületű, kényelmes elosztású, 2+2 szobával és dupla komforttal rendelkezik. A ház különlegessége a közel 47 négyzetméteres, tágas és világos, kertkapcsolatos nappali, amelyet a korábbi terasz beépítésével alakítottak ki, így igazi központja lehet a családi életnek.
A saját, kizárólagos kerthasználat egy igazi kincs: bár nem nagy, éppen ideális arra, hogy a család kiüljön egy beszélgetésre, kávéra a barátokkal, nyári estéken gyertyafény mellett vacsorázzon, vagy egy kis zölddel vegye körül magát a rohanó hétköznapok után. A kerthez saját garázs is tartozik, az ingatlan minden közműve önálló mérőórával rendelkezik. A ház 1988-ban épült, majd 2002-ben szinte teljes körű felújításon esett át, 2010-ben új konyhabútor került beépítésre, 2018-ban kazáncsere, teraszbeépítés, nappali felújítás történt. A fűtésről gázcirkó és elektromos rendszer gondoskodik, a kellemes komfortérzetet a nappaliban központi klíma, és egy külön klíma biztosítja az emeleten. Az ingatlan OSP és CSOK képes.
Az elhelyezkedés szintén kiemelkedő: a ház nyugodt környezetben található, mégis kiváló közlekedési adottságokkal rendelkezik. A közeli buszjáratok (66, 66E, 123, 135, 166) gyors kapcsolatot biztosítanak a belváros és a környező kerületek felé, a H6-os HÉV-vel pedig szintén könnyedén elérhető a város. Átszállással az M3 metró is rövid idő alatt megközelíthető, autóval pedig néhány perc az M0-s autóút. A közelben minden megtalálható, ami a kényelmes mindennapokhoz szükséges: bevásárlási lehetőségek, iskola, óvoda, önkormányzat, gyógyszertár és orvosi rendelő, sportolási lehetőségek rövid időn belül elérhetőek.
Ez az ingatlan azok számára lehet ideális választás, akik szeretnék a kertvárosi nyugalmat élvezni, miközben tágas, világos terekkel rendelkező, jól karbantartott otthonban élnek, ahol a mindennapok kényelme és a városhoz való jó közlekedési kapcsolat egyaránt adott.
M312220
Az OTP Ingatlanpont, mint egyetlen közvetlen banki hátterű ingatlanközvetítő társaság teljes körű ügyintézéssel áll az eladók és a vevők rendelkezésére! A kínálatunkból választott ingatlan finanszírozásához minősített fogyasztóbarát, piaci és kedvezményes hitel- és lízingkonstrukciókat kínálunk (lakásvásárlási hitel, CSOK plusz, szabad felhasználású hitel, babaváró hitel, céges hitelek, pályázatok, amennyiben az ügyfél és az ingatlan megfelel a feltételeknek). Az adásvételi szerződés megkötéséhez igény szerint megbízható ügyvédi közreműködést biztosítunk, és segítséget nyújtunk az adásvételhez kapcsolódó egyéb ügyek intézéséhez.
Ha az új ingatlana megvásárlásához a jelenlegi ingatlanát el kell adnia, abban is szívesen segítünk.