Eladó Lakás
Hirdetéskód: 9288723
Dunaharaszti Bocskai utca 10 - OTP Ingatlanpont Iroda
Felújításhoz személyi kölcsönt keres? Kalkuláljon itt! →
Ez a hirdetés megfelelhet a FIX 3%-os programnak.
Tudj meg többet a részletekről itt.
97.00 m2
ALAPTERÜLET2
SZOBASZÁMnincs megadva
ÉPÍTÉSGáz (cirkó)
FŰTÉS- CSOK igénybe vehető nem
- Tetőtér beépíthető nem
- Építés éve 1988
- Fűtés Gáz (cirkó)
- Klíma nem
- Szigetelt nem
A+++
A++
A+
A
B
C
D
E
F
G
H
I
Az ingatlan leírása
Árcsökkenés! Eladó sorház Budapest, XXIII. kerület közkedvelt részén!
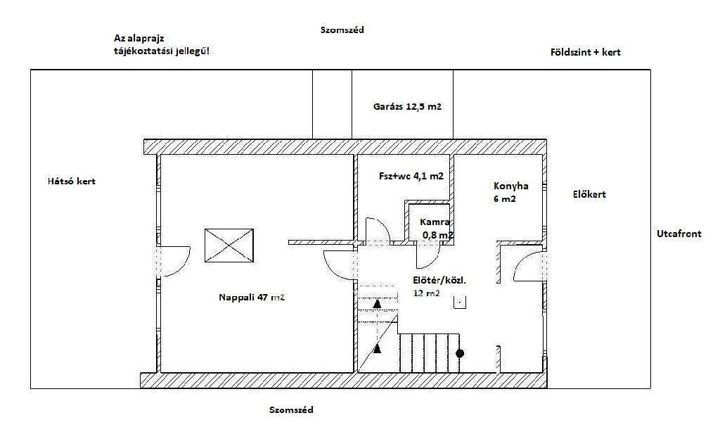
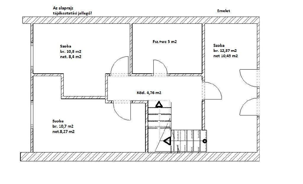
Budapest XXIII. kerületének egyik kedvelt utcájában kínálunk megvételre egy jó állapotú, belső kétszintes, könnyűszerkezetes sorházat, amely igazi otthonos hangulatot áraszt. Az ingatlan nettó 97, bruttó 110 négyzetméter alapterületű, kényelmes elosztású, 2+2 szobával és duplakomforttal rendelkezik. A ház különlegessége a közel 47 négyzetméteres, tágas és világos, kertkapcsolatos nappali, amelyet a korábbi terasz beépítésével alakítottak ki, így igazi központja lehet a családi életnek.
A saját, kizárólagos kerthasználat egy igazi kincs: bár nem nagy, éppen ideális arra, hogy a család kiüljön egy beszélgetésre, kávéra a barátokkal, nyári estéken gyertyafény mellett vacsorázzon, vagy egy kis zölddel vegye körül magát a rohanó hétköznapok után. A kerthez saját garázs is tartozik, az ingatlan minden közműve önálló mérőórával rendelkezik. A ház 1988-ban épült, majd 2001-ben szinte teljes körű felújításon esett át. A fűtésről gázcirkó és elektromos rendszer gondoskodik, a kellemes komfortérzetet a nappaliban központi klíma, és egy külön klíma biztosítja az emeleten.
Az elhelyezkedés szintén kiemelkedő: a ház nyugodt környezetben található, mégis kiváló közlekedési adottságokkal rendelkezik. A közeli buszjáratok (66, 66E, 123, 135, 166) gyors kapcsolatot biztosítanak a belváros és a környező kerületek felé, a H6-os HÉV-vel pedig szintén könnyedén elérhető a város. Átszállással az M3 metró is rövid idő alatt megközelíthető, autóval pedig néhány perc az M0-s autóút. A közelben minden megtalálható, ami a kényelmes mindennapokhoz szükséges: bevásárlási lehetőségek, iskola, óvoda, önkormányzat, gyógyszertár és orvosi rendelő, sportolási lehetőségek rövid időn belül elérhetőek.
Ez az ingatlan azok számára lehet ideális választás, akik szeretnék a kertvárosi nyugalmat élvezni, miközben tágas, világos terekkel rendelkező, jól karbantartott otthonban élnek, ahol a mindennapok kényelme és a városhoz való jó közlekedési kapcsolat egyaránt adott.
Ügyfeleink számára teljes körű ügyintézéssel állunk rendelkezésre. Kínálatunkból választott ingatlan finanszírozásához kedvezményes hitelmegoldásokat kínálunk, illetve az adásvételi szerződés megkötéséhez megbízható ügyvédi közreműködést is tudunk biztosítani!
Ha hirdetésünk felkeltette érdeklődését, kérem hívjon bizalommal a hét bármely napján!
Budapest XXIII. kerületének egyik kedvelt utcájában kínálunk megvételre egy jó állapotú, belső kétszintes, könnyűszerkezetes sorházat, amely igazi otthonos hangulatot áraszt. Az ingatlan nettó 97, bruttó 110 négyzetméter alapterületű, kényelmes elosztású, 2+2 szobával és duplakomforttal rendelkezik. A ház különlegessége a közel 47 négyzetméteres, tágas és világos, kertkapcsolatos nappali, amelyet a korábbi terasz beépítésével alakítottak ki, így igazi központja lehet a családi életnek.
A saját, kizárólagos kerthasználat egy igazi kincs: bár nem nagy, éppen ideális arra, hogy a család kiüljön egy beszélgetésre, kávéra a barátokkal, nyári estéken gyertyafény mellett vacsorázzon, vagy egy kis zölddel vegye körül magát a rohanó hétköznapok után. A kerthez saját garázs is tartozik, az ingatlan minden közműve önálló mérőórával rendelkezik. A ház 1988-ban épült, majd 2001-ben szinte teljes körű felújításon esett át. A fűtésről gázcirkó és elektromos rendszer gondoskodik, a kellemes komfortérzetet a nappaliban központi klíma, és egy külön klíma biztosítja az emeleten.
Az elhelyezkedés szintén kiemelkedő: a ház nyugodt környezetben található, mégis kiváló közlekedési adottságokkal rendelkezik. A közeli buszjáratok (66, 66E, 123, 135, 166) gyors kapcsolatot biztosítanak a belváros és a környező kerületek felé, a H6-os HÉV-vel pedig szintén könnyedén elérhető a város. Átszállással az M3 metró is rövid idő alatt megközelíthető, autóval pedig néhány perc az M0-s autóút. A közelben minden megtalálható, ami a kényelmes mindennapokhoz szükséges: bevásárlási lehetőségek, iskola, óvoda, önkormányzat, gyógyszertár és orvosi rendelő, sportolási lehetőségek rövid időn belül elérhetőek.
Ez az ingatlan azok számára lehet ideális választás, akik szeretnék a kertvárosi nyugalmat élvezni, miközben tágas, világos terekkel rendelkező, jól karbantartott otthonban élnek, ahol a mindennapok kényelme és a városhoz való jó közlekedési kapcsolat egyaránt adott.
Ügyfeleink számára teljes körű ügyintézéssel állunk rendelkezésre. Kínálatunkból választott ingatlan finanszírozásához kedvezményes hitelmegoldásokat kínálunk, illetve az adásvételi szerződés megkötéséhez megbízható ügyvédi közreműködést is tudunk biztosítani!
Ha hirdetésünk felkeltette érdeklődését, kérem hívjon bizalommal a hét bármely napján!