Eladó Lakás
Hirdetéskód: 9242528
GDN Ingatlanhálózat - Harmónia
Felújításhoz személyi kölcsönt keres? Kalkuláljon itt! →
Ez a hirdetés megfelelhet a FIX 3%-os programnak.
Tudj meg többet a részletekről itt.
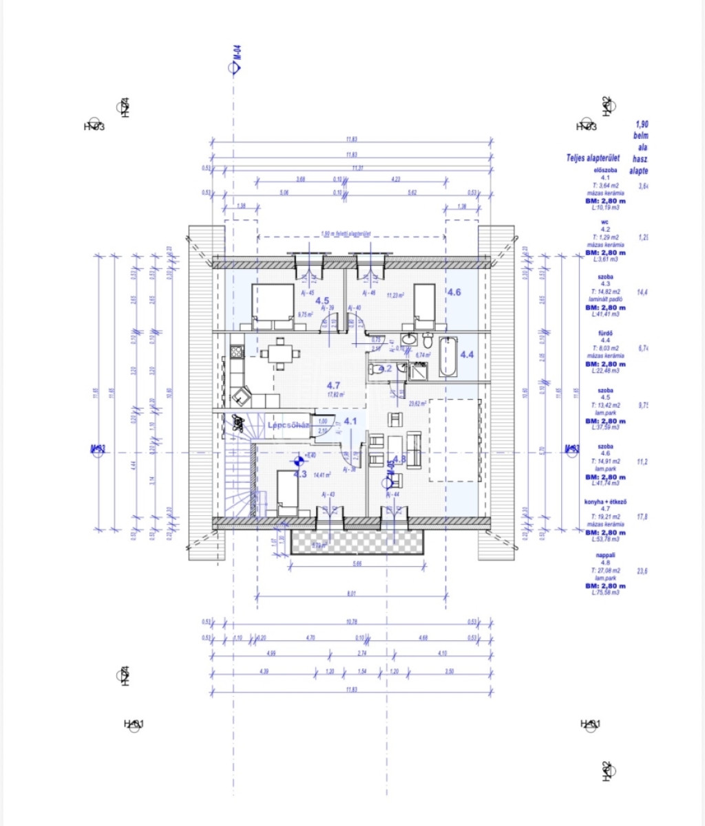
84.00 m2
ALAPTERÜLET3
SZOBASZÁMnincs megadva
ÉPÍTÉSnincs megadva
FŰTÉS- CSOK igénybe vehető nem
- Tetőtér beépíthető nem
- Klíma nem
- Szigetelt nem
A+++
A++
A+
A
B
C
D
E
F
G
H
I
Az ingatlan leírása
Eladó felújított lakás Soroksáron – Lórév utca
Soroksáron, a Lórév utcában, egy 4 lakásos társasház tetőterében kínálok eladásra egy teljes körűen felújított lakást.
Az ingatlan tégláig visszabontásra került, a teljes víz- és elektromos hálózat cserélve lett.
Fűtés–hűtés: modern hibrid rendszer (hőszivattyú + gáz),
padlófűtéssel és mennyezeti hűtéssel a komfortos, energiatakarékos működésért.
A lakáshoz tartozik:
• önálló pincei tároló
• 1 db nyitott udvari gépkocsi-beálló
(mindkettő a vételár részét képezi)
Várható befejezés: 2026. július
Ideális választás korszerű, alacsony fenntartású otthont keresőknek. ...TOVÁBBI, TÖBBEZRES INGATLAN KÍNÁLAT: - GDN azonosító: 391026
Soroksáron, a Lórév utcában, egy 4 lakásos társasház tetőterében kínálok eladásra egy teljes körűen felújított lakást.
Az ingatlan tégláig visszabontásra került, a teljes víz- és elektromos hálózat cserélve lett.
Fűtés–hűtés: modern hibrid rendszer (hőszivattyú + gáz),
padlófűtéssel és mennyezeti hűtéssel a komfortos, energiatakarékos működésért.
A lakáshoz tartozik:
• önálló pincei tároló
• 1 db nyitott udvari gépkocsi-beálló
(mindkettő a vételár részét képezi)
Várható befejezés: 2026. július
Ideális választás korszerű, alacsony fenntartású otthont keresőknek. ...TOVÁBBI, TÖBBEZRES INGATLAN KÍNÁLAT: - GDN azonosító: 391026