Eladó Lakás
Hirdetéskód: 9278919
GDN Ingatlanhálózat - Csombók ELAN
Felújításhoz személyi kölcsönt keres? Kalkuláljon itt! →52.00 m2
ALAPTERÜLET2
SZOBASZÁMnincs megadva
ÉPÍTÉSnincs megadva
FŰTÉS- CSOK igénybe vehető nem
- Tetőtér beépíthető nem
- Klíma nem
- Szigetelt nem
A+++
A++
A+
A
B
C
D
E
F
G
H
I
Az ingatlan leírása
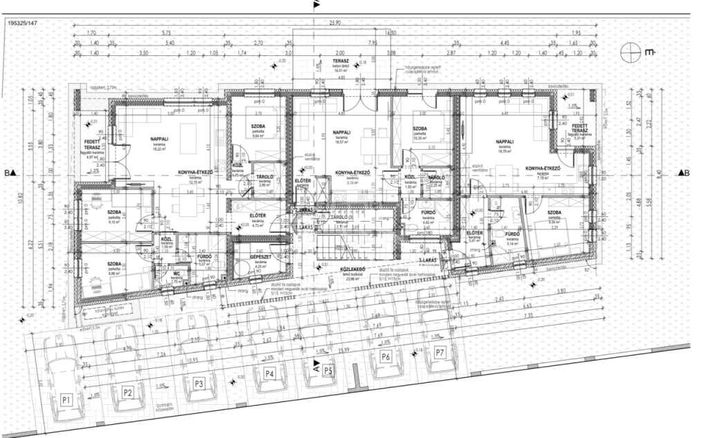
Eladó egy új építésű, összesen 6 lakásból álló társasház valamennyi lakása.
Az ingatlan 3%-os Otthon Start hitellel is megvásárolható.
Az ingatlan Soroksár új kertvárosi lakóparkjában, csendes, családbarát környezetben található, ahol a nyugodt életvitel és a jó városi elérhetőség harmonikusan találkozik.
A város zajától távol, mégis kiváló infrastruktúrával rendelkezik: üzletek, szolgáltatások és tömegközlekedés könnyen elérhetők.
A Soroksári kiserdő és a Duna közelsége különleges, természetközeli hangulatot biztosít, amely valódi otthonérzetet nyújt a leendő tulajdonosok számára.
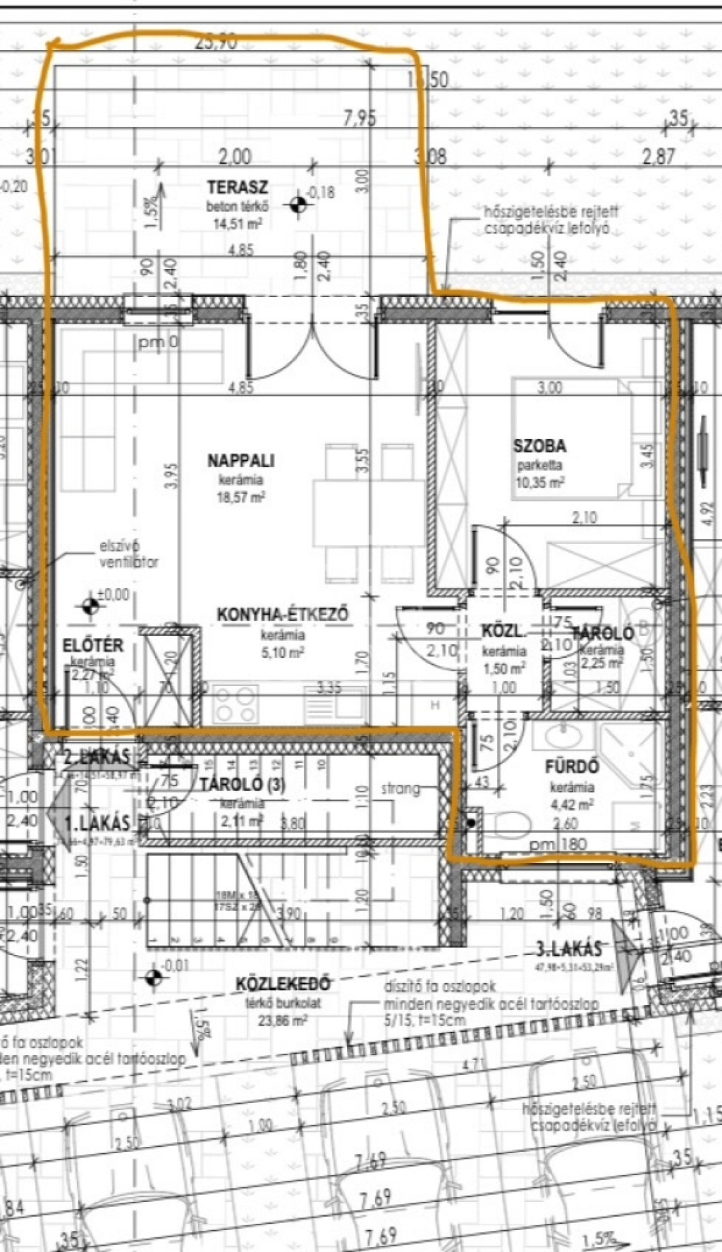
2. lakás:
- Földszint,
- 45 nm,
- 1 szoba,
- Amerikai konyhás nappali,
- 14,5 nm Terasz,
- Fürdő-wc,
- Kamra.
- 65.250.000 Ft
További lakások a földszinten:
1. lakás: 108.750.000 Ft
3. lakás: 69.600.000 Ft
MŰSZAKI TARTALOM
Szerkezet és szigetelés
• ProKoncept rendszerű falazat (25–35 cm vastagság)
• 15 cm vastag grafitos hőszigetelés a homlokzaton
• Lábazati és koszorú előtti hőszigetelés
• Talajnedvesség elleni bitumenes szigetelés
• Kiemelkedő hő- és hangszigetelési tulajdonságok
Tető
• Égetett agyag cserépfedés
• Alacsony hajlásszögű tetőrészeken korcolt fémlemez fedés
• Tartós, időjárásálló szerkezeti kialakítás
Nyílászárók
• Műanyag nyílászárók, 3 rétegű hőszigetelő üvegezéssel
• Jó hő- és hangszigetelési értékek
• Teraszajtók szintén 3 rétegű üvegezéssel
Fűtés – gépészet
• Levegő–víz hőszivattyús fűtési rendszer
• Felületfűtés (padlófűtés)
• Elektromos bojleres melegvíz-ellátás
Energia & jövőállóság
• Energiatakarékos, korszerű műszaki megoldások
• Napelem későbbi kiépítésének lehetősége
• Elektromos autó töltés előkészítése
Burkolatok, belső kialakítás
• Gipszkarton álmennyezet
• Burkolatok magas minőségben, választható kivitelben
Parkolás, környezet
• Telken belüli parkolás
• Minden lakáshoz saját autóbeálló
• Földszinti lakásokhoz saját kis kert
• Aszfaltozott utca, kiépített közművek
Az elkészült lakások lakhatási engedéllyel kerülnek átadásra!!!
Tervezett átadás: 2026. év vége!
Ütemezés: 20% foglaló, a fennmaradó összeg megbeszélés alapján.
Irodánk 30 éves szakmai tapasztalattal áll ügyfelei rendelkezésére!
Bankfüggetlen hitelcentrummal, jogi hátérrel segítjük ingatlanvásárlását!
Várom szíves megkeresését, hívjon bizalommal! ...TOVÁBBI, TÖBBEZRES INGATLAN KÍNÁLAT: - GDN azonosító: 392885
Az ingatlan 3%-os Otthon Start hitellel is megvásárolható.
Az ingatlan Soroksár új kertvárosi lakóparkjában, csendes, családbarát környezetben található, ahol a nyugodt életvitel és a jó városi elérhetőség harmonikusan találkozik.
A város zajától távol, mégis kiváló infrastruktúrával rendelkezik: üzletek, szolgáltatások és tömegközlekedés könnyen elérhetők.
A Soroksári kiserdő és a Duna közelsége különleges, természetközeli hangulatot biztosít, amely valódi otthonérzetet nyújt a leendő tulajdonosok számára.
2. lakás:
- Földszint,
- 45 nm,
- 1 szoba,
- Amerikai konyhás nappali,
- 14,5 nm Terasz,
- Fürdő-wc,
- Kamra.
- 65.250.000 Ft
További lakások a földszinten:
1. lakás: 108.750.000 Ft
3. lakás: 69.600.000 Ft
MŰSZAKI TARTALOM
Szerkezet és szigetelés
• ProKoncept rendszerű falazat (25–35 cm vastagság)
• 15 cm vastag grafitos hőszigetelés a homlokzaton
• Lábazati és koszorú előtti hőszigetelés
• Talajnedvesség elleni bitumenes szigetelés
• Kiemelkedő hő- és hangszigetelési tulajdonságok
Tető
• Égetett agyag cserépfedés
• Alacsony hajlásszögű tetőrészeken korcolt fémlemez fedés
• Tartós, időjárásálló szerkezeti kialakítás
Nyílászárók
• Műanyag nyílászárók, 3 rétegű hőszigetelő üvegezéssel
• Jó hő- és hangszigetelési értékek
• Teraszajtók szintén 3 rétegű üvegezéssel
Fűtés – gépészet
• Levegő–víz hőszivattyús fűtési rendszer
• Felületfűtés (padlófűtés)
• Elektromos bojleres melegvíz-ellátás
Energia & jövőállóság
• Energiatakarékos, korszerű műszaki megoldások
• Napelem későbbi kiépítésének lehetősége
• Elektromos autó töltés előkészítése
Burkolatok, belső kialakítás
• Gipszkarton álmennyezet
• Burkolatok magas minőségben, választható kivitelben
Parkolás, környezet
• Telken belüli parkolás
• Minden lakáshoz saját autóbeálló
• Földszinti lakásokhoz saját kis kert
• Aszfaltozott utca, kiépített közművek
Az elkészült lakások lakhatási engedéllyel kerülnek átadásra!!!
Tervezett átadás: 2026. év vége!
Ütemezés: 20% foglaló, a fennmaradó összeg megbeszélés alapján.
Irodánk 30 éves szakmai tapasztalattal áll ügyfelei rendelkezésére!
Bankfüggetlen hitelcentrummal, jogi hátérrel segítjük ingatlanvásárlását!
Várom szíves megkeresését, hívjon bizalommal! ...TOVÁBBI, TÖBBEZRES INGATLAN KÍNÁLAT: - GDN azonosító: 392885