Eladó Lakás
Hirdetéskód: 9256289
GDN Ingatlanhálózat - Csombók ELAN
Ez a hirdetés megfelelhet a FIX 3%-os programnak.
Tudj meg többet a részletekről itt.
52.00 m2
ALAPTERÜLET2
SZOBASZÁMnincs megadva
ÉPÍTÉSnincs megadva
FŰTÉS- CSOK igénybe vehető nem
- Tetőtér beépíthető nem
- Klíma nem
- Szigetelt nem
A+++
A++
A+
A
B
C
D
E
F
G
H
I
Az ingatlan leírása
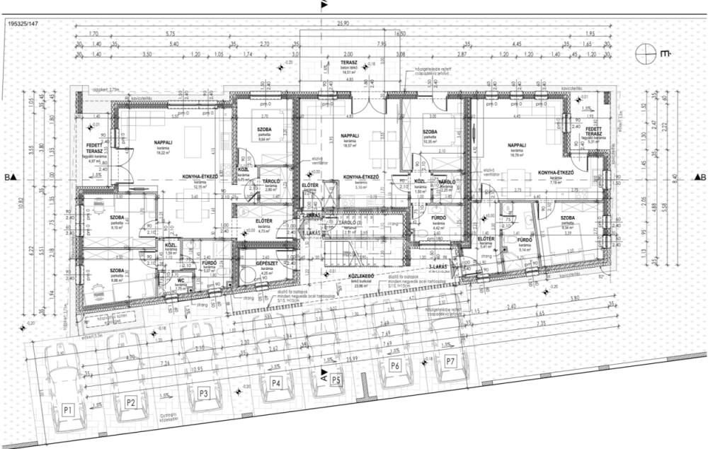
Eladó egy új építésű, összesen 6 lakásból álló társasház valamennyi lakása.
Az ingatlan Soroksár új kertvárosi lakóparkjában, csendes, családbarát környezetben található, ahol a nyugodt életvitel és a jó városi elérhetőség harmonikusan találkozik.
A város zajától távol, mégis kiváló infrastruktúrával rendelkezik: üzletek, szolgáltatások és tömegközlekedés könnyen elérhetők.
A Soroksári kiserdő és a Duna közelsége különleges, természetközeli hangulatot biztosít, amely valódi otthonérzetet nyújt a leendő tulajdonosok számára.
1. lakás:
- Földszint,
- 75 nm,
- 3 szoba,
- Amerikai konyhás nappali,
- 1 Fürdő,
- 1Wc,
- Terasz 5 nm.
- 108.750.000 Ft
A meghirdetett lakás:
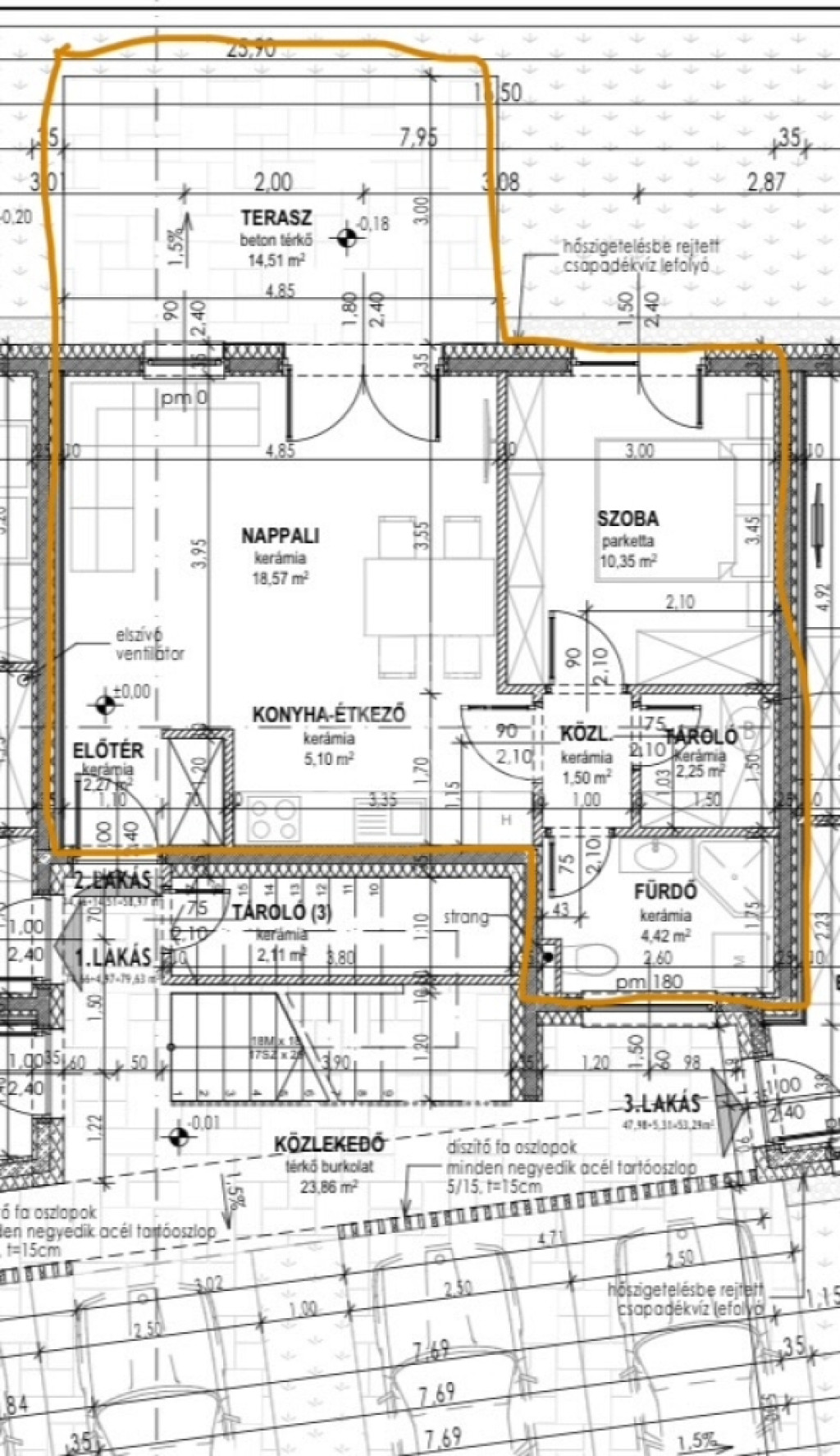
2. lakás:
- Földszint,
- 45 nm,
- 1 szoba,
- Amerikai konyhás nappali,
- 14,5 nm Terasz,
- Fürdő-wc,
- Kamra.
- 65.000.000 Ft
3. lakás:
- Földszint,
- 48 nm,
- 1 szoba,
- Amerikai konyhás nappali,
- 5nm terasz,
- Fürdő-wc.
- 69.000.000 Ft
4. lakás:
- Emelet,
- 69 nm,
- 3 szoba,
- Amerikai konyhás nappali,
- 1 wc,
- 1 Fürdő,
- Erkély 7nm.
- 100.000.000 Ft
5. lakás:
- Emelet,
- 53,5 nm,
- 2 szoba,
- Amerikai konyhás nappali,
- Fürdő-Wc,
- Kamra,
- Erkély 3,7nm.
- 77.000.000 Ft
6. lakás:
- Emelet,
- 48 nm,
- 1 szoba,
- Amerikai konyhás nappali,
- Fürdő-Wc,
- Kamra,
- Erkély 5nm.
- 69.000.000 Ft
Minden lakáshoz tartozik egy autóbeálló a ház előtt.
Földszinti lakásokhoz kicsi kert is tartozik.
Az elkészült lakások lakhatási engedéllyel kerülnek átadásra!!!
Tervezett átadás: 2026. év vége!
Ütemezés: 20% foglaló, a fennmaradó összeg megbeszélés alapján.
Az ingatlanok 3%-os Otthon Start hitellel is megvásárolhatóak.
Irodánk 30 éves szakmai tapasztalattal áll ügyfelei rendelkezésére!
Bankfüggetlen hitelcentrummal, jogi hátérrel segítjük ingatlanvásárlását!
Várom szíves megkeresését, hívjon bizalommal! ...TOVÁBBI, TÖBBEZRES INGATLAN KÍNÁLAT: - GDN azonosító: 391986
Az ingatlan Soroksár új kertvárosi lakóparkjában, csendes, családbarát környezetben található, ahol a nyugodt életvitel és a jó városi elérhetőség harmonikusan találkozik.
A város zajától távol, mégis kiváló infrastruktúrával rendelkezik: üzletek, szolgáltatások és tömegközlekedés könnyen elérhetők.
A Soroksári kiserdő és a Duna közelsége különleges, természetközeli hangulatot biztosít, amely valódi otthonérzetet nyújt a leendő tulajdonosok számára.
1. lakás:
- Földszint,
- 75 nm,
- 3 szoba,
- Amerikai konyhás nappali,
- 1 Fürdő,
- 1Wc,
- Terasz 5 nm.
- 108.750.000 Ft
A meghirdetett lakás:
2. lakás:
- Földszint,
- 45 nm,
- 1 szoba,
- Amerikai konyhás nappali,
- 14,5 nm Terasz,
- Fürdő-wc,
- Kamra.
- 65.000.000 Ft
3. lakás:
- Földszint,
- 48 nm,
- 1 szoba,
- Amerikai konyhás nappali,
- 5nm terasz,
- Fürdő-wc.
- 69.000.000 Ft
4. lakás:
- Emelet,
- 69 nm,
- 3 szoba,
- Amerikai konyhás nappali,
- 1 wc,
- 1 Fürdő,
- Erkély 7nm.
- 100.000.000 Ft
5. lakás:
- Emelet,
- 53,5 nm,
- 2 szoba,
- Amerikai konyhás nappali,
- Fürdő-Wc,
- Kamra,
- Erkély 3,7nm.
- 77.000.000 Ft
6. lakás:
- Emelet,
- 48 nm,
- 1 szoba,
- Amerikai konyhás nappali,
- Fürdő-Wc,
- Kamra,
- Erkély 5nm.
- 69.000.000 Ft
Minden lakáshoz tartozik egy autóbeálló a ház előtt.
Földszinti lakásokhoz kicsi kert is tartozik.
Az elkészült lakások lakhatási engedéllyel kerülnek átadásra!!!
Tervezett átadás: 2026. év vége!
Ütemezés: 20% foglaló, a fennmaradó összeg megbeszélés alapján.
Az ingatlanok 3%-os Otthon Start hitellel is megvásárolhatóak.
Irodánk 30 éves szakmai tapasztalattal áll ügyfelei rendelkezésére!
Bankfüggetlen hitelcentrummal, jogi hátérrel segítjük ingatlanvásárlását!
Várom szíves megkeresését, hívjon bizalommal! ...TOVÁBBI, TÖBBEZRES INGATLAN KÍNÁLAT: - GDN azonosító: 391986