Eladó Lakás
Hirdetéskód: 9320934

Fővállalkozó Balla és Balla Kft

Felújításhoz személyi kölcsönt keres? Kalkuláljon itt! →
FIX 3% Program

Ez a hirdetés megfelelhet a FIX 3%-os programnak.
Tudj meg többet a részletekről itt.

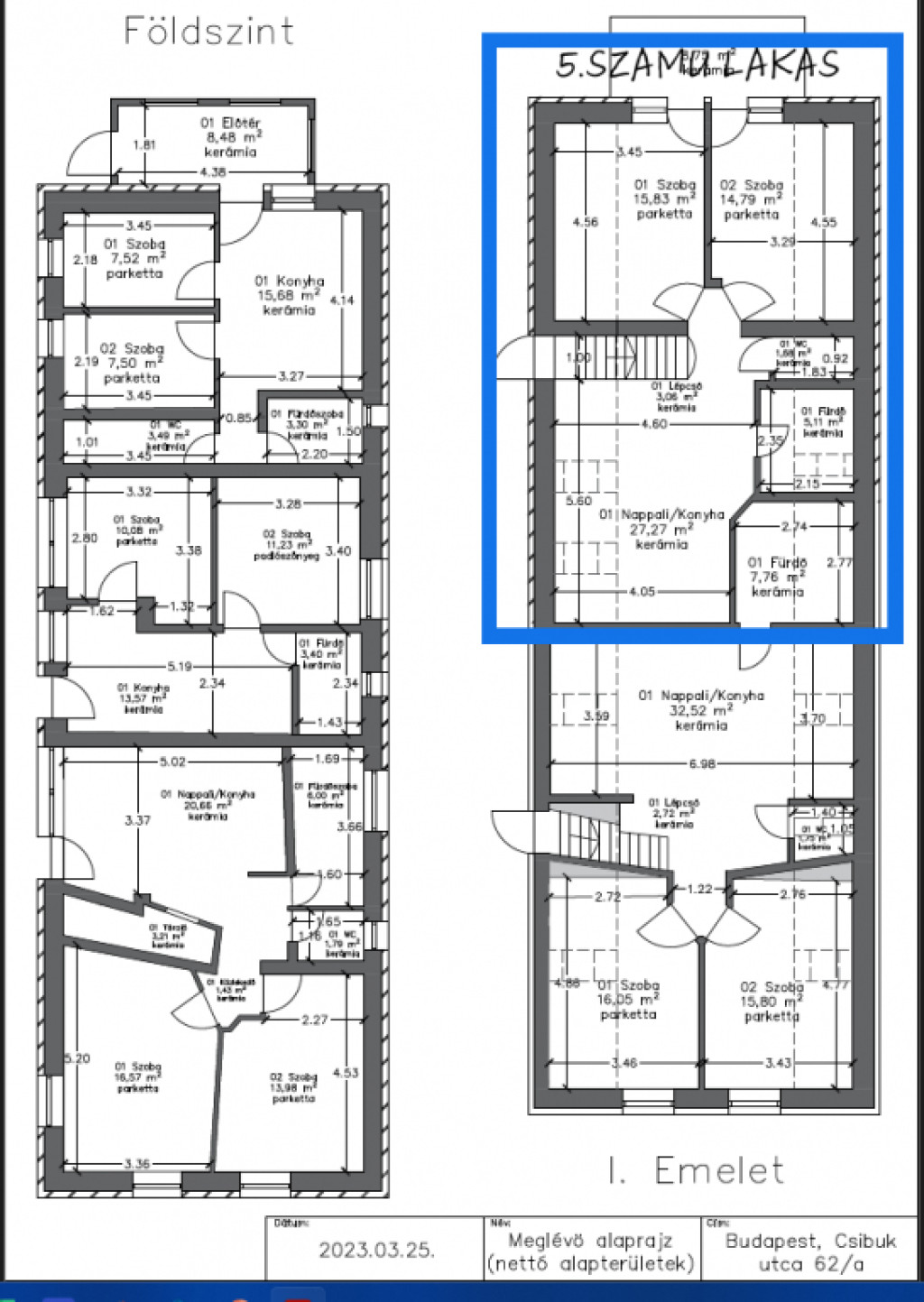
75.00 m2
ALAPTERÜLET
3
SZOBASZÁM
nincs megadva
ÉPÍTÉS
nincs megadva
FŰTÉS
  • CSOK igénybe vehető nem
  • Tetőtér beépíthető nem
  • Klíma nem
  • Szigetelt nem
Energetikai besorolás: Nincs meghatározva
A+++
A++
A+
A
B
C
D
E
F
G
H
I

Az MBH Bank személyi kölcsön ajánlata

Fizetett hirdetés
1 millió Ft
6 évre
20 585 Ft/hó
THM: 14.5%
Részletek →
2 millió Ft
6 évre
41 169 Ft/hó
THM: 14.5%
Részletek →
3 millió Ft
6 évre
61 754 Ft/hó
THM: 14.5%
Részletek →

A tájékoztatás nem teljes körű és nem minősül ajánlattételnek.

Az ingatlan leírása

KEDVELT RÉSZEN SOROKSÁRON FIATALOS, TELJESEN ÚJ NAPPALI + KÉT HÁLÓS LAKÁS ELADÓ!

- 75NM + 8 NM KERTRE NÉZŐ ERKÉLY
- NAPPALI - KONYHÁVAL - ÉTKEZŐVEL + KÉT HÁLÓSZOBA ERKÉLLYEL + KÜLÖN TOALETT + KÁDAS FÜRDŐSZOBA
- TARTOZIK HOZZÁ UDVARON BELÜL EGY SAJÁT KOCSIBEÁLLÓ IS

A LAKÁS NAGYON HANGULATOS MODERN ELOSZTÁSÚ ÉS KIVITELEZÉSŰ

- MINDEN TELJESEN ÚJ, LAKVA MÉG NEM VOLT
- KLÍMÁVAL RENDELKEZIK
- MELEG VIZET VILLANY BOJLER ADJA
- FŰTÉSE CIRKÓS KAZÁNNAL RADIÁTOROKON KERESZTÜL

- A LAKÁS EGY 5 LAKÁSOS HÁZON BELÜL AZ EMELETEN TALÁLHATÓ
- TELJESEN KÜLÖN KÖZMŰVEKKEL, ÜGYVÉD ÁLTAL SZERKESZTETT HASZNÁLATI MEGOSZTÁSSAL

- KIJELÖLT HELYEN KOCSIBEÁLLÓ IS TARTOZIK A LAKÁSHOZ

ÉRDEMES MEGNÉZNI

AZ INGATLAN A CSIBUK UTCÁBAN TALÁLHATÓ, SZÉP, GONDOZOTT SZÉLES UTCÁBAN

TOVÁBBI INFÓ
GŐZ BERNADETT

Térkép

Ingatlan adásvétel ügyvédi díja
391 050 Ft
a hirdetésben szereplő ár alapján
  • A vételár 0,45%-a
  • Szerződéscsomag teljeskörű képviselettel
  • Ingyenes tulajdoni lap ellenőrzés
  • Az ÁFA-t már tartalmazza
Érdekel az ajánlat →
A tájékoztatás nem teljes körű és nem minősül ajánlattételnek. Minimum díj: 150 000 Ft, maximum díj: 600 000 Ft. A díj kizárólag lakóingatlan adásvételére vonatkozik.

A hirdető elérhetősége

Fővállalkozó Balla és Balla Kft

Gőz Bernadett
+36 70 442