Eladó Lakás
Hirdetéskód: 9250353

Tatár Szabolcs

86.00 m2
ALAPTERÜLET
4
SZOBASZÁM
Tégla
ÉPÍTÉS
Hőszivattyú
FŰTÉS
  • Belső szintek 1
  • Kilátás Kertre néző
  • Ingatlan komfort Duplakomfortos
  • Parkolási lehetőség Udvari beálló
  • Építés éve 2026
  • Fűtés Hőszivattyú
  • Építőanyag Tégla
  • Erkély, terasz Terasz 6.00m2
  • Kertkapcsolat igen
  • Szigetelt igen
  • Bútorozott nem
Energetikai besorolás: Nincs meghatározva
A+++
A++
A+
A
B
C
D
E
F
G
H
I

Az ingatlan leírása

Hivatkozzon erre, kód: 5087TSZ


- ÚJ ÉPÍTÉSŰ LAKÁSOK


- KÖLTSÉGHATÉKONY, ÉRTÉKÁLLÓ BEFEKTETÉS


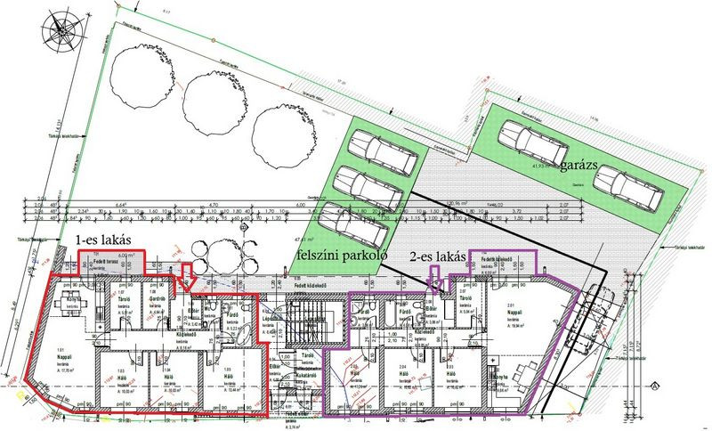
- NAPPALI + 2-3 SZOBA, FELSZÍNI PARKOLÓ


- IGÉNY SZERINTI BEFEJEZÉS, MAGAS MŰSZAKI TARTALOM


Budafok csendes, zöldövezeti részén új építésű 5 lakásos társasházban költséghatékony, kényelmes terekkel rendelkező nappali + 2-3 szobás lakások leköthetők gk. beállóval, igény szerinti befejezéssel.


Várható átadás: 2026. december.


A kivitelező több éves tapasztalattal, számos referencia ingatlannal rendelkezik.


JELEN HIRDETÉSBEN SZEREPLŐ LAKÁS:


Földszint 2-es lakás – 119.000.000,- Ft (86.38m2 + fedett terasz 6m2): előtér (3.06m2), konyha (9.86m2) – étkező – nappali (19.94m2), szoba (10.62m2), szoba (10.62m2), szoba (11.25m2), közlekedő (8.85m2), tároló (5.04m2), fürdőszoba (4.08m2), fürdő (3.06m2), fedett terasz (6m2). /Kód: 5087/


AZ ÉPÜLETBEN TALÁLHATÓ TOVÁBBI LAKÁS KÍNÁLATOK:


FÖLDSZINT:


1-es lakás – 129.000.000,- Ft (88.16m2 + fedett terasz 6m2): előtér (3.42m2), közlekedő (8.16m2), wc (1.98m2), fürdőszoba (5.22m2), szoba (13.44m2), szoba (10.03m2), szoba (10.03m2), gardrób (4.64m2), tároló (5.51m2), konyha (8.03m2) – étkező – nappali (17.70m2), fedett terasz (6m2). /Kód: 5086/


EMELET:


3-as lakás: ELADVA!


4-es lakás – 79.900.000,- Ft (55.27m2): előtér (4.59m2), dolgozó – kis szoba (5.22m2), tároló (2.02m2), fürdőszoba (4.50m2), szoba (12.16m2), konyha (8.28m2) – étkező – nappali (18.50m2). /kód: 5089/


5-ös lakás – 99.900.000,- Ft (65.13m2 + erkély 6m2): előtér (3.06m2), közlekedő (5.50m2), tároló (5.04m2), wc (1.09m2), fürdőszoba (3.98m2), szoba (10.62m2), szoba (10.62m2), konyha (7.21m2) – étkező – nappali (18.01m2), erkély (6m2). /Kód: 5090/


Szerkezeti leírás: Az épület beton alapra épül. 30-as tégla főfalak + 15cm grafitos dryvit szigetelés. 10-es vakolt tégla válaszfalak. Kívül barnára színterezett 3 rétegű bukó – nyíló, műanyag szerkezetű nyílászárók – redőnytokokkal ellátva. A közbenső födém betongerendás, míg a zárófödém fa szerkezetű + 20cm kőzetgyapot szigetelés. Cserép fedésű tető, alatta fóliaréteg.


Az igény szerinti befejezésnek köszönhetően a beltéri ajtók 70.000,- Ft / db áron, a meleg burkolatok 5.000,- Ft / m2, a hideg burkolatok 7.000,- Ft / m2 árig választhatóak. Lehetpség van az igény szerinti szaniterek kiválasztására is.
Riasztó előkészítést és viacolorozott autóbeállót tartalmaz a vételár.


Fűtés, meleg víz ellátás: A lakások fűtése és meleg víz ellátása energiatakarékos 10Kw-os Fischer típusú hőszivattyúról biztosított. A fűtést minden helyiségben padlófűtés szolgáltatja.


Parkolás: zárt udvaron belül lakásonként 1 gépkocsinak fedetlen-felszíni beálló áll rendlekezésre.


Megközleíthetőség és infrastruktúra kiváló! Buszmegálló, villamosmegálló pár perc sétatávolságra található. Közintézmények, bevásárlási lehetőségek szintén a közelben.


További hasonló ingatlanok találhatók még a kínálatunkban!


Szüksége van hitelre? SEGÍTÜNK!


Bankfüggetlen hitel tanácsadónk díjmentesen áll az Ön rendelkezésére! Keressen bizalommal!


A hirdetésben szereplő adatok, információk, képek, alaprajzok stb... tájékoztató jellegűek! Irodánk az esetleges elírásokért felelősséget nem tud vállalni!  


Tájékoztatjuk a Tisztelt Érdeklődőket, hogy az ingatlan hirdetésében szereplő telefonszám felhívásával Önök hozzájárulnak személyes adataik (név, telefonszám), a hirdetést feladó -Otthonplusz.hu Kft. - által a bizalmas kezeléshez és nyilvántartáshoz. 

Térkép

A hirdető elérhetősége

Otthon Plusz Ingatlanközvetítő Iroda

Tatár Szabolcs
+36 70 432