Eladó Lakás
Hirdetéskód: 9237272
OTP Ingatlanpont - Budapest IX. ker., Üllői út 21.
115 m2
ALAPTERÜLET4
SZOBASZÁMnincs megadva
ÉPÍTÉSnincs megadva
FŰTÉS- CSOK igénybe vehető nem
- Tetőtér beépíthető nem
- Építés éve 1970
- Klíma nem
- Szigetelt nem
A+++
A++
A+
A
B
C
D
E
F
G
H
I
Az ingatlan leírása
FÖLDSZINTI LAKÁS KERTESHÁZBAN ELADÓ DUNATELEPEN
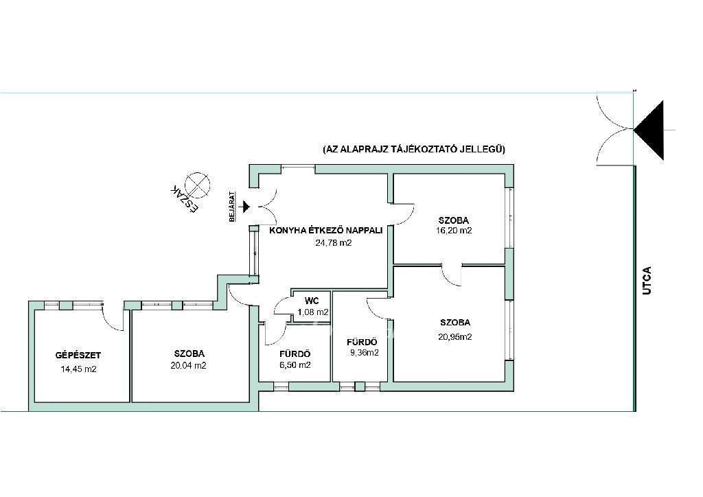
Eladásra kínálunk egy 115 m2-es amerikai konyhás nappali + három teljes értékű szobás, két fürdőszobás, külön wc-vel ellátott földszinti lakást.
A fűtést automata váltókapcsolóval ellátott gáz cirko-, vagy vegyestüzelésű kazán biztosítja egy külön helyiségben, mely háztartási helyiségként is használható.
Az épület szigetelt, a lakást 2005-ben teljeskörűen felújították, azóta is folyamatosan karbantartják.
A kert a három lakás közös használatában áll. Találunk benne kerti sütögetőt kemencével, bringa tárolót, kertibútor tárolót, fedett kiülőt, kis játszóteret mászókával. Igény szerint saját használatú kertrész is kialakítható, ez megegyezés kérdése. A használati megosztási szerződés elkészítése még folyamatban van, alakítható.
A parkolás a telken belül, és az utcán is lehetséges. Az utca zsákutca, átmenő forgalomtól mentes.
Az utca végén Duna part, Kis-Háros sziget, természetvédelmi terület, lovarda, kajak-kenu egyesület és SUP kölcsönzési lehetőség!
Az ingatlan közvetlen közelében helyezkedik el a Dunapart ABC, mely élelmiszer kiskereskedés. 800m-re pedig két élelmiszer áruházlánci egység is elérhető (ALDI, LIDL). Bevásárló központ két kilométerre található, ahol a közműszolgáltatók, telefontársaságok kirendeltségein kívül posta, gyógyszertár, fodrász, fitnesz-terem, benzinkút is megtalálható (CAMPONA Bevásárló Központ)
Háziorvosi rendelő, bölcsőde, óvoda, iskola, 1 km távolságra.
A közelben éjszakai és nappali BKV járatok, agglomeráció felé közlekedő távolsági buszok megállói, és vasútállomás is található, a part mentén kerékpárút vezet, melyen szintén elérhetjük a belvárost.
Eladásra kínálunk egy 115 m2-es amerikai konyhás nappali + három teljes értékű szobás, két fürdőszobás, külön wc-vel ellátott földszinti lakást.
A fűtést automata váltókapcsolóval ellátott gáz cirko-, vagy vegyestüzelésű kazán biztosítja egy külön helyiségben, mely háztartási helyiségként is használható.
Az épület szigetelt, a lakást 2005-ben teljeskörűen felújították, azóta is folyamatosan karbantartják.
A kert a három lakás közös használatában áll. Találunk benne kerti sütögetőt kemencével, bringa tárolót, kertibútor tárolót, fedett kiülőt, kis játszóteret mászókával. Igény szerint saját használatú kertrész is kialakítható, ez megegyezés kérdése. A használati megosztási szerződés elkészítése még folyamatban van, alakítható.
A parkolás a telken belül, és az utcán is lehetséges. Az utca zsákutca, átmenő forgalomtól mentes.
Az utca végén Duna part, Kis-Háros sziget, természetvédelmi terület, lovarda, kajak-kenu egyesület és SUP kölcsönzési lehetőség!
Az ingatlan közvetlen közelében helyezkedik el a Dunapart ABC, mely élelmiszer kiskereskedés. 800m-re pedig két élelmiszer áruházlánci egység is elérhető (ALDI, LIDL). Bevásárló központ két kilométerre található, ahol a közműszolgáltatók, telefontársaságok kirendeltségein kívül posta, gyógyszertár, fodrász, fitnesz-terem, benzinkút is megtalálható (CAMPONA Bevásárló Központ)
Háziorvosi rendelő, bölcsőde, óvoda, iskola, 1 km távolságra.
A közelben éjszakai és nappali BKV járatok, agglomeráció felé közlekedő távolsági buszok megállói, és vasútállomás is található, a part mentén kerékpárút vezet, melyen szintén elérhetjük a belvárost.