Eladó Lakás
Hirdetéskód: 9311993

Dunaharaszti Bocskai utca 10 - OTP Ingatlanpont Iroda

Felújításhoz személyi kölcsönt keres? Kalkuláljon itt! →
FIX 3% Program

Ez a hirdetés megfelelhet a FIX 3%-os programnak.
Tudj meg többet a részletekről itt.

38.00 m2
ALAPTERÜLET
1
SZOBASZÁM
nincs megadva
ÉPÍTÉS
Gáz (konvektor)
FŰTÉS
  • CSOK igénybe vehető nem
  • Tetőtér beépíthető nem
  • Építés éve 1950
  • Fűtés Gáz (konvektor)
  • Klíma nem
  • Szigetelt nem
Energetikai besorolás: Nincs meghatározva
A+++
A++
A+
A
B
C
D
E
F
G
H
I

Az MBH Bank személyi kölcsön ajánlata

Fizetett hirdetés
1 millió Ft
6 évre
20 585 Ft/hó
THM: 14.5%
Részletek →
2 millió Ft
6 évre
41 169 Ft/hó
THM: 14.5%
Részletek →
3 millió Ft
6 évre
61 754 Ft/hó
THM: 14.5%
Részletek →

A tájékoztatás nem teljes körű és nem minősül ajánlattételnek.

Az ingatlan leírása

ELADÓ felújítandó lakás Csepelen - kiváló lehetőség!
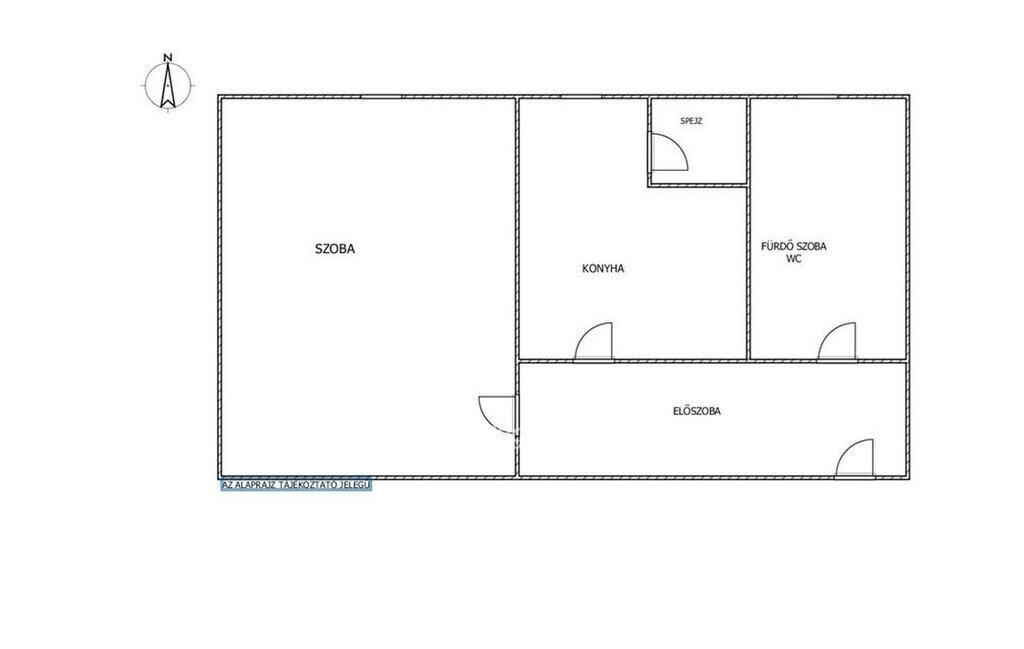
Csepelen eladó egy 38 m2-es, 1 szoba + konyhás lakás a 3. emeleten.
Főbb jellemzők:
38 m2 alapterület,
1 szoba, konyha, fürdőszoba, előszoba,
3. emeleti elhelyezkedés,
a lakás felett nincs lakó (csendes)
teljes felújítást igényel.
Lehetőség:
A lakás könnyen 2 szobássá alakítható, így kisebb ráfordítással akár 2 gyermekes család számára is alkalmassá tehető.
Épület: a társasház tavaly teljes hőszigetelést kapott.
Környék: boltok, közértek sétatávolságra buszmegállók a közelben.
Ajánljuk: befektetőknek, pároknak első lakásnak.
Kiváló lehetőség saját ízlés szerinti kialakításra!

Az energetikai tanúsítvány készítése folyamatban van, amint rendelkezésre áll, úgy azzal a hirdetés frissítésre kerül.

Térkép

Ingatlan adásvétel ügyvédi díja
195 750 Ft
a hirdetésben szereplő ár alapján
  • A vételár 0,45%-a
  • Szerződéscsomag teljeskörű képviselettel
  • Ingyenes tulajdoni lap ellenőrzés
  • Az ÁFA-t már tartalmazza
Érdekel az ajánlat →
A tájékoztatás nem teljes körű és nem minősül ajánlattételnek. Minimum díj: 150 000 Ft, maximum díj: 600 000 Ft. A díj kizárólag lakóingatlan adásvételére vonatkozik.

A hirdető elérhetősége

Dunaharaszti Bocskai utca 10 - OTP Ingatlanpont Iroda

Terjék Nikolett Erzsébet
+36 70 941