Eladó Lakás
Hirdetéskód: 9309052
OTP Ingatlanpont - Takács Zsuzsanna
Felújításhoz személyi kölcsönt keres? Kalkuláljon itt! →
Ez a hirdetés megfelelhet a FIX 3%-os programnak.
Tudj meg többet a részletekről itt.
38.00 m2
ALAPTERÜLET1
SZOBASZÁMnincs megadva
ÉPÍTÉSGáz (konvektor)
FŰTÉS- CSOK igénybe vehető nem
- Tetőtér beépíthető nem
- Építés éve 1950
- Fűtés Gáz (konvektor)
- Klíma nem
- Szigetelt nem
A+++
A++
A+
A
B
C
D
E
F
G
H
I
Az ingatlan leírása
ELADÓ felújítandó lakás Csepelen - kiváló lehetőség!
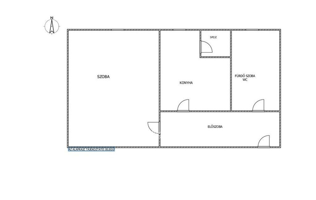
Csepelen eladó egy 38 m2-es, 1 szoba + konyhás lakás a 3. emeleten.
Főbb jellemzők:
38 m2 alapterület,
1 szoba, konyha, fürdőszoba, előszoba,
3. emeleti elhelyezkedés,
a lakás felett nincs lakó (csendes)
teljes felújítást igényel.
Lehetőség:
A lakás könnyen 2 szobássá alakítható, így kisebb ráfordítással akár gyermekes család számára is alkalmassá tehető.
Épület: a társasház tavaly teljes hőszigetelést kapott.
Környék: boltok, közértek sétatávolságra buszmegállók a közelben.
Ajánljuk: befektetőknek, pároknak első lakásnak.
Kiváló lehetőség saját ízlés szerinti kialakításra!
M325924
Az OTP Ingatlanpont, mint egyetlen közvetlen banki hátterű ingatlanközvetítő társaság teljes körű ügyintézéssel áll az eladók és a vevők rendelkezésére! A kínálatunkból választott ingatlan finanszírozásához minősített fogyasztóbarát, piaci és kedvezményes hitel- és lízingkonstrukciókat kínálunk (lakásvásárlási hitel, CSOK plusz, szabad felhasználású hitel, babaváró hitel, céges hitelek, pályázatok, amennyiben az ügyfél és az ingatlan megfelel a feltételeknek). Az adásvételi szerződés megkötéséhez igény szerint megbízható ügyvédi közreműködést biztosítunk, és segítséget nyújtunk az adásvételhez kapcsolódó egyéb ügyek intézéséhez.
Ha az új ingatlana megvásárlásához a jelenlegi ingatlanát el kell adnia, abban is szívesen segítünk.
Csepelen eladó egy 38 m2-es, 1 szoba + konyhás lakás a 3. emeleten.
Főbb jellemzők:
38 m2 alapterület,
1 szoba, konyha, fürdőszoba, előszoba,
3. emeleti elhelyezkedés,
a lakás felett nincs lakó (csendes)
teljes felújítást igényel.
Lehetőség:
A lakás könnyen 2 szobássá alakítható, így kisebb ráfordítással akár gyermekes család számára is alkalmassá tehető.
Épület: a társasház tavaly teljes hőszigetelést kapott.
Környék: boltok, közértek sétatávolságra buszmegállók a közelben.
Ajánljuk: befektetőknek, pároknak első lakásnak.
Kiváló lehetőség saját ízlés szerinti kialakításra!
M325924
Az OTP Ingatlanpont, mint egyetlen közvetlen banki hátterű ingatlanközvetítő társaság teljes körű ügyintézéssel áll az eladók és a vevők rendelkezésére! A kínálatunkból választott ingatlan finanszírozásához minősített fogyasztóbarát, piaci és kedvezményes hitel- és lízingkonstrukciókat kínálunk (lakásvásárlási hitel, CSOK plusz, szabad felhasználású hitel, babaváró hitel, céges hitelek, pályázatok, amennyiben az ügyfél és az ingatlan megfelel a feltételeknek). Az adásvételi szerződés megkötéséhez igény szerint megbízható ügyvédi közreműködést biztosítunk, és segítséget nyújtunk az adásvételhez kapcsolódó egyéb ügyek intézéséhez.
Ha az új ingatlana megvásárlásához a jelenlegi ingatlanát el kell adnia, abban is szívesen segítünk.