Eladó Lakás
Hirdetéskód: 9248344
Dunaharaszti, Dózsa György út 45. (OTPIP)
Ez a hirdetés megfelelhet a FIX 3%-os programnak.
Tudj meg többet a részletekről itt.
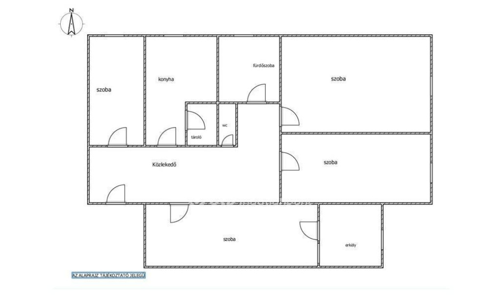
68.00 m2
ALAPTERÜLET2
SZOBASZÁMnincs megadva
ÉPÍTÉSnincs megadva
FŰTÉS- CSOK igénybe vehető nem
- Tetőtér beépíthető nem
- Építés éve 1983
- Klíma nem
- Szigetelt nem
A+++
A++
A+
A
B
C
D
E
F
G
H
I
Az ingatlan leírása
Tágas, azonnal költözhető otthon Csepel központközeli részén ideális családoknak!
Csepel kedvelt, központhoz közeli részén eladó egy 68 m2-es, kiváló elosztású lakás, amely tökéletes választás lehet családok számára.
Az ingatlan 2 szobával és 2 félszobával rendelkezik, így kényelmes életteret biztosít akár több gyermekes családnak is, vagy otthoni munkavégzéshez.
A lakás egy 4 emeletes, rendezett társasház 2. emeletén található.
Tehermentes, üres, azonnal költözhető, így nincs várakozás, akár azonnal birtokba vehető.
Főbb jellemzők:
68 m2 lakóterület
2 szoba + 2 félszoba
Műanyag nyílászárók redőnnyel
1 db klímaberendezés
Parkettás szobák, a többi helyiség járólapos
Frissen festett helyiségek
Konvektoros, egyedi fűtés
Külön vízóra alacsony rezsi
Csendes, világos lakás
Elhelyezkedés:
A lakás kiváló lokációval rendelkezik: közel található Csepel központja, piac, pláza, üzletek, óvoda, iskola.
A közlekedés kiváló, több buszmegálló pár perc sétára elérhető.
Parkolás az utcán, a ház előtt ingyenes, ami nagy előny a családok számára.
Ez az ingatlan ideális választás azoknak, akik praktikus elosztású, azonnal költözhető, jó környéken lévő otthont keresnek Csepelen.
Csepel kedvelt, központhoz közeli részén eladó egy 68 m2-es, kiváló elosztású lakás, amely tökéletes választás lehet családok számára.
Az ingatlan 2 szobával és 2 félszobával rendelkezik, így kényelmes életteret biztosít akár több gyermekes családnak is, vagy otthoni munkavégzéshez.
A lakás egy 4 emeletes, rendezett társasház 2. emeletén található.
Tehermentes, üres, azonnal költözhető, így nincs várakozás, akár azonnal birtokba vehető.
Főbb jellemzők:
68 m2 lakóterület
2 szoba + 2 félszoba
Műanyag nyílászárók redőnnyel
1 db klímaberendezés
Parkettás szobák, a többi helyiség járólapos
Frissen festett helyiségek
Konvektoros, egyedi fűtés
Külön vízóra alacsony rezsi
Csendes, világos lakás
Elhelyezkedés:
A lakás kiváló lokációval rendelkezik: közel található Csepel központja, piac, pláza, üzletek, óvoda, iskola.
A közlekedés kiváló, több buszmegálló pár perc sétára elérhető.
Parkolás az utcán, a ház előtt ingyenes, ami nagy előny a családok számára.
Ez az ingatlan ideális választás azoknak, akik praktikus elosztású, azonnal költözhető, jó környéken lévő otthont keresnek Csepelen.